虽然“房子是租来的,但生活是自己的”这个口号已经被喊腻了,但是我们不能否认每天回家,一打开门,一个干净整洁的家更能抚慰疲惫的心灵。这个出租房是位于老广州街区的一间小屋子,装修的时候也不管什么风格,在网上看到什么就网购回来,真要说什么风格,大概就是东北大乱炖style吧。
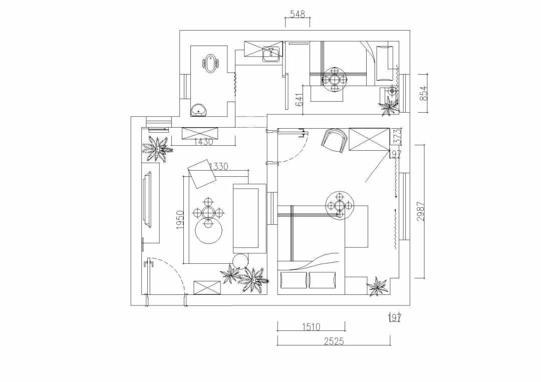
户型:两室一厅
面积:32㎡
风格:东北大乱炖style
装修预算:硬装加软装 4.5万
户型图

户型还算方正,但是不知道是不是为了增加采光和通风,客厅沙发上面还有一个和主卧相通的窗户。坐在客厅的沙发上,只要挺直腰板,基本上卧室里啥情况都能了如指掌。
装修前客厅的样子:

这是白天拍摄的,虽然开了灯,但是屋里也没有很亮堂。上一任租客留下的这个藤编沙发倒是一下子打动了我。
装修后的样子:

墙面和天花板全部都重新粉刷了一遍,地板没动,因为我感觉挺好的。藤编沙发重新刷了一遍油以后,看起来更有感觉了,沙发垫是重新定制的,坐起来比之前的舒服。
大门换成安全系数更高的门锁。门,门框和窗框都刷成黑色以后看起来更加有质感了。镂空的茶几比较轻巧,而且中间可以用来塞抱枕。

墙角这两盆绿植当然是仿真的,真的放绿植的话,估计在这里待不过一个月就要凋零了吧。角落是仿真的橄榄树,不知道有多少人还会唱齐豫的那首《橄榄树》?这首歌还是三毛写的词呢。

沙发上方和卧室相通的窗户对于增加客厅的采光和通风还是必不可少的。拆掉窗户后,挂了一个轻纱窗帘意思意思一下,不然在床上看到墙上有个窗洞还是蛮奇怪的。

五斗柜上面挂着的是席勒的《坐着的女人速写》,搭配着原木的挂架以后,整面墙看起来就没有那么空旷了。

通过窗户,在卧室里看客厅的样子,宜家的这个鞋柜颜值还是不错的。
装修前厨房的样子:

一开始看到厨房里的烟管和台上油腻腻的痕迹,真的是头皮发麻。
装修后厨房的样子:

厨房平常主要用来炖靓汤,煮火锅和面,油烟较少,不太需要油烟机,所以就拆掉了。
瓷砖没有敲掉,只是用白色油漆重新再粉刷一遍,勾缝也是自己搞的,照片上完全可以看出我勾缝的手艺是多么菜鸟了。其他人可别跟着学。
上面左边的吊柜用来收纳东西,右边则是一个小冰箱。洗衣机在安装的时候要注意预留左右的空间,不然脱水的时候,洗衣机左右摇,很容易影响到柜子和台面。总之尺寸都要提前量好。
卫生间:

卫生间的白色瓷砖有点泛黄,所以也是用白色油漆重新粉刷。浴室的五金配件全部换成了黑色的。金色的镜子像不像白雪公主里王后的魔镜?
卧室:

卧室床头和床尾的背景墙刷的是立邦BA7500-1号漆,最后效果还不错,配上手工编织的挂毯,颇有美式的感觉。窗户的墙面贴的是网购的仿砖墙贴。

晚上的时候打开这个吊灯,橘黄色的灯光打下来,特别有小时候的感觉。深色的墙面有助眠的感觉。

客厅另外一张藤编椅被搬到床尾这里。霓虹灯搭配黄铜衣柜,在晚上让人有一种随时都可以开始蹦迪的感觉。
儿童房装修前的样子:

名副其实的单人间,过道小得只能塞得下一个人,唯一好看的点大概就在于那个窗帘了吧。
儿童房装修后的样子:

床头的柜子让躺在床上的人随时都有一种要掉下来的感觉,所以拆掉后换成小的铁艺收纳筐。淡蓝色的墙裙让整个空间清新又文艺。
床还是原来的铁艺床,只是刷了黑色的漆,窗框也跟着刷成了黑色。

侧面的墙上挂着捕梦网,希望它可以为宝贝带来美梦,帮她抵抗恐惧,过滤噩梦。
走廊:

这套房子的风格虽然是大乱炖,但是它的气质很像广州这座城市的性格,时尚和务实并存。
点击下方了解更多,即可领取免费量房的机会。