这是一套总面积90平米的小复式,下层仅有30几平的小空间要把客餐厨空间都挤进去,在简约舒适的空间基调下,以开放式的空间格局,营造出一个简约大方而又端庄高档的空间效果。
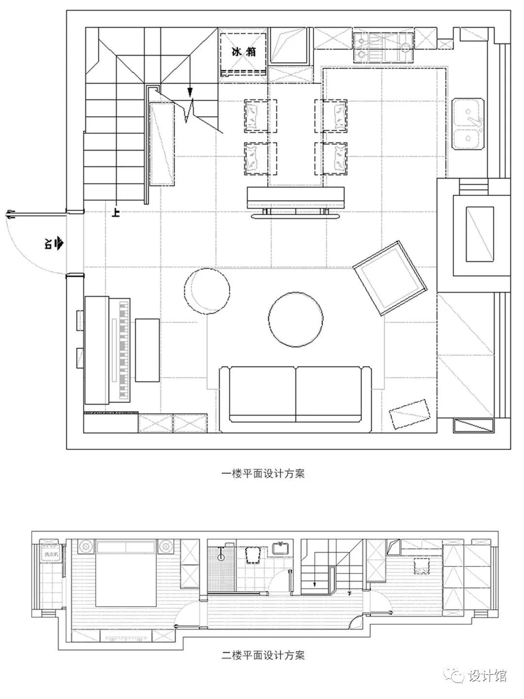
平面布置图

客厅

▲客厅整体简洁的空间,垫着一块复古调的地毯,搭配大理石圆茶几、蓝色布艺沙发,简洁素雅的空间,显得格外的雅致大方。

▲靠墙还放置了一台钢琴,后方沙发角落做了一个铜质感的书架,整体显得华丽端庄好大气。

▲电视墙是个小小的矮墙隔断,隔开了客厅与餐厨空间,同时又保持空间的通透。

▲客厅侧边的窗台,做成带有收纳的飘窗,整体空间实用而又文艺情趣。
餐厅

▲小小的餐桌椅布置在沙发墙后方,顶上两盏黄铜色的吊灯,呈现出一个小巧优雅的餐厅氛围。

▲餐厅的另一侧则是楼梯间,楼梯下装成收纳柜,整体显得实用而又雅致大方。
厨房

▲开放式的厨房,整体黑白灰色调的空间,先得雅致端庄好自然。
走廊+卫生间

▲走廊侧边是卫生间,以磨砂玻璃隔断空间,使得没有窗户的卫生间更加明亮自然。

▲合理舒适分布的卫生间空间,淋浴房里面还装了壁龛,卫浴用品方便地收纳在此。
卧室

卧室以淡粉色的空间,搭配白色床与床头柜,床头墙挂了一幅粉色调的火烈鸟装饰画,带来的是一个简约的浪漫氛围。

▲一张金属框架造型的吊灯,也是使得卧室显得更有档次感。

▲床头柜的一束鲜花,也使得空间舒适优雅。
儿童房

▲儿童房整体粉色调的空间,靠窗布置床,小空间显得实用优雅好情趣。
设计:壹石设计 ,点评:设计馆
买了房找装修灵感,欢迎加微信公众号:shejiguan_cn