【U玻(U Profiled Glass)Vray for SketchUp夜景渲染】

文章来源:111STUDIOS,已获得授权
U玻是U形玻璃的简称,顾名思义,其横截面呈“U”形,在透光性、隔热性、保温性以及机械强度上都比较理想,用途相当广泛;
从施工角度来讲,也比较便捷;同时应用到建筑立面或者隔断时,有着相当独特的艺术效果
——百度百科
比如像这样↓

像这样↓

还可以像这样↓

*图片来自网络
可见一般的U玻透光而不透明,可以使得空间具有一定的隐私性;也一般用在博物馆当中,可以避免让展品受到阳光的直射…….
说了这么多,那么U玻到底怎么渲染呢?U玻渲染的关键其实不在材质渲染的参数上面,而是在U玻的构造上;
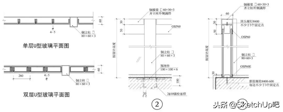
▼U玻的各种构造(单层、双层)

*图片来自百度百科
对于我们来讲,只需要了解U玻的横截面的数据即可,根据数据在SU中建模,赋予材质即可;
▼常见U玻的横截面数据

*图片来自百度百科
【SketchUp建模部分】
1.整体建筑建模:这里为了演示,只是一个非常简单的水上小展厅建筑。

2.U玻建模:在渲染中,我们为了缩短渲染时间,只做一层U玻;如果你想真正的写实,可以做成两层,但渲染时间会增加。


3.水体建模:成群组建立,并且下面有承接的地面。

【Vray渲染部分】
1.角度选择:正面两点(一点)透视。

2.灯光参数调整:通过预渲染调整天光和片光源的强度等参数。
天光参数:因为是夜晚,我们天光参数调低一点,但不要调整到0

片光源参数:在屋顶处仅放置了一盏片光灯,灯光参数如下


3.材质参数调整:u玻参数:根据实际效果自行调整

水的参数:水使用vfs3.4自带的材质,简单调整一下

白色墙面的参数:

4.出图参数调整

【Photoshop后期】
1.添加背景天空:百度搜索“海水夜景图”,寻找合适的天空素材。


2.调整夜空色相饱和度(运用调整图层,可以重新进行调整)。

3.调整水面色相饱和度。

4.调整U玻色阶,把太黑的部分调白一点。


5.天空添加星星等细节,并调整色阶目的是调整星星的亮度。
6.运用烟雾笔刷,变化笔刷大小、方向、不透明度、流量、样式等,添加水面雾气。

7.添加夜晚建筑上方特有的轻微光亮。

8.ctrl+alt+shift+e合并可见图层并且产生一个新的图层,右键转换为智能对象,做最后一步的camera raw调整
(根据实际效果进行相应的调整,简称“瞎jb调”)

整体调整过程如下——

【成图】

福利时间:点击文末“了解更多”进入原文,按文末提示可获得SU/PS原文件和笔刷云链接哦~
更多PS教程及笔刷分享,请看以下推送 ——
快来!国外大神手把手教你做高逼格小清新建筑轴测分析图!

别不服,我剖面图美过你的效果图!
