

房屋简介:
【房型】:5房2厅+3露台
【面t积】:157平
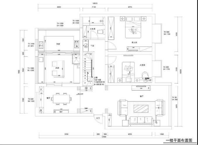
从大门进来,首先是进门的玄关,美剧中是不是常出现这种壁炉,配上白色的山茶花,一艘小船寓意带着我们全家幸福起航。

壁炉的右边就是客厅啦,6米多长,是不是很够霸气呢,壁灯和吊灯都是纯铜的。

再来一张

正面一张

壁炉的左边是餐厅,美式的卡座展现的淋漓尽致

壁炉的对面是换鞋凳

餐厅的正前方就是我最最超级喜爱的厨房(分西厨,中厨)隆重登场
西厨 白色与绿色完美的结合,西厨由于层高问题,放弃了中央空调,遗憾啊。石英石台面配上小方砖。

现代化的烤箱蒸箱,可惜女主人我都不会用啊。

中厨来了,不知道某人有了蒸箱,为什么还要用微波炉,真心不懂。

再来一张,是不是感叹厨房真心大啊,当初看中就是因为够大。

站在中厨看餐厅

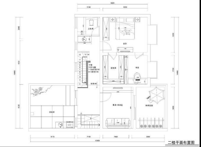
继续回到大门口的走道上面,左边楼梯下面是一间储藏室,右边第一间是儿童房,第二间是老人房

儿童房也是比较花心思的地方,从挑墙纸开始,这一面墙就用三种不同的墙纸搭配起来的

应该买美国*旗国**的,不知道当家的为什么会挑成英国*旗国**的,乱入一气啊

儿童房的衣柜手机拍摄

衣柜的另一个侧面

衣柜边上的小挂钩

可爱的瓢虫风扇灯

过道右手第二间就是老人房
HH全实木家具,简美的风格显露无疑

再来一张,其实这个铜灯真心蛮大的,电话机真是败笔啊,明儿就去换掉

布艺沙发是我淘地,真心便宜

铜灯大吧,闪闪发着光

老人房出来对面就是干区了,干区是我比较满意的地方,细致到擦手巾也是BARZE的,台盆是科勒的梅玛系列,懂的

干区的边上就是一楼的卫生间了,美式标准的小砖登场,150*75的贴费真心贵,黑白经典乃永恒。暖风机选择了松下

再来一张 淋浴门做成了踏步式的

卫生间完毕,伴着楼梯来到二楼,楼梯是捷步的,将军柱是网上找的图片叫师傅订做的,安装的师傅装完之后直叹漂亮漂亮,楼梯的材质选择是榉木,脚感还不错。

站在楼梯向下看,墙壁上一对鹿爸和鹿妈寓意保护着我们家的小囡囡健康快乐。。。

鹿妈来张特写

楼梯来张全景

真心好大呀
右手边的第一间是活动室,第二间是主卧,门关着的是主卫,门口依旧是干区。
那我们就先从活动室开始吧,活动室门口的门是美式标准的谷仓门,上海居然都没有卖家做,只能转战浙江市场背回找师傅安装,门上的字母贴自己搭配的不错吧

活动室全景
HH沙发,没有装中央空调有些遗憾吧。。

再来一张

活动室的正面,浓浓HH风

活动室的外面就是屋顶花园了,BBQ的最佳场所,请大家无视花花草草,被当家的打理的乱七八糟

再来一张
椅子上的靠垫在运费的途中

离开活动室,请大家和我移步主卧,主卧全景噔!噔!噔!

再来一张

再来一张

主卫中有二扇门,打开左手边一扇是通往书房,打开右手边一扇是通往衣帽间
家里所有的门都是美森耐的宫爵系列,

站在主卧打开书房,书房的一角

书房全景

书房的侧面

主卧的右手边一扇门里面就是衣帽间,衣帽间比较的乱,请大家忽视,随便看一看吧

接下来带大家去参观一下主卫 经典的白加黑,说起这主卫的玻璃门,是从杂志上看到的,特意叫师傅花了一个月时间去订做的铜条玻璃门,真心漂亮了。

再来一张,马桶选了挂壁式,这个马桶是2010的老款,之前一套房子就选用的它,这次特意又把他入了回来

淋浴房再来一张

二楼干区来一张特写
一圈手工掰手砖,(纯手工窑制,贵货喔1000元一平方,真心稀饭)

站在干区,遥望整个过道,三扇移门的背后,一半是储藏间,一半是通往三楼的楼梯

站在主卧门口望着楼道,再来张近景

楼道中的灯再来张特写,是当家的硬要挑选滴铜条灯,貌似还搭吧,铜灯再来张

最后我们回到活动室,活动室的对面就是洗衣房,洗衣房分成二间,一间是洗衣房,另一间是晒衣房

洗衣房边上就是晒衣房啦,坐在晒衣房的小踏上欣赏着自己挑选的铁艺围栏,45度角的蓝色标志就是宜家啦

小物件登场:
双山升级版-贝拉维拉的圆铜锁

拉丝的纯铜龙头-摩丹

主卧的主吊铜灯

客厅的木纹字母,选的是16号的

客厅柜子上的假书配上小鸟书靠

俄罗斯的珐鎯彩烟缸

手板砖特写

主卧的美式台灯

书房的日历钟

书房的书柜特写,里面有偶的画像等

书柜的一把天地锁,完美

楼道的蜡烛灯特写

主卧的薰衣草开了

活动室的相框摆件

活动室的棋盘1

活动室的棋盘2

美式的小鸟摆件加储蓄罐

楼梯的栏杆来一张特写

羊羊羊

壁炉上的小花花

小象坐椅

地球仪

挂钟

再一个挂钟

餐厅的餐边装饰柜左

餐厅的餐边柜右

墙上的小天使

小天使下面住着一个长尾鸟。。感谢大舅赠送

西厨的烤箱蒸箱特写

西餐的小野花

西厨高脚凳特写

65厘米的高脚凳再来二张

中厨的特写

中厨的小挂件

客厅的茶花

美式复古电话机特写

客厅的吊灯8头的纯铜

儿童房的纱帘

餐厅边的挂画特写 各式各样的饮料瓶拼图,纯美

换鞋凳全景

换鞋凳上超人性化的挂衣钩特写

回到原点,壁炉特写,火焰熊熊燃烧

抱枕小特写

★不懂装修,害怕装修,赶紧关注西安装修微信公众号【zx029zx】