项目名称:重庆中渝.香奈公馆
位置:重庆

真正的人生,不是为了走向复杂,而是为了抵达天真。真正的相守,不是为了消磨时光,而是为了相互成就。还原生活的本真,保持一颗温暖的心,我们以原木为设计基础,弱化了简约空间的冷漠生硬,让室内多了一份天然纯粹,通过色彩、光线、材质,寻找一个平衡的原点,贯穿整个空间,让原本灰度的硬装不再显得生硬沉闷,保留最纯真的心。横平竖直的结构,不同材质的穿插与收口,细节中注入生活的味道,再以工艺处理,是高级简约格调的基本要求。整体空间硬装简练,电视背景墙用了文化石(在业主强烈的要求下我们最终还是用了文化石),干净流畅的线条打破深色的沉闷。同时后期软装在色彩搭配上赋予少许亮色,是内敛中对生活的升华。我们追求简约舒适、纯粹无杂的生活状态,不仅仅是对家舒适美观的要求,更是想要满足自己内心对生活本真的渴望。客餐厅的近距离接触,扩大视觉的空间感。皮椅搭配着精致的餐具,简约大理石岛台,别具一格,整个空间更加温馨,细枝末节处让生活更添艺术色彩。
开放式的客厅与餐厅,打破生活中的壁垒与隔阂,让沟通*界无**限,也让家人之间得以拥有更多、更舒适的互动及活动空间。(真的是满足的业主的需求,柜子一定要多,(业主的需求就是我们努力的方向)吧台是一种情怀,早上煎蛋,面包牛奶,书房工作累了跑来泡一杯咖啡坐坐,这是他们向往的生活。好的休息空间,可以赶走一天的烦恼,把一切不愉快抛之脑后。充满活力的黄色轻奢基调延续至此,床头细节用了背景深色蓝的色调设计,定制的点缀给人以无限想象和审美体验,不知不觉中恋上床,精心挑选的布艺床品和配饰充满了对美的所有想象。整个空间以低明度色为主,点缀以俏皮的他色,使整个空间纯粹而美丽,家具多采用布艺和实木,贴近自然,回归本真。儿童房背面采用墙画处理,产生强烈对比,加入橙色点缀带来鲜明的视觉冲击,打造出奢雅唯美的艺术气质与氛围,领略现代时尚与高级魅力。

重庆中渝.香奈公馆室内实景图

重庆中渝.香奈公馆室内实景图

重庆中渝.香奈公馆室内实景图

重庆中渝.香奈公馆室内实景图

重庆中渝.香奈公馆室内实景图

重庆中渝.香奈公馆室内实景图

重庆中渝.香奈公馆室内实景图

重庆中渝.香奈公馆室内实景图

重庆中渝.香奈公馆室内实景图

重庆中渝.香奈公馆室内实景图

重庆中渝.香奈公馆室内实景图

重庆中渝.香奈公馆室内实景图

重庆中渝.香奈公馆室内实景图

重庆中渝.香奈公馆室内实景图

重庆中渝.香奈公馆室内实景图

重庆中渝.香奈公馆室内实景图

重庆中渝.香奈公馆室内实景图

重庆中渝.香奈公馆室内实景图

重庆中渝.香奈公馆室内实景图

重庆中渝.香奈公馆室内实景图

重庆中渝.香奈公馆室内实景图

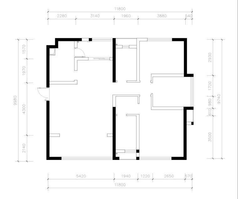
重庆中渝.香奈公馆平面图