如果我告诉你16万也可以建一座漂亮的房子你相信吗?下面小编要介绍的这套小别墅,既具有欧式建筑的华丽感,也带有田园风格的优雅恬静。这样一套精致的小房子,造价仅需16万,感兴趣的快和小编一起看看吧。

尺 寸: 面宽12.9米 进深10.2米
建筑面积: 148.0㎡
土建造价: 16.0万

房子的外观整体偏向田园风格,非常适合幽静的乡村。整个墙面的颜色偏黄,暖色系的外墙不仅略显华贵,在阳光的照射下更是增加了房子的温馨感。外立面的立面线条平直硬朗,门头和屋顶均设计为为双坡顶,整个建筑没有弧形和四坡屋顶,这种尖顶设计具有经典感,使得建筑无惧时光侵蚀,永远保留自己的特色。

基地为正南正北向,东、西两侧是宽阔的土地,北侧距离基地不远处是一座山林,有了树的滋润使得房子的环境更好。房子的南侧是村内道路,四周开阔的路况和环境对建筑不会产生影响。

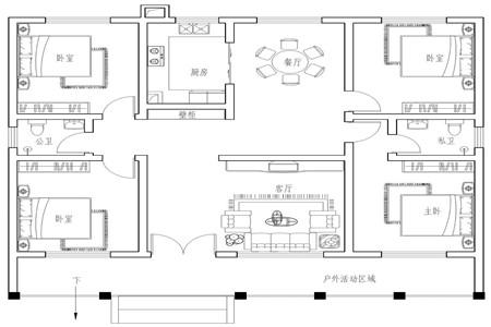
房子只有一层,整体面积并不大,但室内的功能分区整齐有序、应有尽有。入户门与客厅相邻,四方的形状使得接待空间相对大气和开阔。餐厅、厨房与客厅正对,为保护家人用餐的隐私感,客厅和餐厅采用墙体进行隔断。房子共设计了四间卧室,分别位于四个角落,公用卫生间位于西侧的中间部分。东南角主卧配有独立卫生间,如果家中有年迈的老人,也可作为老人的房间来使用。

房子的墙体采用真石漆喷涂成横向条纹,真石漆的材质增加了房子的质感,纯净黄白色使其更具乡村田园之风。房子的背面就是大山,四周景观极佳。周边的景色赋予建筑更多活力,让悠闲自得的乡村感多了几分热烈之情。

建筑南侧向外挑出一部分空间作为檐廊使用,白色立柱和栏杆与暖色的墙体相互呼应,室外活动空间为居住者提供了品茶聊天、朋友相聚的场所。挑一个好天气,约三五好友在这里喝茶聊天,看着四周的美景,何尝不是一种享受呢。在西南角还布置有木廊架,此处空间可作为室外平台。农忙季节,廊架下方成为天然晾晒谷物场所,若谷物较多,檐廊也可晾晒谷物。

房子不在大,精致舒服最重要。如果你想要在乡村过悠闲的小日子,建房子不妨参考小编的介绍,让你花最少的钱建最漂亮的房子。希望小编整理的关于16万乡村一层别墅的内容可以给大家带来帮助,大家也要多多关注我们的网站哦