坐标四川成都,屋主是一对新婚的年轻夫妇。这是夫妻二人靠自己能力打拼出来的人生第一套房,着实不易。年轻人对待装修比较有自己的想法,但毕竟没经验所以装修前两个人也是挤破了头。朋友请了专业的装修公司,但费用昂贵,自家有亲戚是做装修的,又担心万一出了问题自家人面子上过不去。所以这次就选择了自己设计,自己请施工队,跑材料,监工,把控时间都是夫妻二人自己解决。说实话真的蛮辛苦,但是结果不错。
男屋主自己就是做品牌形象设计的,虽说不是专业的室内设计师,但是审美能力强。按照自己的想法,请了一个绘图公司制图,价格也很便宜,有了施工图就方便和工人师傅对接了。房子装修三个月,通风半年,去年搬的家,目前新房已入住半年,忍不住是给大家晒晒!“自装”也能打造混搭轻奢风,朋友来参观都羡慕,夸赞男屋主可以出道做设计师啦!非说不多说,一起看看这个家最终呈现的样子吧!

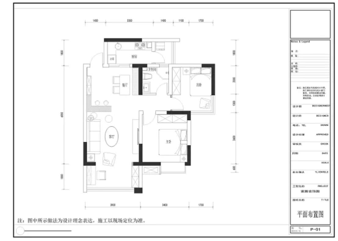
这套房子是一个标准的刚需户型,两室一厅一厨一卫,有一个大小适中的阳台。房子的建筑面积是92㎡,各个空间很匀称,所以在平面上和原始户型基本没有太多改动的地方。

和很多类似的刚需户型一样,他家也是一进屋就没有独立玄关的,入户门的右手边就是餐厅区域了,中间留作过道,左边就定制了一排鞋柜,全屋效果非常年轻范,整体属于现代轻奢风,主要体现的元素为:大理石纹路的地面瓷砖,大理石台面的餐桌,以及适当点缀的一些金属元素。而大效果为简约格调,墙面以白色和灰蓝色为乳胶漆涂刷,深浅对比呈现出一种冷色调的清爽感。吊顶四边走顶,筒灯均匀分布,打开后显得特别通透温馨。

没有独立玄关略显突兀,所以就在沙发右侧,正对入户门的方向摆放了一组轻奢质感的吧台桌,辅以金属细线框架的吧台椅,时尚轻快又不是档次,适当的安装壁灯挂画丰富空间,看得出屋主一家都是性格开朗,又冷静理性的人。人们都说一套房子装修出来的效果也可以体现出主人的气质。

从吧台的角度看电视背景墙,中间部分用软木板+金属边条打造一种不同的视觉肌理感,和材质碰撞感,木制品带来温馨自然的气息,金属感带来轻奢气息,搭配在一起十分经典,组合式的电视柜提供更多客厅收纳,小杂物都能有序摆放。右侧是客厅阳台,打通后可以扩充客厅视觉面积。

左侧做书桌,右侧做洗衣房,吊顶晾晒,细节就不展示了。

深灰色的布艺沙发,在灰蓝色背景墙下丝毫不显得沉闷老气,二者相辅相成,搭配出一种摩登气息,地面铺上绒毯,搭配组合是的黑白圆盘茶几,不占空间也不担心磕碰。

晚上,打开网红小灯泡还有落地台灯,美美的躺在沙发上,看看电视,生活好惬意呀!

电视柜左侧高柜的小装饰,金属框架的小圆镜,还有金属框架的置物架,都相当精致。

家里来客人啦!好热闹,晚上把全屋灯打开,比白天还明亮。好喜欢这个精致热闹又接地气的家!

随手一拍餐桌上的装饰品,都是一幅美景。

厨房。

前面介绍了大理石台面的餐桌,底部是金属包边的桌腿,很漂亮,右侧靠墙装了卡座,能坐人能储物,卡座左侧和厨房门之间,摆放冰箱。存取物品十分方便。

卫生间,做了凡干湿分离的淋浴房,

面积较小,所以就装了个蹲便器在淋浴房里面,很实用。

主卧,这是之间才搬家拍的。现在有点乱涉及到隐私,就没有上现在的照片。

右边有个温馨的小飘窗。

铺上软垫就是个休闲区。屋外是大成都的美景。

次卧,未来儿童房,暂且做客房。做了一体式的榻榻米+柜子布局。

走廊过道。(本案来自成都屋主原上)
这套房子的装修就分享到这里,全屋完工含家具家电一共花费20W元,朋友参观都表示特别羡慕。比他们请的装修公司便宜一些,不过自己设计就是操心多一些,材料肯定比装修公司代购的性价比会更高。希望给大家一个参考,本文纯分享,不攀比不做广告,希望大家一些学习装修知识,理性阅读取长补短,欢迎关注、分享、收藏、点赞、谢谢!