同样是75㎡的小户型,我家拥挤不堪,她家却看着很宽敞,而且还有超多储物柜,为啥啊?看完本文,你或许能找到想要的答案!
本期案例,套内面积约75㎡。屋主是一家三口,为了孩子上学方便,才买下了这套新房。装修主要是女主人在负责,她觉得房子不用装得太豪华,简约舒适就好;家里的生活用品比较多,希望都能“藏”到柜子里去。

▲装修实拍图
//设计亮点//
整屋套内面积约75㎡,三居室的户型,格局方正。缺点也显而易见,就是每个房间都很小,而且家里一个卫生间。设计师根据女主的要求,结合户型现状,做出了如下改造设计:
①餐厅做L型收纳柜,高柜与矮柜相互搭配,不影响窗户的采光;
②拆除厨房的非承重墙,改为双侧玻璃移门,打开后可以隐藏在墙面内;
③客厅设计两面书墙,在飘窗前安装隐藏式投影幕布,好看又实用;
④借用客厅和次卧的面积,把冰箱嵌入在内,不影响走廊空间。

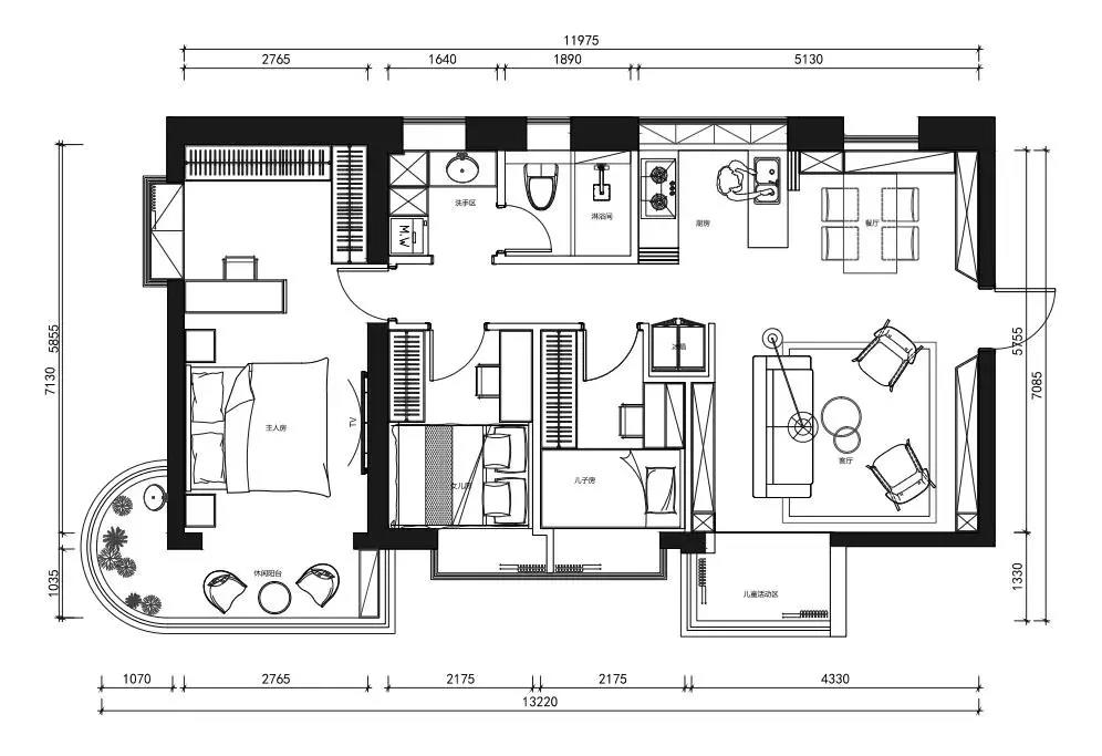
▲装修平面图
餐厅
走进屋内,右侧是餐厅区域,由于面积有限,无法设计独立玄关。设计师把鞋柜合并在了餐边柜内,换鞋时可以直接坐在餐厅的板凳上,非常方便。厨房和餐厅之间的隔墙拆除以后,餐厨区域看起来也变宽敞了不少,采光率也有所提升。

▲餐厅实拍图
餐边柜的设计很巧妙,紧挨两侧墙面定制,把餐桌围合在中间,储物能力非常强。右侧的餐边柜分为上中下三部分,下方做鞋柜,底部悬空;中间可当吧台使用,自然过渡到左侧;上方是吊柜,用来收纳屋内杂物。
窗户附近的餐边柜,是矮柜和高柜的组合,不会影响采光。矮柜的上方也可以摆放一些装饰品,靠近餐桌的部分做了开放式柜格,方便屋主从中拿取物品。

▲餐厅实拍图
厨房
厨房与餐厅相邻,设计师把厨房两侧的非承重墙拆除了,替换成玻璃移门,兼顾采光和独立性。平时,女主在厨房做饭吊顶时候,可以把玻璃门关上,这样油烟就不会飘到客餐厅内了。

▲厨房实拍图
玻璃门采用了吊轨设计,一侧是四联动,另一侧是三联动。厨房玻璃门完全打开的情况下,是可以隐藏在墙面内,更节省空间。

▲厨房实拍图
考虑到厨房和餐厅空间较小,设计师便借用了客厅和次卧的空间,来放置冰箱,其开门的方向刚好对着厨房,既节约了动线,也不会影响走廊的正常使用。

▲厨房实拍图
厨房是双一字形格局,配色以白色和原木是为主,吊轨门采用了白色烤漆材质,从视觉上提升了空间感。就连吊柜下方的窗台空间,也被屋主利用起来了,放置了一些小家电。

▲厨房实拍图
客厅
客厅打破了传统“老三样”的格局,两面背景墙都做成了大书柜,中间区域摆放单人沙发和*团蒲**,让客厅同时兼顾了休闲和书房的功能。设计师把原本的飘窗改为地台,可作为沙发的补充,坐在上面就能欣赏到窗外美景。

▲客厅实拍图
设计师用隐藏式投影幕布代替电视机,观影体验更佳,不使用时还可以藏进吊顶内。单人沙发和*团蒲**都比较轻便,屋主可以根据需求随意调整它们的布局,和笨重的大沙发相比方便多了。

▲客厅实拍图
主卧
主卧空间更加素雅,原木色的家具搭配简约干净的留白设计,为屋主营造出放松舒适的休憩环境。床头两侧,安装了对称的吊灯,晚上在卧室看电影时,打开吊灯更有氛围感。

▲主卧实拍图
床头柜是开放式柜格的设计,拿取物品一目了然,搭配收纳盒使用会更加方便。

▲主卧实拍图
嵌入式衣柜设计在主卧的入口处,设计师在靠近飘窗的地方特意留出一排开放式柜格,可当作书架来使用。由于房子的结构特殊,卧室的飘窗不能砸掉,于是设计师便在飘窗上面安装了三个抽屉,不仅增加了收纳空间,而且提升了飘窗的高度,坐在上面也刚刚好。

▲主卧实拍图
主卧最大的亮点,是自带观景阳台,设计师将阳台纳入卧室,摆放一组休闲椅,把它打造成一个放松休闲的空间,提高了生活的情调。

▲主卧实拍图
次卧
次卧做了榻榻米的设计,把飘窗台也并入其中,实现了床、衣柜和书柜的功能。白色衣柜靠近卧室入口,依然是顶天立地的设计,最大化空间利用率。

▲次卧实拍图
飘窗侧面的墙壁上,还安装了一个小壁灯,它的开关在床头旁边,晚上起夜可以直接打开,灯光比主灯更柔和,不会影响睡眠。

▲次卧实拍图
游乐室
另一间次卧原本也是要做榻榻米的,但是考虑到成本的问题,就放弃了这个方案。目前,屋主把它布置成了游乐室,可供宝宝在里面玩耍,后期如果有其它需求,可以再调整内部的布局。

▲游乐室实拍图
卫生间
为了缓解卫生间的使用压力, 设计师做了双分离式设计,把卫生间的洗手台外移,同时也能保证干湿分区。洗手台左侧定制了收纳柜,洗衣机、烘干机也很好地嵌入于其中、

▲卫生间实拍图
卫生间内部配色选择了经典的黑灰白组合,中间用黑框玻璃做隔断,视觉感干净清爽。壁挂式的马桶设计,减少了卫生死角。

▲卫生间实拍图
【本期总结】
回顾本案,75㎡的房子能够兼顾实用性和舒适性,主要赢在了布局规划,巧妙地运用每一寸空间,家里的柜子绝不是硬堆出来的,合理地装修设计才能让小家越住越舒服。如果你也喜欢本期内容,欢迎点赞收藏!
#生活有温度#