01
云行空间设计

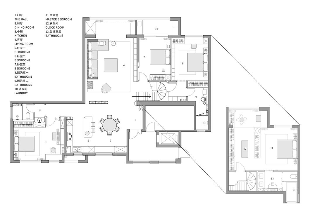
本案位于仙林南外附近,男女主人都是大学老师。在这个过程里一切的尚不确定都有好的走向,搬家后天气也变得凉爽,抓住秋意一起享受具体的新生活。


拆掉了离客厅最近且朝南的房间,调整布局通过客餐厅一体化的直观,得到活动动线上的自由,主背景是木色的转折、连续,时隐时现成为整个空间面的涂底。


屋主的客厅不需要电视,有投影即可,所以我们通过收纳的不同形式在墙面上做出起伏。



在变大的阳台做收纳,存放家用的一些功能性用具,比如洗衣机、烘干机等,拖地机器人也有专用的“工位”和出入口,这是阳台的功能之处。


房间的非承重墙体被敲掉后,在公共空间留下了一根布满细钢筋的柱子,经过粉饰之后意外的有了清水混凝土的效果。



餐厅在用餐时刻之外是属于屋主的开放式书房,餐桌是可以和伴侣、孩子共享的书桌,所以餐厅边的整面收纳主要以开放式书架的形象出现,当空间不设限的使用时可以保持家的松弛有趣。

过道边的墙面上用装饰画来消除空调开关对于空间视觉画面上的影响。

固有的厨房空间十分有限,我们需要另觅它处,补全功能和收纳,在原本的餐厅位置通过充分的规划,在一面墙的区域将蒸烤箱、洗碗机、冰箱、收纳与吧台统统实现,并且为厨房和独立书房的进出留出充裕的动线距离。


朝北的室外景观是整个建筑房屋中最好的,所以书桌临窗布置,提供更安静专心的支撑。


并不希望给卧室空间增加负担,只需要简单的功能以吻合屋主的节奏,平衡需求后相对于其它空间更显悠闲,松弛下来居有定所。

儿童房是被色彩命题的,目前主要是作为孩子的玩耍空间,等再长大些再添置功能型的活动家具。有一面墙的材质是玻璃和洞洞板拼接,是带有互动和启发的乐趣。

项目名称:闲庭
项目地址:江苏 南京
主创团队:云行空间建筑设计
施工团队:云端建设
建筑面积:140㎡
项目类型:设计+施工+主材产品代购
空间摄影:吴昌乐
主要材料:桦木海洋板、镜面、乳胶漆
02
榀象设计

设计一个私宅空间,以人与物与空间三者的互动为情感链接。我们所向往的状态,是以阳光为伴,以微风为伍,与家人可亲,生活中的琐碎与平常,汇聚成一个简而有致的品质空间。

本案是一户南北通透的错跃户型,坐拥都市商圈,设计师所要考虑的,是在繁闹的都市中,寻求一份独属于家的宁静,但同时又保留现代都市的时尚感以及与外界的沟通属性。



内与外的交互来自阳光与空气,不避世的静在于内向的叙事表达,以空间为载体,通过线条、块面与色彩的组合,完成一个有情感的空间氛围。

去除多余的墙体,不同功能区域间的关系被打开,客餐厅区域得以融合贯通,视线流畅,动线也更为明确。

在客餐厅的交界处,设计半镂空酒柜,在起到分割区域的同时,不打断空间联通的属性。



以“厨房的真谛,不囿于烹饪和饮食,更在于情感的交融与情绪的流动”为主题,搭建多元的休闲就餐概念。




楼梯形成一二层间的沟通对话,作为空间中一处重心所在,盘旋而上,如雕塑般伫立其间,旋转的线条与如惊鸿般的张力,表达力量与柔美的结合。


二层全部作为主卧套房使用,设置双排的衣帽更衣区,同时通过镂空的背景墙形成与主卧空间的互动。


温柔的低饱和度色彩定调空间,关于卧室,设计以尽量柔和而精简的笔触,表达其包容的属性。


只以简单的拉槽与必要的结构诠释静与守的话题,凸显内敛低调的质感。


楼梯一侧设置女儿房,以纯粹的白色为底,为小女孩五彩斑斓的梦想留下余地,设计为生活让步,简以存真。


迎着窗面设置长桌,提供必要的自然光照与透气明朗的格局,打造适于孩童成长的空间表达。

应势而生的设计理念,不仅存在于单一的空间,而是被贯穿于整案的表达。

项目名称:与生活,予设计
设计公司:温州 榀象设计
项目地址:温州·瑞安
项目面积:200㎡
主案设计:池旻烨
参与设计:叶姿妮
项目摄影:吴昌乐
主要材料:木饰面、金属、硬包、石材、墙布