一辆行驶里程仅600km、配置DJS发动机、OBH变速器的2021年奥迪Q3L。客户反映:该车左前门经常出现无钥匙进入功能失效情况。
故障诊断:使用VAS6150E检查进入及启动系统控制单元故障码,如图1所示。

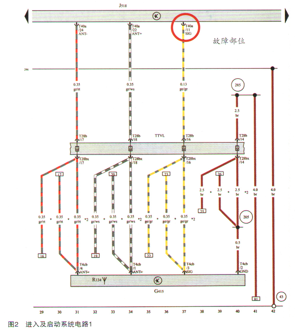
进入及启动系统控制电路图,如图2、图3所示。


可能故障原因如下:
(1)左前门把手内部故障。
(2)进入及启动系统控制单元至左前门把手线束故障。
(3)进入及启动系统控制单元故障。
(4)加装干扰。
(5)其他故障。
读取未触摸时左前门把手数据流,如图4所示。

读取触摸门把手时数据流,如图5所示。

与其他右前门和正常车辆车门数据流一致,没有发现问题。 由于是偶发故障,也没有试出客户描述故障现象,维修和试驾车对换了左前门把手,让客户观察使用。几天后客户反映车辆故障依旧。维修又替换了正常车辆的进入及启动系统控制单元,试车几天后故障再次出现。由于该车里程数587km,客户抱怨很大,要求一次修好否则退车。 由于相关部件均已更换,分析线路或者加装的可能性比较大。该车为新车还未贴膜,也没有进行其他的加装。检查驾驶员狈阵门把手4根线,接地正常,到进入及启动系统控制单元的3根线也没有发现故障。 模拟较差路况,对进入及启动系统控制单元或线路震动拍打,故障出现。仔细检查线束发现门把手信号线在进入及启动系统控制单元端T40a/ 11断裂,如图6所示。

故肺排除:更换插针后,故障排除。
故障总结:目前很多偶发故障出现在线束插头或者针脚上,由于故障偶发给维修工作带来难度,大家在维修时需要注意这方面的问题。