

关于屋主
爱美食,爱烘焙,爱手工,爱幻想,爱折腾的建筑狗。对新鲜事物充满好奇,追求仪式感,总是幻想能再多一项技能,多一个目标,闲不住的懒癌患者。
写在前面
毕业第四年,终于在这座城 市拥有了自己的小房子。曾经幻想过的家,采光要特别好,我喜欢光落下的影子,甚至喜欢清晨的阳光洒满被子。一定要有明亮的厨房和餐厅,周末我会花大把时光烘焙一桌美食、一道甜品。要有一张长桌,闲来画图、看书、做手工。很庆幸,这个我一眼相中的小房子满足了我对家的期待。 对于装修风格,那段时间,我有点迷恋简约的北欧风。但在设计时,我突然觉得,不该被某种所谓的风格左右,只做自己最想要的样子。其实我只是爱简约本身,爱黑白灰的空间,纯白基色,黑色点缀,一如我迷恋断舍离的生活态度般。家中所有东西,都是我喜爱的,把它们堆在一起,也就成了我期待中的家。
其实刚买完房,装修预算很有限,但我仍毅然决然要重装小房子,因为生活不能将就。事实证明,自己想要的家和生活,并不需要多昂贵,平平淡淡总也美好。
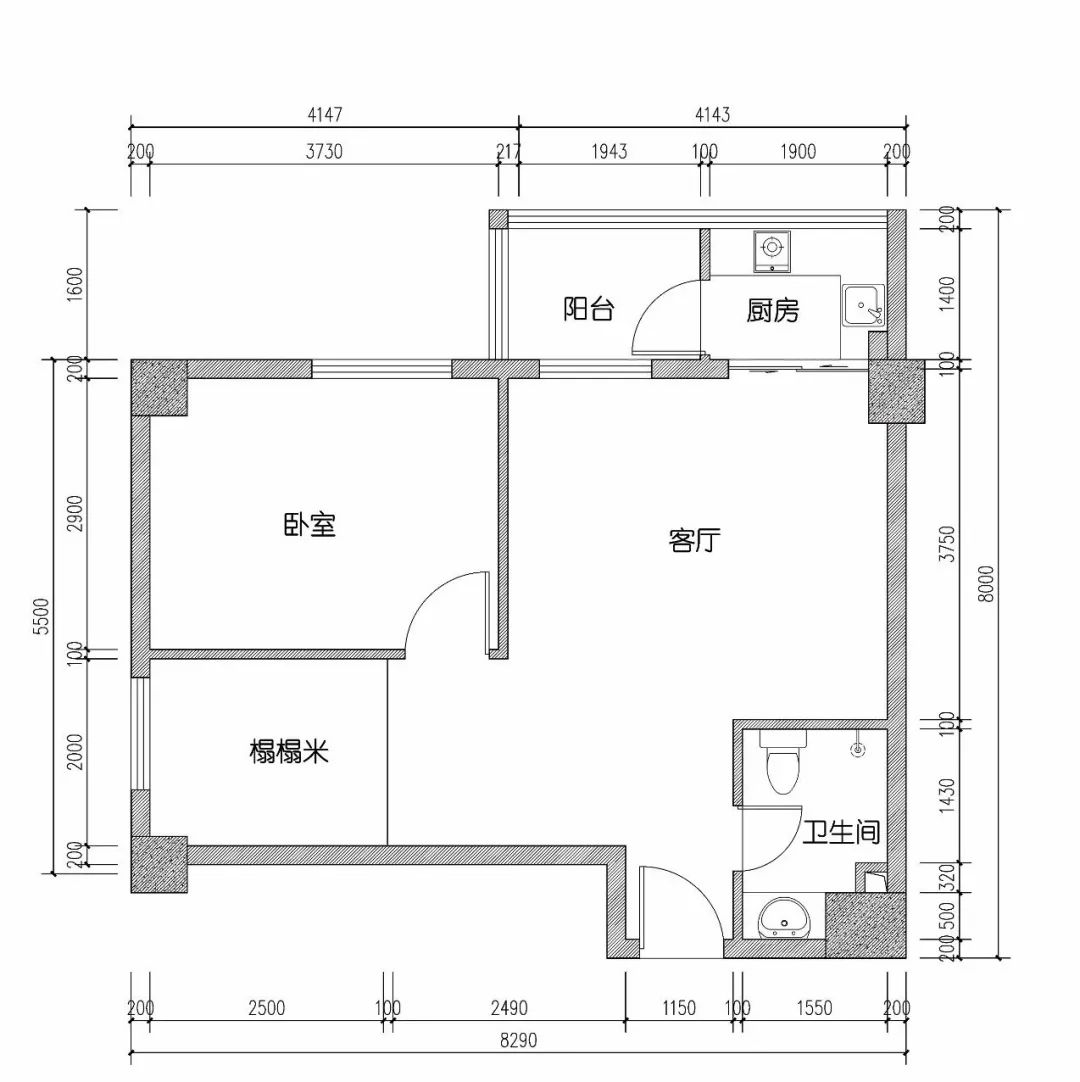
#户型图#

原始户型图,看中了小户型里难得的采光。原来的卫生间设计极不合理,打开门就要碰到马桶,而且没有独立淋浴区;客厅不小,却没有餐厅,这两点是我无法忍受的,也就决定敲掉重装。

平面图我仅花了一小时,不需要思考,因为我很明确自己想要的是什么。总体格局改变不大,因为预算有限,其实这房子原装修也还算新,加上厨房管道问题,就保留了橱柜和瓷砖,还有客厅地面瓷砖。
1.改了入户门,原本连墙垛都没有的内开门的过道是无论如何也放不下鞋柜的。改了外开门,玄关空间豁然开朗,再淘了一款最薄的鞋柜。
2.敲了客厅与阳台间的墙,改成带落地窗的餐厅,让我觉得赚了不止十万,简直是打开了新世界般。 我们楼是框架结构,没有剪力墙,阳台的墙是非承重墙。 至于许多朋友好奇的没有阳台如何晾晒,其实是在主卧窗台做了外挑的防盗网,下雨天还有可伸缩晾衣架可以挂在窗框上,梅雨天还有我的烘干洗衣机。办法总比困难多嘛。
3.重新规划了卫生间布局,改了门,放下了四件套。

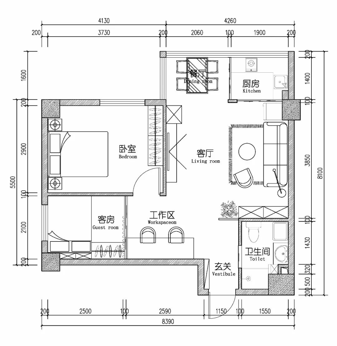
我做的Sketch up模型,一个不肯浪费每一寸空间的小家。我有个习惯――爱幻想,每每看到一处空间,闭上眼就看到了它可能的样子,甚至是一件小装饰品,一个生活小动作。所以,从幻想到入住,我们的家完成度达到90%。
玄关

内开门换成了外开门,收获了玄关空间,放下了17cm的最薄鞋柜。最让我开心的是户门的颜值与性价比,终于摆脱了难看的猪肝红门。超厚甲级门,外部是深棕色木纹与金属拼接,与我的黄铜色门牌号超配;内部是白色木纹,很多朋友还以为是我改造的。最值得推荐的是指纹锁,不用带钥匙的感觉真是太好,而且是关门自动反锁,再也不用焦虑地回想出门时是否锁了门。我觉得,若有条件,换个门还是件挺值的事儿,家的领域感在进门前便油然而生了。

鞋柜上方的电表箱画是我画的钢笔画而后订制的,吸引了许多第一次来我家的朋友的目光。金色的黄铜盘子,原本是想用来放置一些进门时的小物件,因为不用钥匙,我也想不出有什么可放的,就空着咯。

我喜欢的,每天打开家门见到的第一眼。因为户外走道太暗,总也拍不好这张照片,就上SU模型咯。除了客厅主灯不是图中的网红分子灯,其余基本是完全还原设计了。玻璃屏风与背后的琴叶蓉其实是大有作用,因为户型小,打开门便可一眼望到头,特别是站在门口就可以看到灶台,在风水上是大忌。于是有了现在的格局,琴叶蓉的高度经过测算正好可以阻挡灶台的视线,其次才是颜值。
客厅

先来张客餐厅全景,某天晚上下班回家,发现老妈从老家来了,正在为我们做晚饭,偷*拍偷**了张照,美丽的田螺娘娘。

黑白灰的客厅 ,仅有的彩色元素是远处厨房窗台上种的小葱、沙发背景墙搁板上画中行驶在废墟中的车、作为玄关隔断的琴叶蓉~

餐厅望向客厅,也完全是入住后的模样,只是一直未完工,也就没拍过照。客厅这个奇怪的大展示柜,也算是我的得意之作了。柜子分上中下三部分。中部4×4的格子既是书柜,也收纳了我满满几大箱的烘焙用品,最右边一列高颜值的黑白收纳箱也是储藏力满满,最低一行分两格,预留插座,以后还可以放置微波炉等小家电。其实亮点在于移门,可以随意划分展示区域,将不太整齐的部分藏在背后,颜值高的露出来,也方便取放物品。客厅旁有个柜子真是太方便,每当客人来我就瞬间从柜子里变出各种零食招待,哈哈。下部三个抽屉和柜子是专为我家四只龙猫量身设计的家,从不锈钢网门到家具都是亲手设计制作,因为家具制作技术问题,目前仍未完工,还在努力。

柜子的局部照片,目前储藏量还不足一半。

附上柜子设计草图,值得一提的是中间格子的高度,是根据我的书籍和物品以及将来可能购置的物品高度设计的,不舍得浪费任何空间。

客厅电视柜和餐边柜纠结了好久是买成品还是自己设计由木工现场做。木工刚做完时邻居惊呼怎么会做这么大个柜子在这儿,好丑。哈哈~但是我特别满意,作为一个烘焙和早餐控,餐边柜承包了我的烤箱、烘焙工具和早餐杯盘;电视柜完全悬空,特别好打扫地板。家的魅力只有自己用着才懂。电视底下的收纳篮也是我的心头好,收纳了路由器、机顶盒等,拯救了各种杂乱的线。

在本就不长的客厅做了一面45cm进深的收纳柜,是我觉得很庆幸的事儿。沙发是2.2米长的三人坐,再搭一把摇椅,刚好的温馨。关于客厅的地毯,许多小伙伴对地毯望而生怯,担心不好打理。其实大可不必,现在有很多好用的地毯清洁剂,一刷就干净,日常除尘有吸尘器,还有除菌剂可时常喷喷。我的客厅地面保留了旧瓷砖,冬天难免感觉冰冷,有了地毯便温暖不少。下班回家我会为自己做个简单的晚餐,就坐在地毯上,用茶几当桌面,边看电视边吃;或者靠着沙发,看一会儿书。这时候总会开心地发现,我的简易轻便的茶几真的太好用。偶尔发神经想跳个操或简单健身,移下茶几,在地毯上就可以动起来了,还不用担心吵到邻居。

我很喜欢的宜家落地灯,有时候一盏灯、一本书便是一个夜晚。哈~发觉家中哪都适合看书,其实我也并没有那么勤奋的。

最爱的午后时光――看暖洋洋的阳光游走在整个屋子~

客厅除了固定的沙发外,一把轻巧方便移动的小椅子,或许能为空间提供了更多的可能。
厨房

朋友说难以置信爱下厨的我的厨房,竟然是全家唯一没有敲成毛胚重装的地儿。因为改管道问题,我又不愿意牺牲采光(其实最重要的是装修预算有限~),橱柜就保留下来了。只是换了煤气灶、抽拉式水龙头、吊顶,添了隐藏式灯带、小厨宝、挂杆,清洁消毒了三次,重新规划了收纳布局;目前的小厨房,从操作台面到收纳功能,对我来说都是绰绰有余的。

突然觉得,或许是这小而明媚的厨房和餐厅以及回荡在客厅里的音乐,唤醒了我的每个清晨吧。家是该让我们按照自己喜欢的模样生活的地方~

起床倒杯水,遇见洒满厨房的月光,拍不出的月光,偷*拍偷**了两张灯光。

旧旧的吊柜承包了我的各种干货食材,用了带把手及轮子的储物盒,以我这矮冬瓜的身高垫个脚尖也可以轻松拿到最上层的盒子(不要放重物)。
餐 厅

夕阳下的餐厅,家中最爱的角落, 也是改造最大的地方。把小户型唯一的封闭阳台改成转角落地窗的餐厅,感觉获得了更美好的生活。我喜欢下厨、玩烘焙、做早餐,明媚阳光的餐厅便成了我更大的动力。周末的白天,餐桌还是我明亮的阅读区。

近期早餐合集,每个悠闲地吃着早餐的清晨,都是满满的幸福。

边包饺子边晒太阳的老妈~

餐边柜也是我的部分早餐杯盘收纳柜,好想快点堆高高,哈~

明媚的餐厅,生活简直不要太美好~

卫生间

我最喜欢的一张照片,大概是因为我喜欢黑白的纯净吧。此处我想为谷仓门正名,有许多朋友开始吐槽谷仓门华而不实,其实不然。首先谷仓门可节省内部空间,作为外挂移门又有了装饰作用。至于大家所说的密闭性不好,的确是,谷仓门难以避免会有较大缝隙。于是我灵机一动,量好缝隙尺寸,花几块钱淘来了白色门缝密封胶贴在内侧门边,谷仓门的密闭性居然比厨房的双层中空玻璃门还好。谷仓门适合于室内门,室外门如阳台门不建议用。关于门锁,可以去某宝购买专门的谷仓门锁的。两点提醒:一是谷仓门要安装在承重墙上(红砖墙也可以),非空心墙。二是建议谷仓门可采用玻璃拼接,这样就可以凭借灯光判断里面是否有人了。对于我家的暗卫,更是方便。

净面积只有3㎡的卫生间塞下了淋浴间和洗衣机,而且一点都不拥挤。把原来的内开门改成谷仓门,划分了刚刚好的淋浴间;舍弃不好用的角落砌了壁龛,拿取护肤品简直不要太顺手;超薄洗烘一体机,即使是大视窗开门也不会与马桶打架,总觉得是为我量身定做的哈,洗衣机旁的缝隙又恰好塞下了带轮子的收纳架,放置了洗衣液等;壁挂神器、免手洗带水箱的拖把和可折叠的扫把;当初纠结好久要美貌的镜子还是镜箱,现在觉得镜箱才是王道。

黑白风 迷你卫生间,壁挂神器和带 水箱免洗拖把、折叠扫把组合~

迷你卫生间里划分出的淋浴间,许多朋友说自己正在纠结淋浴间是装玻璃门还是浴帘。说说我家用浴帘的几点理由吧。
1.我的淋浴间很小,只有830*730,玻璃门显然是装不下的,而浴帘更灵活更易伸展活动;
2.玻璃门容易有水渍,需要经常擦洗。
3.考虑到以后可能会给小孩洗澡,浴盆可直接架于卫生间和淋浴间地面,预留了操作空间。
卧室

我喜欢的主卧一角,可是长辈难以理解的我的奇奇怪怪的审美。除了脏衣篮外,梯子可以挂睡前脱下的家居服,换下隔夜衣则挂在门后的免钉挂钩上,各司其职,又很顺手的。

主卧的正经的白橡木床头柜。

小推车替代床头柜,真是太喜欢。白色牛皮纸袋收纳了遥控器等小杂物,因为怕铁艺的小推车划伤眼镜,睡前脱下就随手丢进纸袋。

对百叶帘的爱 ,纯粹是对光影的执念。我喜欢光,喜欢明亮的环境,也就受不了每天在黑漆漆的房间里醒来。所以在卧室也只用了百叶帘,关上帘子的照度足够满足睡眠,最重要的是可以自由调节光线,倒也十分有趣。
书房

我的工作区,其实只是一个过道,黑框玻璃门里面就是次卧,我把次卧做小了,留了足够的区域做了“小书房”,就这样节省了小户型的交通面积。我们经常需要在家加班,必须得拥有两个人的办公桌。桌面尺寸2.2*0.7m,是用柜子剩下的板材请木工师傅帮忙切割的。桌旁预留了放置吉他的位置,倒成了装饰品。桌腿和文件柜购自宜家的,不得不说这文件柜超级能装。其实书桌上方还有一排String置物架,买来五个月了,但搬家后就懒得敲敲打打,至今一直拖延着还没装,等完工再来晒。

似乎从此便有了回家加班的动力了。

桌上是安藤忠雄的新书,竟成了装饰品似的。

宜家桌腿正面图,宜家是有很多款桌腿的,可我偏偏只要这一款。翻遍某宝代购,都找不到白色的桌腿,才知已经停产了,只能选择桦木款。其实我原本是想用桌腿来装主机箱的,不曾想,建筑狗要用的巨大机箱根本就塞不下的,只得摆在桌面。

他人眼中建筑狗奇奇怪怪的审美,偏爱黑白灰。

Sketch up的工作台草图,我竟把string架子也建出来了,期待装上后的美貌。
儿童房

次卧目前是客房,小小的榻榻米也就足够温馨。其实搬家后的很多时间,我都喜欢睡在次卧,小小的,很安心。特别享受早晨睁开眼,阳光透过百叶洒在被子上的感觉。

#窗外的植物~
-END-

报名去改造
你也可以拥有更美的家
