艺术品店老板梁阿姨 【Isabelle Leung】 终于决定在56岁的年纪退休了。
30年前因为一场事故,幸福的三口之家,瞬间变成母子二人的相依为命,为了生活,不服输的她从摆地摊做起,到如今已经拥有三间艺术品专卖店。富足的生活让她萌生退意,开始计划起未来的养老生活,于是便把生意全权交给儿子打理。事业发展得风生水起,眼光也很独到,2014年花了600多万港币在西环买了一套 实用面积约29㎡ 【314呎】公寓,现在升值35%。这是一个闹中取静的社区,不远处熙熙攘攘的商业中心带来购物便利,同时又享有梦寐以求的宁静维港景色,以及背靠群山环抱的景致。梁阿姨平日穿着以棉麻为主,在家居装修上,不追求奢华,采用现代原木风,低成本置出最朴素的精致,真的好温馨,一个人住太舒服了。


这栋公寓有25层,独特的玻璃幕墙设计,现代感十足,搭配绿意盎然的小花园,给人一种自由自在的生活感受。楼内配置了健身房、咖啡厅等设施,生活非常方便。
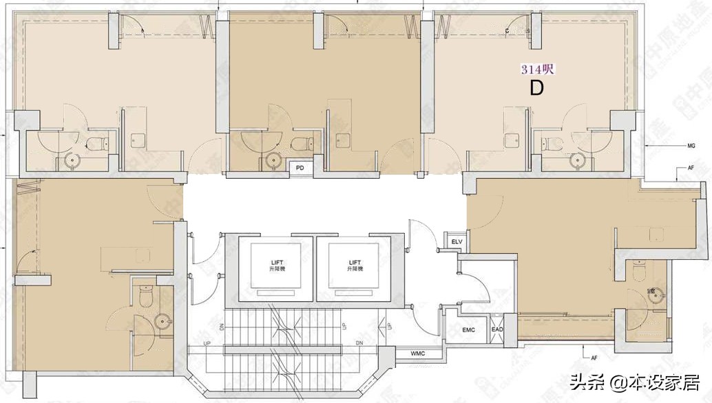
楼层平面图

两梯四户,实用面积从305-323呎,都是小户型,毕竟房价高,面积小才好卖。
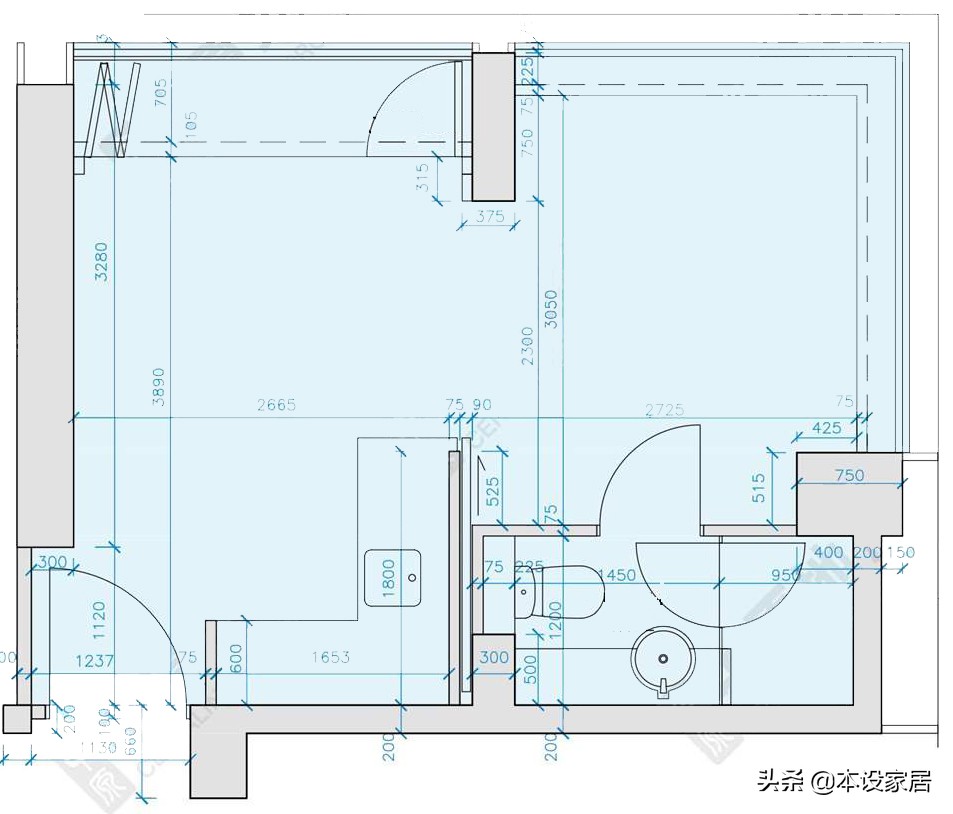
平面布置图


房子呈正方形,一室一厅一厨一卫的格局,基本是屋主根据自己的生活习惯和需求设计,整个平面布局相当紧凑,玄关、厨房、客餐厅和阳台布置在同一个空间里,另一边是卧室和卫生间,鞋柜、榻榻米和全屋定制柜,收纳堪称满分。
玄关

从卧室能看到玄关的布置情况,小小的空间被梁阿姨利用到极致,在入户门的对面定制一组木质鞋柜,同时防止了开门见厅的尴尬,上部方格透光的同时,还能放置书籍或展示品,一抹小小的绿植,则让空间充满活力。左边墙面上还安装了挂衣钩、木层板,以及换鞋凳,满足进出门使用。
厨房

通过玄关便是L型的开放式厨房,收拾得干净又整洁,暖暖的灯光烘托了氛围感,看起来特别温馨,充满烟火气。在电器和物品收纳上,屋主将迷你冰箱嵌入式安装到右边的木质橱柜内,底部留有透气孔。小件锅铲上墙,拿取方便,其他物品都收到上下橱柜中,也许这就是一个厨房最美的样子。
客厅 餐厅


客厅的灰色布艺沙发、茶几和电视柜,是梁阿姨要求的标配,空闲之余看看电视也是一种消遣。与小阳台之间采用折叠玻璃门,天晴晴好的日子,把折叠玻璃门完全打开,引进更多自然风和光线。阳台铺设防腐木,坐在这里晒太阳、看书,或再欣赏不远处的绿植,很惬意,很治愈。



木质茶几伸展开来,搬出电视机柜下方的木质餐椅,就是可供至少供四人就餐的餐厅。如果你够细致的话,也许会发现通往卧室的木质台阶都做了抽屉,放置小件物品,太机智了。
卧室

客厅和卧室之间定制一个电视柜和储物柜相结合的做隔断,墙面上点点滴滴的装饰品,搭配艺术鲜花,相当精致。有访客时,可以拉下藏在天花的布帘,保护隐私。


小户型卧室最适合做榻榻米,关键能储物,最吸引我的是在床头定制一组书柜,睡前可以看看书。阿姨为了防止木框书架积灰,安装了一对布帘,想得周到,而床边就是书桌,满足日常书写的需求。
卫生间

卫生间是暗卫,采用白色的墙地砖和洁具,减少了压抑感。
梁阿姨的小家面积不大,装修也不豪华,却是很多人心目中的理想家居,毕竟在香港,拥有一套属于自己的房子,是一件非常不容易的事情,你怎么看?