
人民优装开业季
借大连国际家居节的东风顺势启航!
作为大连家装行业创新型平台,6月27日将为大连人民首推标准化整装测评标准,我们邀请业内设计师、主材商及有家居审美力的用户代表参与测评,大连人民需要您!
导语:
一个好的家装设计是艺术品
承载了家庭对未来的想象
积淀着一家人丰富的情感
在房子这个有温度的容器里
陪伴着我们一起成长老去
转瞬即逝的幸福被凝聚了成永恒
欢迎参观“人民优装”艺术街区
在您喜欢的样板间呆上一天
再把它带回家宠上一生
梦想离现实,不过这条街的长度
在大连居然之家的三层,人民优装正在打造风格各异的家居样板间。
与一般的单独空间展示不同,这里每一个样板间都按照真实的户型打造,并且对室内的所有房间都做了完整的软装布置,力争给广大用户带来一种实景家装4S店的体验。
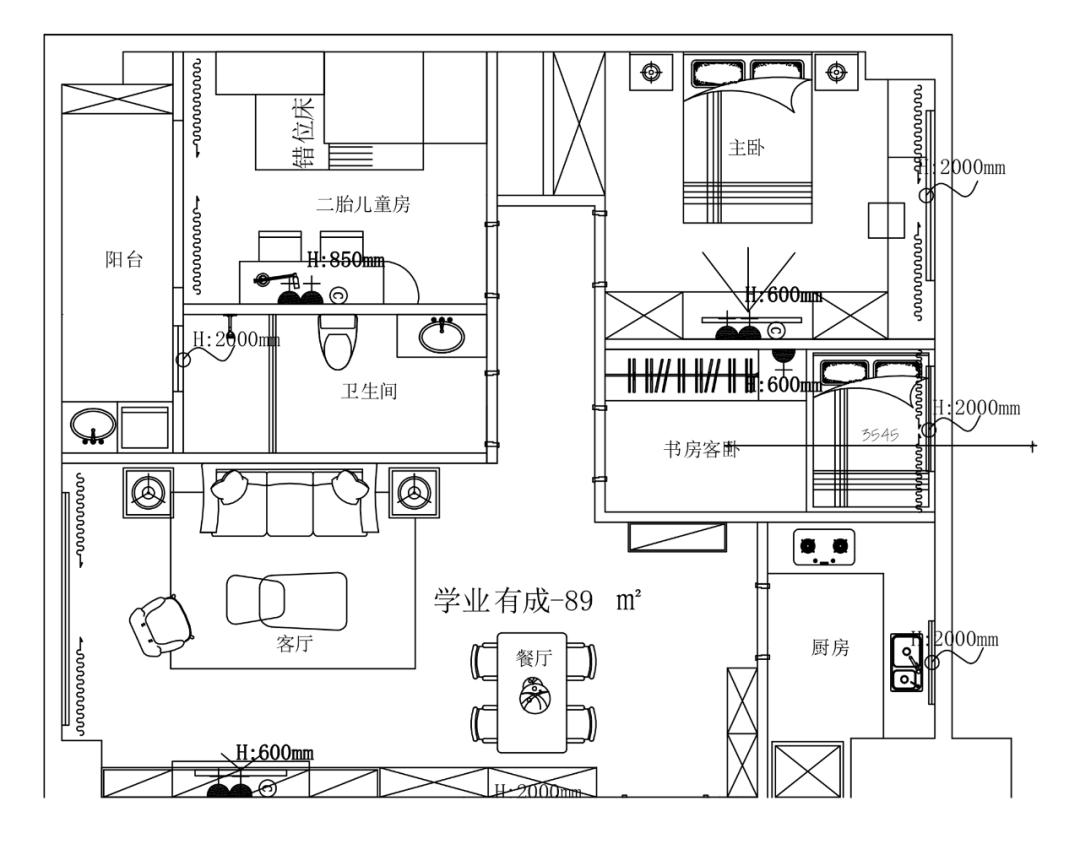
我们先一起来参观下简美风格4号样板间 - 学业有成


户型:3室1厅1厨1卫
面积:105㎡
风格:简美风格
色彩:从艺术美学和色彩搭配心理学双重角度,打造舒心宜居
此样板间以大面积柔和的暖色调为主,给人以悠闲舒适又不失古朴、典雅之感,搭配宁静的灰蓝色,犹如漫步于云端中。
样板间定位是新组建家庭,考虑到孩子的心理特点,避免单调,加入了中国红和浅绿色进行点缀,使整个空间活跃起来,如同夏日调色盘,清新而活力。

品牌:品牌是文化的载体,是产品工艺、质量、企业文化和价值的集中展现。
“谈笑有鸿儒,往来无白丁”,居住在各大品牌打造的房子里,对用户建立良好的价值观和事业观也会起到推动作用。
在品牌选择上,首先实力落地,其次外形和风格不拖设计的后腿,让房子增值保值,经得住时间的考验。
主辅材包括罗马瓷砖、融汇地板、科勒卫浴、益圆木门、尚品宅配橱柜/全屋定制、普洛达厨卫吊顶、尚品宅配家具、布言布语壁纸/壁布/窗帘、尚品宅配灯具、巴菲克厨电、海尔家电、西蒙开关、卓高美缝、尚品宅配淋浴房、德爱威乳胶漆
颜值:产品从硬装到软装无缝衔接,总体风格统一而美观,颜色、造型和触感都凸显匠心设计理念。
此样板间来自于中国全屋定制行业的领军品牌尚品宅配,在家具整体纹理、色彩、风格、质感等方面给客户都带来了良好体验。
雅致的设计、温暖的色调、低调实用的家具、宽敞的大客厅都呈现出了美式生活的精髓。
家具线条简洁柔美,去几分繁复,增一分优雅,体现出住户良好的文化修养和品味。
所营造出的温馨舒适,惬意自在的氛围,使人一扫工作的劳累疲惫。
客厅


选取了现代美式风格的家具,从餐桌椅、茶几、玄关柜到客厅柜,整体颜色和风格统一。
婉转的弧形和镂刻工艺给居室增添了浪漫和贵气。
沙发造型透露出古典的优雅,纽扣沙发最早来自欧洲古典风格,美式风格本身也是各种风格开放性的融合。
灰蓝色调安静又轻盈,当你回到家,犹如一股清新之风迎面而来,身心即刻得到了放松。
厨房
橱柜依然是采用简洁的线条、干净整洁的白色打造,温馨生活从每一天的早餐开始,一家人其乐融融,享受一起下厨的乐趣。

卧室


主人房以米色调为主,床头跟沙发一样依然选用了经典的纽扣款,高雅又不失俏皮。
搭配隐藏于墙面里的衣柜,从视觉效果上扩大了卧室空间。
电视柜配以大面积的储物和书柜空间,为居室增添了书香气。
飘窗和办公台的设计,可阅读、可品茶,抬头望望窗外的风景,感受岁月静好。
客房
软装的色调比其他居室深沉了一些,适合来家里帮忙照看孩子的长辈居住,整体米色调温馨、恬静,如同一杯咖啡,品味尽显其中。

“父母之爱子,则为之计深远”
儿童房

自国家开放二胎政策以后,很多家庭选择了多要一个宝宝。
大部分家庭出于经济和孩子间的情感联结考虑,一般都共用一个房间, 采用上下铺儿童床的形式, 极大的节省了空间。
此样板间儿童床的设计,巧妙将卧床和衣柜、书架等储物空间连接成一个整体,上下铺错落开来,休息玩乐互不影响。儿
童床也同时适用于独苗家庭,下铺成为一个小沙发,孩子自己仿佛拥有了一个小越层。

书桌和书架的设计依然是简单实用为主,兼顾了孩子学习和上网娱乐的功能。
生活环境对孩子健康成长的影响不言而喻,墙面采用的淡蓝色,营造出安静的氛围,有助于平稳低年龄段孩子过于活泼多动的情绪,将孩子的注意力集中在学习上。
适用性:设计源于生活,应用于生活。
在追求美感的同时,平衡创造与生活之间的关系。
简美风格在家具的尺寸选择上通常要比传统美式小一些,更适合东方人的人体结构和审美眼光,容易让人产生亲切感,同时避免了对整体空间过多的占用。
高性价比标准化整装解决方案
适合人群:温和随性、拥有浪漫情怀的人。
简约美式风格是简单的美好,“精于心,简于形”,将美式风格设计的元素、色彩、照明、材料简化到最少的程度。
少即是多,简洁利落,去除繁杂冗余,追求色彩质感,营造出温馨、素雅的环境。
强调“回归自然”、“宁静致远”,有一种暖意融融的恬淡,藏而不露的含蓄,远离俗世喧嚣的安稳。
目前人民优装线下在大连居然之家(金三角店)拥有3000多平米的整装一条街,一条街区入驻10个装修公司,18个标准化实景样板间,总有一个可以让我们为您搬回家。
实景体验所见即所得,避免了实际装修效果跟设计图之间会产生的落差感,让客户跟心目中的理想家园实现了零距离接触。

平台搭配的银行金融服务,托管装修款,先施工、后付款,不满意、不付款。
第三方验收服务,更是全方位保障了装修业主的权益。彻底让客户放心把房子交给我们!
“让装修像买车一样简单”是人民优装的使命,
从毛坯房到入住,消费者足不出户、动动手指就能实现。
我们为消费者提供:
经得住时间考验的家装解决方案、
优质的施工和售后服务,
为百姓省心、省时、省力、省钱。