时尚,轻奢,
是心中的一道风景;
温情,淡雅,
是梦中的一片光明。
118平米,欧式风格设计,营造奢华氛围,业主是一位成功的商业精英,家居装修要求精致浪漫,设计师给出本案,硬装部分花费18万,包含基础水电,人工费以及主材和个性化造型,家具家电费用另计。
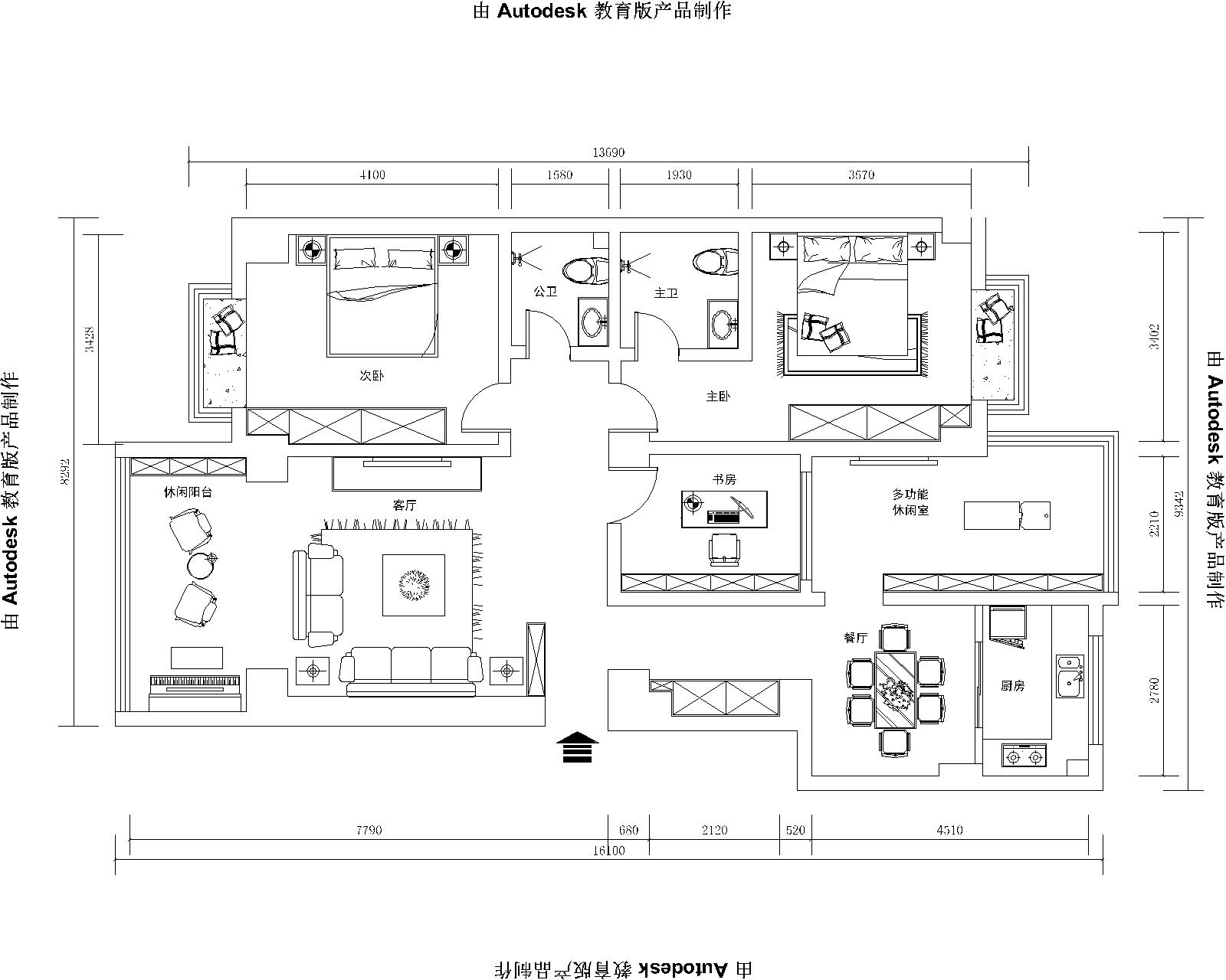
户型图


本案例的设计风格为简约欧式,营造典雅、自然、高贵的气质、浪漫的情调是本案的主题。 简约、质朴的设计风格是众多人群所喜爱的,生活在繁杂多变的世界里已是烦扰不休,而简单、自然的生活空间却能让人身心舒畅,感到宁静和安逸;藉着室内空间的解构和重组,便可以满足我们对悠然自得的生活的向往和追求,让我们在纷扰的现实生活中找到平衡,缔造出一个令人心弛神往的写意空间。

欧式餐厅的风格造型来源于欧洲的文化和生活方式,但最直接的是来源于欧式古典建筑。虽然欧式古典建筑在不同的时期和不同的地区风格造型各不相同,但欧式餐厅并不需要完全复制一个古典建筑的室内,因此我们在设计上将所有的欧式古典建筑的风格造型以及装饰细部进行筛选,选出有用的部分直接应用于餐厅的装饰设计;将欧式古典建筑的元素和构成进行简化和提练,应用于餐厅的装饰。

主卧大气浑厚的气势,让我们再次感觉到了欧式的不同之处。这款睡床充满温馨,木质的材料,浮雕的花纹,落地窗的处理,都让卧室显得时尚而又唯美,宁静而又脱俗。

身居次卧,最大的幸福就是拥有最舒服的大床,欧式床头与床沿精巧的雕花,给人以美得感受。精巧小台灯增添浪漫气息,配合柔和的光线,使人心神安宁,安然入眠。

对于成功人士来说,书房似乎拥有更高的含义,像是一种权利的象征,有种至高无上的威严感,也许书房比卧室更亲切,多少危机关头,他就是坐在这张书桌上指点江山,累了就趴在书桌上睡一会,是他的日夜奋斗才撑起一个家。

业主最喜欢的阳台,在夏日的晚上可以乘凉,冬天可以懒洋洋的晒太阳,看看外面的风景,听最可爱的女儿演奏钢琴,很惬意。

阳台打通改成健身休闲区,采光和通风条件都不错,而且又相对来说,较有私密性,适合做运动。

象牙白是欧式风格的常用色,她色泽柔和,高贵典雅,为我们带来了唯美的视觉冲击力,使整体家居氛围奢华而不张扬,时尚而不落俗套。

欧式风格的卫生间可以给人宏大的感觉,特别是当洁具摆放之后,还不会感觉到凌乱,这些都是因为我们在设置卫生间的时候,考虑到了它的主要适合的地方,通过欧式风格卫生间效果图可以彰显出唯美的意境

生存于钢筋水泥的丛林中,人们渴望质朴、休闲的家居环境。本案在求索休闲的同时,达到文化的深度,以感性的手法诠释休闲概念,表现质朴、自然、精致的休闲文化。
有人说,等你看过了世界
再决定降落的地点
但世界走遍后发现
在最熟悉的地方
做回自己才是曾经出发的初衷
与家人共享天伦
比起征服世界重要太多
欧莱德装饰
愿你的小家
在这个冬天愈发温暖
————本案设计师欧莱德装饰杨明寄语