八零原创,提供设计/施工/软装指导/全案代购一站式整体筑家服务。
量身定制设计方案,整体服务结束后绿城百合业主家实拍,一手打造,版权所有。

八零原创室内设计
项目位置:淄博 绿城.玉兰园 140㎡ 轻美式
设计/软装/施工:八零原创&八零匠心工程
摄影:Frankc

▲原始户型图

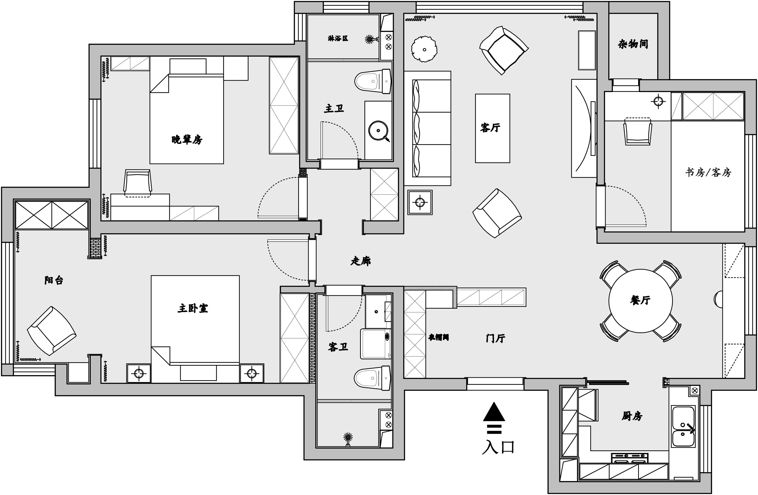
▲平面布局图

▲入户门处收纳

进门后的空间原本是和客厅完全连通在一起的,整个空间是一个非常规矩的长方形,在此处增设衣帽间,增加了储物实用性的同时,营造了入户仪式的空间感。


釉面仿古砖、皮质沙发、深色木纹家具和描金画框,营造出轻奢的质感;
淡蓝色墙面、棉麻窗帘、布艺单人沙发和绒面抱枕,打造惬意美妙的空间,使整个空间亦刚亦柔。




入户处到客厅部分,业主比较介意的这类一通到底的户型空间,但是做隔断或隔墙又会影响到空间的通透感,索性在进门处增加一个“吧台柜”的功能,既解决了业主在意的小心结,又可作为衣帽间的延伸增强实用性和美观性,一举两得。
▿






有一个可以观赏美景的阳台是很多人的梦想,如果在观景阳之余再丰富一下储物空间就更棒了。
所以在规划阳台时,利用了西侧整面墙,做了一个大大的储物柜,实用性瞬间提升N倍。




小书房的西侧是原来半室外的空调外机位,由于做了中央空调,外机位不在此处,所以这个位置也被利用起来。
电脑后方的隐形门,成为了一个不常用储物空间,在需要进出拿取物品时,可将书桌台面部分取下后进入,平时大部分时间则是作为书桌使用。在寸土寸金的房价下,独立的书房更是个奢侈的存在,在这个房间内还设置了榻榻米和衣柜,可以说小空间,大利用了,储物功能一点都不比其他房间差,甚至更强。



家到底是什么呢?大概就是很多很多的爱吧”
@八零原创室内设计
客服QQ:840543996 / 2281025772
电话:2888306
微信客服:ycsj8080 到店咨询请预约
地址:柳泉路与万杰路博士楼南邻,三泵科森院内四楼。