
© Ulrich Schwarz
建筑内部和城市结构的紧凑组织——其直接环境--创造出一种张力,这也是该设计的基础。商业建筑建立在几个历史地块上,并沿着三个非常不同的街道形成了区块。它 的对面是两个历史悠久的教堂,向北的是St Michael(圣迈克尔教堂,1583年至1597年),向南的是St Anna(圣安娜教,堂1735年),同时与位于Neuhauser Strasse 的“Alte Akademie”建筑以及在Altheimer Eck的前修道院连接。 Eisenmannstrasse是位于建筑前的一条狭窄的小巷,将NEUHAUSER大街(一条繁忙的购物街道)与位于Altheimer Eck 的Hackenviertel大街相连。
The compact organization of the inside of the building and the city structure – its immediate environment – create a tension that is the basis of this design. The commercial building has been built on several historic plots, and forms a perimeter block along three very different streets. It is situated opposite two historic churches, St Michael (1583-97) to the north and St Anna (1735) to the south, as well as the connecting buildings of the “Alte Akademie” at Neuhauser Strasse and the former convent at the Altheimer Eck. Eisenmannstrasse at the front of the building is a narrow alley, which connects Neuhauser Strasse, a busy shopping street, with the Hackenviertel behind Altheimer Eck.

© Ulrich Schwarz
该商业建筑半独立于街区的末端:位于两个主立面的两个不同的建筑体量形成两个对立的形式:铜和玻璃的不同呈现;坡屋顶与嵌壁式的阁楼地板的对比;角与圆的对比——并面对另一边的历史建筑与它们的风格不同的元素,形成截然不同的城市空间。两个建筑物体块不同的设计规则由第三个沿Eisenmannstrasse的建筑相整合。这并不形成额外的体块,而只是以自己的方式呈现在雕塑般的清晰的立面。以这种方式,整个项目包括三个内部无缝合并的不同元素,其都在。
The commercial building is semi-detached at the end of the block: two distinct building volumes at the two main elevations form two heterogeneous opposites –bronze and glass versus render; pitched roof versus recessed penthouse floor; angled versus rounded – and face the historic buildings on the other side with their contrasting elements, forming different city spaces with them. The two building volumes with their contrasting design rules are linked by a third one along Eisenmannstrasse. This does not form an additional volume, but merely presents a sculpturally articulated surface in its own right. In this way the whole development comprises three different elements, which seamlessly merge on the inside.

© Ulrich Schwarz
与“Alte Akademie”恰恰相反,该建筑创建了一个新的城市空间。角落部分的设计主要由青铜和玻璃幕墙立面组成,就像一张由不同宽度的壁柱条组成的斗篷笼罩着建筑上部。与此相反,从一楼延续至屋顶的青铜柱只有五处,每处都标记出历史地块。下两层的其它柱子以一个特定的顺序进行排列,与阁楼地板呼应,并形成不同宽度的条带壁柱的独特韵律。
Opposite the “Alte Akademie”, the building creates a new urban space. The corner development is dominated by a bronze and glass curtain wall façade, which, in the upper floors, envelops the building as a non-tectonic cloak of pilaster strips of varying widths. In contrast, the bronze pillars on the ground floor continue through to the roof in five places only, and mark the historic plots. The other pillars are arranged in a specific order on the lower two floors and correspond with that of the attic floor, which also features an independent rhythm of pilaster strips of varying widths.
所有一二层的玻璃元素和上层的雨搭玻璃都由具有氧化铁的透明玻璃组成;那些超过11米外窗格的窗框条由3cm厚的夹层玻璃和结构拨片两部分构成。首层和二层的商铺落地橱窗是安装在金属壁柱之外,从而只在里边揭示其雕塑质量。
All glass elements in the lower two floors and the rainscreen glazing in the storeys above consist of clear glass with a low iron oxide content; the slender, over 11 m outer panes consist of two parts of laminated glass which is 3 cm thick and bonded with structural foil. The glazing of the shop windows on the ground and first floors is fitted flush with the outside of the metal pilasters, thus revealing their sculptural quality only on the inside.

© Ulrich Schwarz
对面的圣安娜,与临近的及对面的建筑体风格连续,形成了坚实的构造建筑,互不雷同。后面的主题 - 以其很大程度上封闭的外观 - 是只有几个打开的窗口和以假窗结构为主的大型浮雕构造。
Opposite St Anna, continuity with the adjoining and opposite developments has been achieved with a solid tectonic building, without imitation. The theme on the rear – with its largely closed façade – is structured in the form of a large-scale relief with only a few open windows and a primarily blind window structure.
大型的玻璃面板 - 有一些细节 - 匹配圣安娜的侧墙及少数高楼层,对胡同起着镇静的作用。另一个对胡同产生影响的重要设计因素是微曲的产生光线和色彩渲染效果的外立面,在视觉上加宽了街道的微小曲率。
The large scale of the glass panels – with their few details – matches the side façade of St Anna and, with only a few high storeys, has a calming effect on the alley. An important design element, which has an impact on the alley, is the slight curvature of the light-coloured rendered façade, which projects in a concave curve and thereby visually widens the street.

© Ulrich Schwarz
为了实现无施工缝外观,该建筑采用钢筋混凝土,其中包括有20厘米厚的中间绝缘层。特殊混凝土将三个层结合在一起,同时还给予了足够的灵活性,能够承受热膨胀运动。外壁的外皮被牢固地与整体连接,以较低楼层的建筑物整体连接。与通常的隔热系统相反,它并没有包括一个能拆卸更换的外墙,而是采用了混凝土表皮,在施工过程中将其纹理化,并用石膏装饰。
In order to achieve a façade without construction joints, it was constructed in reinforced concrete including a 20 cm thick intermediate insulation layer. Special concrete anchors were used to tie the three layers together while also allowing sufficient flexibility for the construction to withstand thermal expansion movement. The outer skin of the external wall is firmly connected with the overall building through its monolithic tie to the lower floors. In contrast to the usual insulated render system, it does not consist of a detachable and replaceable outer insulation but instead of a concrete skin that has been textured in relief form during the shell construction and then finished with a lime-based plaster.
由于第三个立面连接了一个建筑,它具有分离功能,是一个纯粹的外立面。它的特点是一楼的橱窗和较高楼层青铜外挂幕墙立面。古色古香的金属被折叠成不规则的图案,形成狭窄的Eisenmannstrasse街道的一种放松氛围。以这种方式,它沿用了主立面的形式和材料,同时也与雕塑效果的立面形成呼应。
The third façade, which has as much a separating function as it has a connecting one, is purely a blind façade. It is characterised by display windows on the ground floor and a suspended curtain wall façade in bronze on the upper floors. The patinated metal has been folded in irregular patterns and forms a relief along the narrow Eisenmannstrasse. In this way it adopts the type and material of the main façade while also relating to the sculptural relief of the rendered rear façade.

© Ulrich Schwarz
所有用于建筑的铜元素由2毫米厚铜CuZn37合金薄膜组成。总共大约有45吨的铜被用于该项目。其中铜板一些长达4米。每张板都由一系列的手动程序从一个完整的形态分成了两种不同的流动形态,并以特殊的打蜡方法将其抛光及进行防锈处理。
All bronze elements used in the building consist of 2 mm thick brass sheeting with a CuZn37 alloy. In total approx 45 tonnes of brass were used for the project. Some of the sheets are up to 4 m long. Each individual sheet was dipped in its completed shape into two different patinating liquid baths in sequence using a manual process; between dips the panels were cleaned by hand, polished and protected against corrosion with a special wax solution.
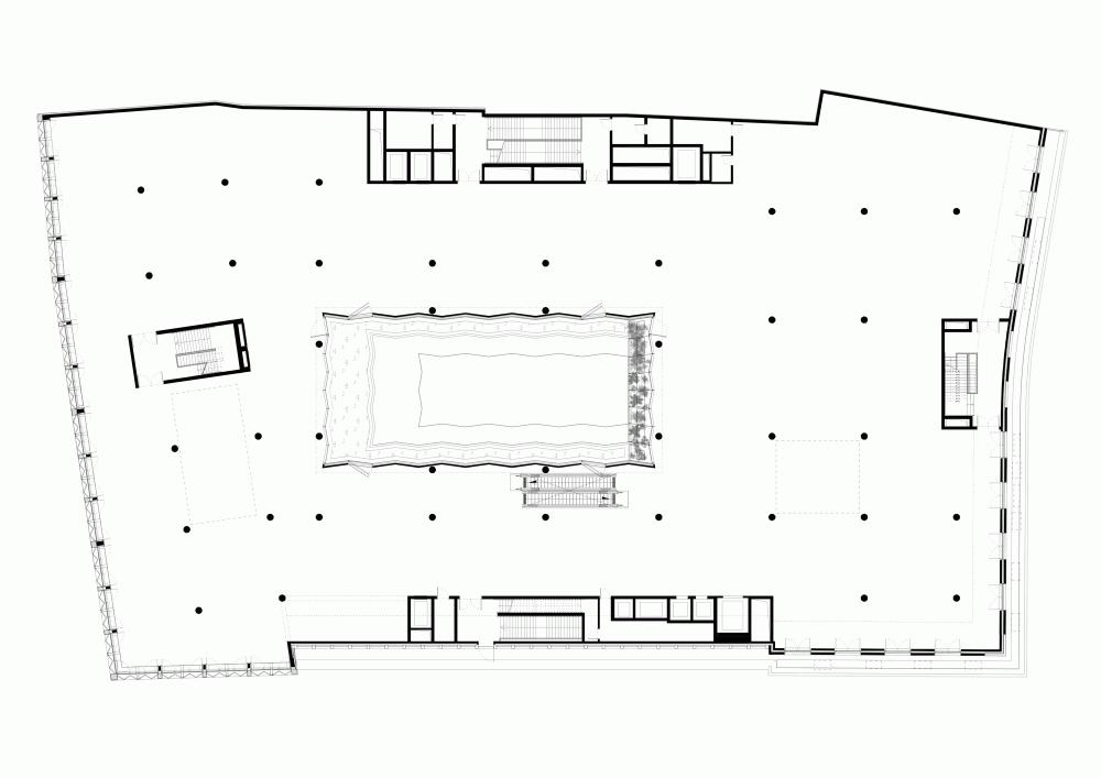
作为一个历史悠久的建筑,一楼的中庭作为形态元素被保留下来,但没有具体功能。它的作用是细分建筑物体块,同时作为入口区域,能从建筑物内的几个地方看到它。这种由内至外的关系是通过南侧一个影院般的温室得以进一步增强。相反,在北侧可以看到密集的垂直冬季花园反射到侧壁的折叠镜面玻璃;这种反射成为一个万花筒,让这个隐藏空间由人造的变成真实的。
As a trace of the historic structure, a central courtyard has been retained from first floor level as a morphological element without concrete function. It serves to subdivide the building volume while at the same time, functioning as a threshold area, it can only be seen from a few places inside the building. This inside- outside relationship is further enhanced by using a theatre-like greenhouse on the south side. Seen from the opposite, northern side, the dense vertical winter garden is reflected in the folded mirror glass of the blind side walls; this reflection becomes a kaleidoscope and allows the artificiality of this hidden space to become real.

© Ulrich Schwarz
室内外的所有植物的浇水和施肥系统都安装在地下或隐蔽在钢结构之后。此外,该温室包括高压喷雾喷嘴、植物灯、加热构件和由一个传感器控制的通风扇,从而为这里的外来植物创造了一个理想环境。更引人注意的是跨越多个楼层的花,创造了建筑精致的外立面。
All plants, both inside and outside, are watered and fertilised with the help of systems that are installed underground or within the steel structure. In addition, the greenhouse includes high-pressure spray nozzles, plant lights, heating elements and ventilation flaps which are controlled by a sensor and thus ensure an ideal climate for the exotic plants used here. Particularly notable are the passion flowers that climb across several floors creating a delicate cloak of flowers.






建筑设计:Kuehn Malvezzi 位置:德国慕尼黑 时间:2013 摄影: Ulrich Schwarz 合作者:Lauber + Zottmann 结构设计: Zilch + Muller 电气工程:IB WIEDER 电梯设计:FT Brendle 外观设计:A + F Fassadenplanungrchitects: Kuehn MalvezziLocation: Munich, GermanyYear: 2013Photographs: Ulrich SchwarzCollaborators: Lauber + ZottmannStructural Design: Zilch + MullerElectrical Engineering: IB WiederLift Design: FT BrendleFacade Design: a+f Fassadenplanung