
宝介拉面是一级棒餐饮集团与集美山田组强强联合之作,将日本最地道的拉面带来广州。作为寿司界的先驱、万岁寿司董事总经理--何荣万先生,自1999年,引进日本地道的回转寿司——万岁寿司,时隔18年,再次将引进地道日本美食。从选料、加工、烹煮甚至是炊具都是100%传承了北海道拉面的精髓,将最地道的日本拉面文化带来这里,只为食客享受最地道的日本拉面。


设计理念
设计师从樱花、日本街头星罗棋布的面馆、浮世绘、和服、动漫中攫取灵感,将拉面中的匠人精神一以贯之。

设计元素
有时一个人不知道吃啥,就会不知不觉逛到宝介。我有浓浓的日式拉面情结,喜欢这里热闹的气氛。每一个客人进门,店员们就会齐刷刷喊“いらっしゃいませ”,尽管觉得很吵~

设计前

设计后
空间设计
有人说,我们永远都找不到一碗完美的日式拉面,我们不能规定它限制它一定是什么样的味道,那只能希望,宝介拉面里,恰巧也有你喜欢的味道。而日本匠人精神在吃上的体现,从来也不会让人失望。

店内日本浮世绘风格的木版画和半透明木格栅屏风的巧妙搭配,让食客一下子就感受到浓郁的日本文化。

店内简单的分为多人食的廊区,和一人食的吧台区。座位间相隔并不远,打造了一个减少距离感的空间。简约的装修与有质感的原木桌椅,营造了深夜食堂的模样,让人还未吃到面,就感受到一种内心的温暖。

地道的日式拉面+浓郁的日式氛围,让我想起日本电视剧里:提着公文包、穿着西装的上班族一头钻进人声嘈杂的拉面馆,在券売機里投下1000円,点一份豚骨拉面坐在吧台前大口吸溜起来。这一刻,不是处在一个工作的状态而是生活的状态。

宝介拉面采用鲜有的高科技——自助点餐机,采用无人点餐的系统,让食客能够快速享受美食,同时节省了店铺用人成本。

店铺低调的木色招牌像一个日本经验丰富的匠人,手法技艺纯熟。店面一边是形象生动的拉面展示、一边是透明化的小窗口。食客享受美食的样子以及厨房里拉面师傅们忙碌认真的样子,尽收眼底。


蓝色的帆布帘半遮住了开放式的厨房,厨房内散发的氤氲雾气和暖黄的灯光,透过吧台能看见煮面师傅手法了得。音响里放的日语歌让同行的友人雀跃不已。环境简单舒适。
有什么烦恼,如果一碗拉面不能解决的话,那就两碗吧!有这一家亮着暖灯的拉面店,等着你喝下一碗热汤,等着你大口吃面——为你忙碌的一天,划下真正的句点。

VI设计
VI设计*特中**意加入了中国的书法元素,将宝介二字以书法的形式展现,体现了宝介拉面中日文化结合的理念。

书法中将宝介二字采用粗线条的手法,笔锋少,突出扎实感,厚笔触也让人感到更可爱亲切。

藏蓝色的帆布与中国书法字体结合,体现更加浓郁的日式风格。

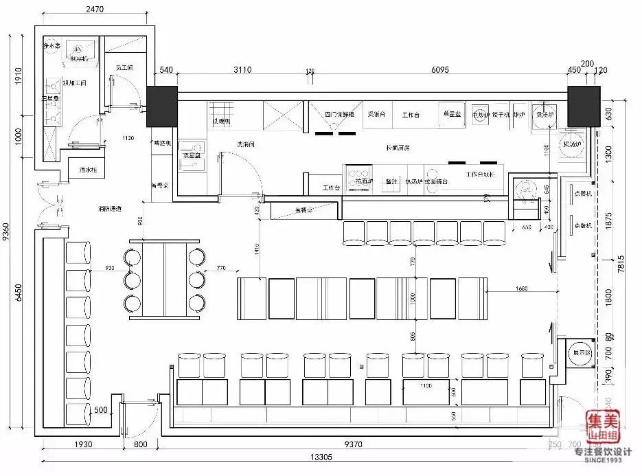
平面布置图:

项目概括
项目名称:一级棒餐饮集团宝介拉面
关键词:日式拉面
品类:日料
地点:广州市海珠区万国广场六楼
面积:104㎡
时间:2017年6月
服务:设计

优秀的项目当然少不了优秀的设计团队



- END -
原创 | 集美山田组