过完年了,马上就准备开春建房了。许多人还在为找不到好户型发愁。今天就给大家分享5套农村自建房户型,造价低于30万,都是值得建的好户型。建房前,多看多找,有了对比,建房才不吃亏。图纸快快收藏起来吧!
第一套
占地尺寸:13×8.6米
建筑面积:107平
参考造价:主体23万



第二套
占地尺寸:19×13米
建筑面积:191平
参考造价:主体20万


第三套
占地尺寸:8.2×11.7米
建筑面积:102平
参考造价:主体25万



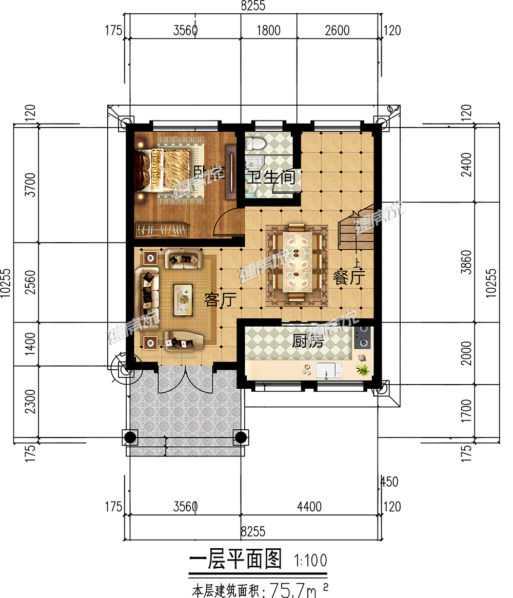
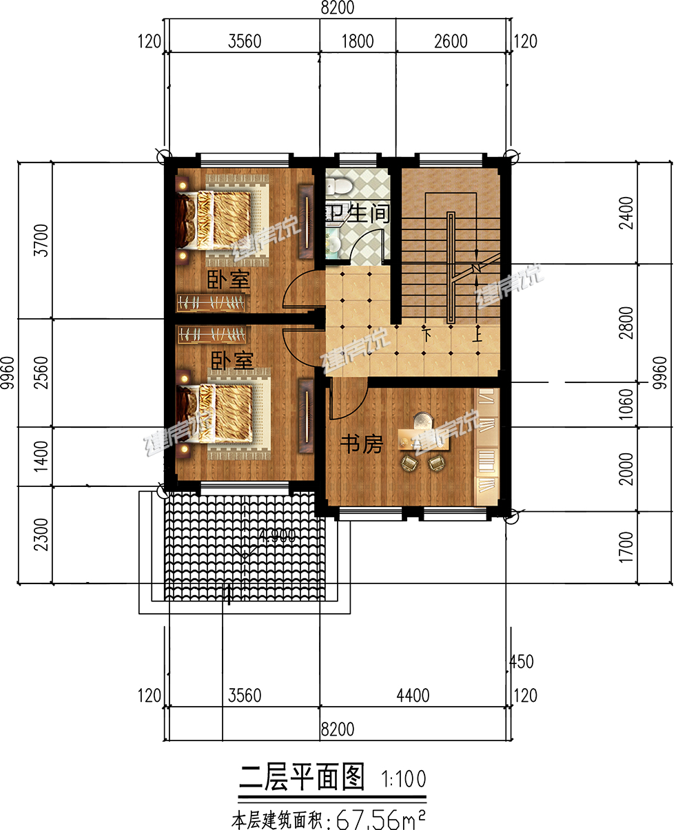
第四套
占地尺寸:8.2×10米
建筑面积:75平
参考造价:主体23万



第五套
占地尺寸:8.2×10米
建筑面积:80平
参考造价:主体18万

造价18-26万,开间8.2米,进深10.1米,占地面积80.71平方米

