今天齐家小菜分享的案例是40㎡的小户型装修,日式与简约结合,温馨舒适,越住越幸福。
经典案例
面积:40㎡
坐标:天津
风格:日式简约风
亮点:拆除隔墙重新规划空间,一室一厅+卫浴三分离,空间宽敞又明亮。

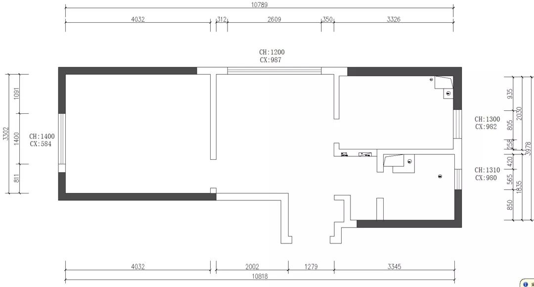
01、 户型图

原始结构图,40㎡的一室一厅格局,空间拥挤,客厅采光差。

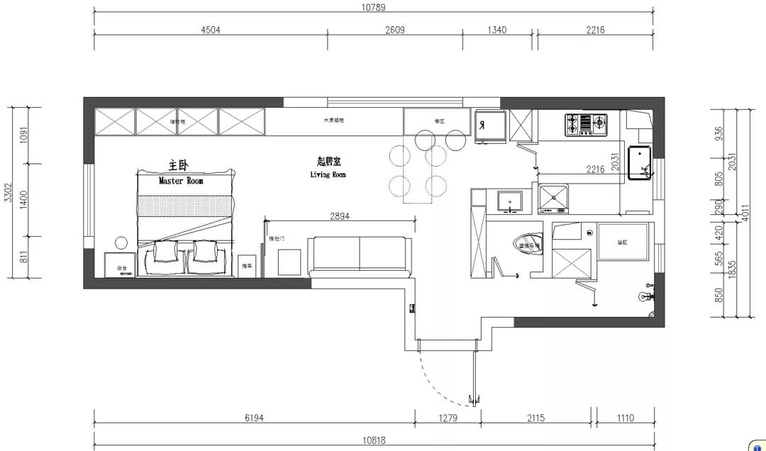
根据业主的需求,设计师做了如下改造:
1、 拆除原客厅与卧室的隔墙,采光充足,空间宽敞;
2、 拆除厨房与客厅隔墙,内缩厨房,剩余空间摆放冰箱、储物柜、洗脸盆;
3、 改变原卫生间格局,实现马桶、卫浴、换衣间三个独立区。
02、 入户

入户铺六角砖,深色系充满现代感,提升空间格调。靠墙布置成品矮柜,满足鞋子收纳需求,空间也不压抑。

墙面打造折叠换鞋凳,设计很贴心。涂鸦黑板墙,为居家生活带来一丝乐趣。旁边的储物柜,收纳狗粮和女主人化妆品。
03、 客厅

拆除客厅与卧室隔墙,利用三联动的推拉门隔断,改善空间采光,同时又保证私密性。

推拉门关上,客厅、卧室彼此独立不影响。推拉门打开,空气流通室内,空间不拥挤。

客厅采用无主灯设计,见光不见灯,时尚又大气。灰色沙发靠墙摆放,边几取代传统的茶几,留出足够的活动空间。
(此处已添加小程序,请到*今条头日**客户端查看)

电视柜和储物柜合二为一,利用墙垛做分割线,保证小空间有充足的收纳。白色弱化柜体厚重感,整洁美观。

电视柜旁边设计小吧台,平时可以充当书桌或者餐桌,底部是狗狗的休息空间,简直太完美了。
04、 厨房

拆除原有厨房隔墙,空间内推。挤出来的空间摆放冰箱、储物柜、洗脸盆,灵活实用。

U型厨房设计,满足洗、切、炒的需求,动线流畅。单边柜设计,避免视觉单调。操作台下方摆放厨房大电器,充分利用空间。

厨房虽小,但功能齐全,完美的收纳设计,既满足了日常生活需求,又保证了空间的整洁。

墙面空间合理利用,收纳井井有条,给厨房带来更好的生活体验。

为了满足衣物处理需要,还安装了壁挂式小洗衣机,让空间拥有更多可能。
05、 卫生间

改造后的卫生间更加实用,三分离设计,彼此不影响。六角砖一直延伸到浴室门口,几何感的渗透,让空间更有格调。

马桶区采用白色的洁具搭配仿木地砖,简约自然又耐看。无水箱设计的马桶没有异味,还可以避免堵塞。

淋浴区采用小浴缸和淋浴结合,方便给狗狗洗澡。上方还安装了可拆卸晾衣晾衣杆,小巧实用。
06、 卧室

卧室回归睡眠本质,没有多余的装饰和线条,简单的布局营造舒适良好的睡眠环境。

床尾一整排的衣柜设计,保证衣物收纳的需要。床边设计梳妆台,同时还能充当床头柜的功能。
写在最后
小空间大设计,面积小也不可怕,只要好好设计,还是可以拥有不错的效果。
本文由齐家小菜编辑,图片部分来源互联网,侵删!
文章来源:小户型装修案例精选(jiaxhx)
装修助手:齐家微微(qijiavv)