目 录
1 编制依据 3
1.1 工程合同 3
1.2 施工图纸 3
1.3 施工组织设计 3
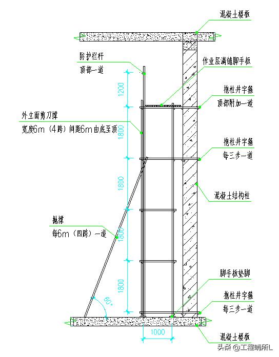
1.4 主要标准及规范 3
2 工程概况 3
2.1设计概况 3
2.2砌筑工程概况 4
3 施工部署 4
3.1 砌筑工期安排 4
3.2施工段划分 5
3.3人员及劳务组织 5
3.4样板工序及样板设置 6
3.5 移动筒仓散装罐布置 8
3.6 砌筑工程机电配合要求 11
4 施工准备 11
4.1 材料准备(项目根据图纸设计补充所用材料,以下为示例) 11
4.2 机具准备 12
4.3 技术准备 12
4.4 劳动力及作业条件准备 13
5 施工方法 14
5.1 施工工艺流程 14
5.2 作业条件 14
5.3 砌筑施工技术要点 15
5.4 砌体构造做法 18
5.5 植筋施工方法 25
5.6 模板工程 27
5.7 混凝土工程 28
5.8钢筋工程 29
5.9机电预留预埋 29
5.10电梯井砌筑原则 30
5.11操作架搭设 30
6 质量控制 34
6.1 允许偏差和检查方法 34
6.2 质量控制要点 34
6.3 质量通病防治 35
6.4 停止点报验要求 35
6.6 砌筑工程试验内容 38
7 冬期施工 42
8 砌筑工程成品保护要求 43
9 砌筑工程绿色安全文明施工要求 43
10 移动筒仓安全使用规程 44
11 砌筑工程质量通病防治 45
12 附图1: 46
1 编制依据
1.1 工程合同
XXXXXXXXXX项目施工总承包合同文件
1.2 施工图纸
由建设单位提供的各专业施工图(XXXX年XX月XX日收图)及后续变更、洽商。
1.3 施工组织设计
由本项目先期完成并经过审批的的施工组织设计。
1.4 主要标准及规范
表1-1 方案编制依据的主要标准及规范
|
序号 |
名 称 |
编 号 |
|
1 |
建筑工程施工质量验收统一标准 |
GB50300-2013 |
|
2 |
砌体工程施工质量验收规范 |
GB50203-2011 |
|
3 |
砌体结构工程施工规范 |
GB50924-2014 |
|
4 |
混凝土结构工程施工质量验收规范 |
GB50204-2015 |
|
5 |
蒸压加气混凝土砌块 |
GB11968-2006 |
|
6 |
预拌砂浆 |
GB/T25181-2010 |
|
7 |
混凝土结构加固设计规范 |
GB50367-2013 |
|
8 |
混凝土结构后锚固技术规程 |
JGJ145-2013 |
|
9 |
预拌砂浆应用技术规程 |
JGJ/T223-2010 |
|
10 |
地方标准 |
|
|
11 |
地方标准 |
|
|
12 |
加气混凝土砌块墙体建筑构造 |
L13J03-3 |
|
13 |
蒸压加气混凝土砌块建筑构造 |
03J104 |
|
14 |
砌体填充墙结构构造 |
12G614-1 |
|
15 |
蒸压加气混凝土砌筑砂浆与抹灰砂浆 |
JC890-2001 |
|
16 |
钢筋混凝土过梁 |
13G322-1 |
|
17 |
建筑砌体工程施工工艺标准 |
2 工程概况
2.1设计概况
表2-1 设计概况表
|
序号 |
项目 |
内容 |
|
|
1 |
工程名称 |
||
|
2 |
建设单位 |
||
|
3 |
设计单位 |
||
|
4 |
监理单位 |
||
|
5 |
施工单位 |
||
|
6 |
工程类别 |
||
|
7 |
设计使用年限 |
||
|
8 |
质量目标 |
符合国家及XXX省(市)有关工程质量、验收规范标准要求,工程质量合格;确保XXXXX奖。 |
|
|
9 |
建设规模 |
||
|
结构层高 |
地上标准层 |
||
|
地上首层 |
|||
|
地下一层 |
|||
|
地下二层 |
|||
|
..... |
|||
|
11 |
结构形式 |
基础结构形式 |
|
|
主体结构形式 |
|||
2.2砌筑工程概况
简要描述图纸设计中的砌筑位置及采用的砌块类型、砌块技术参数、砂浆等级等内容。示例:本工程建筑图纸设计防火分区隔墙、进风机房、排风机房、车库配电间、设备用房、中水处理站、楼梯间前室及楼梯间等所有填充墙均采用加气混凝土砌块砌筑(B06级),使用专用配套粘结砂浆;采用加气混凝土砌块(B06级),强度等级不低于5MPa,容重700kg/m3,耐火极限不低于3小时。砂浆使用专用配套粘结砂浆,强度等级5MPa,采用高保水性干拌混和砂浆。
3 施工部署
3.1 砌筑工期安排
|
施工部位 |
砌筑开始时间 |
砌筑结束时间 |
|
地下车库 |
||
|
1#楼 |
||
|
2#楼 |
||
|
…… |
上述时间为暂定的砌筑工程整体工期,具体工期及时间节点由工程部根据现场实际情况及本方案要求,充分考虑施工工艺流程及合理间歇,排定详细施工计划。
3.2施工段划分
工程根据确定的装修队伍进行砌筑施工段划分,明确好个装修队伍的施工区域(项目根据实际情况进行说明),必要时可增加装修施工段划分图。(例如地下室等不易明确的部位)

3.3人员及劳务组织
3.3.1 总承包方管理层负责人
表3-1 总包单位砌筑工程配合人员职责分工
|
技术部 |
项目总工 XXX 技术部长 XXX 方案工程师 XXX |
技术部负责施工方案的编制、深化以及协调解决技术问题。 生产经理负责砌筑工程的整体施工安排部署及协调,施工员负责砌筑工程施工前的安全技术交底,并指导具体施工。 在施工过程中协同安全部、质检部加强过程控制检查,砌筑工程施工完毕后配合劳务施工单位进行验收。 |
|
工程部 |
生产经理 XXX 工长 1#楼:XXX 2#楼:XXX |
|
|
质检部 |
质量总监 XXX 质检部长 XXX 质检员 XXX |
|
|
安全部 |
安全总监 XXX 安全部长 XXX |
3.3.2 分包队劳务层负责人
1#楼二次结构劳务分包:XXXXXXXXXX;
2#楼二次结构劳务分包:XXXXXXXXXX;
……
砌筑工程的施工人员配备以瓦工为主,适当配备吊装工、钢筋工、水工、电工、架子工等混合班组完成。班组组成人员多少,根据工程的规模、实际工程量的大小以及劳动力等情况进行适当安排。分包队负责人应做好工人的劳动安排和施工机具的调配,加强对工人的劳动及安全教育和施工现场的协调性。
劳务层负责人一览表
|
施工段 |
施工队伍 |
项目经理 |
生产负责人 |
技术负责人 |
质检 |
瓦工班长 |
|
Ⅰ段 |
XXXXX |
XXX |
XXX |
XXX |
XXX |
XXX |
|
Ⅱ段 |
XXXXX |
XXX |
XXX |
XXX |
XXX |
XXX |
3.4样板工序及样板设置
为保证施工质量,各分项工程(重要工序)在首次施工前由项目总工进行分项工程(重要工序)交底,各作业队严格按照交底进行样板工序施工,施工完毕经总包、监理检验合格后方可展开大面积的施工,样板工序须拍照存档备案,后期的施工质量不得低于样板工序的标准。
砌筑工程样板的重点内容包括:整体排砖、底部做法、顶部做法、构造柱做法、水平系梁做法、机电预留洞口设置、洞口后期封堵等。
本工程在XXXXX内设置一处砌筑工程样板间。具体位置为XXXXXXXXXX。样板间计划于XXXX年XX月开始进行施工。砌筑样板间位置、做法见下图所示。样板间位置为暂定,具体根据现场施工情况另行确定。
样板间位置(示例)


3.5 移动筒仓散装罐布置
根据地方相关要求(例如北京《关于加快推进本市散装预拌砂浆应用工作的通知》(京建法〔2012〕15号))及相关通知的精神及要求,砌筑砂浆设置移动筒仓散装罐,施工现场不得使用袋装预拌砂浆。干混砂浆散装移动筒仓见下图所示。(各项目根据工程所在地的相关要求确定是否采用移动筒仓散装罐)

图3-7 干混砂浆散装移动筒仓
(以下为某工程现场干混砂浆散装移动筒仓的具体做法,仅作为编写示例,各项目根据自身情况及做法进行修改。)
3.5.1 结合现场情况及砌筑工程量,根据施工需要,现场共设置X个移动筒仓散装罐,筒仓自重约2.5吨,散装罐外观尺寸筒体直径2.5米,高度7.2米。安装筒仓的位置根据现场实际情况确定。冬施应采用防冻型成品砂浆,需要设置独立移动筒仓散装罐,不能和普通砂浆移动筒仓散装罐混用。
3.5.2 使用方法
(1)设备组成:主要由散装干混砂浆运输车,散装干混砂浆储罐和连续搅拌机、散装干混砂浆储罐运输车等组成。
(2)设备基础制作:为了保证连续式干混砂浆搅拌机及储料罐工作平稳和保证称重装置的精确显示,确保安全,延长其使用寿命,要求安装在平整坚硬的混凝土基础上并高出周围路面,混凝土标号C25,该基础要求能承受压强为0.5MPa以上,且罐身底座基础不允许下沉、倾斜。基础平面度不大于4mm/m,基础尺寸为3x 3 x0.2m,高出地面,以利排水。
(3)设备安装:设备吊装时应采用整体*绑捆**式吊装,在安装使用前必须对全罐进行认真检查,如遇外力造成损坏或年久锈蚀、开焊等,必须立即进行修复并确保安全后方可继续使用,未修复前禁止使用。移动筒仓安装时储罐轴线与水平面垂直度要求在1/1000。移动筒仓需设置避雷装置。
图3-8砂浆管放置示意图
3.5.3 作业方式:首先由背罐车将移动筒仓运输到施工现场,然后散装干混砂浆运输车在砂浆厂散装口装料,开至工地将散装干混砂浆输送至移动筒仓,最后利用连续搅拌器进行加水搅拌。在接料口使用小推车或吊斗接料运至施工部位。加水搅拌的过程应进行监督和控制,避免拌合水量不适当影响施工质量。散装干混砂浆存放于筒仓内干料区,干料区砂浆进入搅拌区搅拌砂浆,搅拌区每次搅拌砂浆量控制在一个小推车容量左右,随搅拌随运输,加水量按规定随时控制。每天停止搅拌后,搅拌区必须进行清理,内壁不可存有剩余砂浆,应每天对清理情况进行检查。
3.5.4 安全使用规程
(1)移动筒仓必须安装在按要求施工的基础上,并经验收后方可使用。雨后由工程部门及安全部门对基础进行复查,在日常检查中,发现基础出现裂缝及破损现象,应立即停止使用,待修复完成后,再进行使用。
(2)使用前应对移动筒仓全面检查(主要查看送灰管道、溢流管道及排气孔等是否通畅)后方可使用。
(3)移动筒仓溢流管及排气孔必须保持畅通,所有孔径不得缩小,防止堵塞。每次泵干混砂浆前,必须查看是否堵塞,如堵塞须及时清理后方可使用。
(4)在使用储罐期间应设专人管理维护,确保罐体安装连接牢固可靠,出气口、溢流口畅通。
(5)砂浆移动筒仓操作人员必须设专人,必须经厂家培训合格后方可上岗操作,严禁非操作人员擅自操作。
(6)泵送干混砂浆时必须有专人监管。
(7)砂浆移动筒仓非压力容器,严禁超压、超时泵送。罐车送料时应随时观察泵车压力表、溢流管及排气孔情况,当发现溢流管、排气孔溢流冒灰或泵车压力表压力升高时,必须立即停止送料,以免发生危险。
(8)如出料有计量要求时,储罐放料最低位不得低于锥体上部,判断料位可采用敲击法。
(9)散装移动筒仓顶部应设警示标志。
3.5.5 防尘和污水回收措施
(1)移动筒仓搅拌机搅拌时,应在搅拌机旁设置临时沉淀池,砂浆搅拌机排放的废水要排入沉淀池内,经二次沉淀后,可回收用于洒水降尘或再次用于搅拌用水。未经处理的泥浆水,严禁直接排入城市排水设施。
(2)移动筒仓作业范围内派专人进行打扫,防止散落到地面的砂浆扬尘。筒仓上排气孔处设置防尘罩,以防止在送料时产生大量扬尘。
3.6 砌筑工程机电配合要求
3.6.1 施工前土建、机电工长必须认真核对图纸,弄清墙体内需埋设的管线位置和走向。机电工长在管线敷设前必须作好书面交底,交底要有可操作性和针对性,土建工长作好相应的配合工作。
3.6.2砌筑墙体中的各种预留孔,如风管、风口、消防箱、配电箱,留洞按设计标高、位置和尺寸准确留置,避免凿墙打洞,特别是对于建筑专业图纸上不显示的需要预留的洞口,应由机电工长以书面图示对砌筑施工队伍进行交底。现场严格按照机电专业提供的预留洞口位置图预留洞口,在需要预留洞口的位置处由机电专业现场定位放线,土建专业按照机电专业复核过的建筑图纸核实检查;当机电现场定位与土建图纸不符时,以机电专业现场定位为准。在现场砌筑前由土建专业和机电专业共同绘制砌筑预留洞口图,发往现场用以指导现场预留洞施工。
4 施工准备
4.1 材料准备(项目根据图纸设计补充所用材料,以下为示例)
4.1.1砌块
本工程采用XX专用混合砂浆砌XXX砌块(密度不大于XXXkg/m³),强度级别XXX;加气混凝土砌块共XX种规格:主砌块公称尺寸为XX(长)×XX(宽)×XX(高),XX(长)×XX(宽)×XX(高),XX(长)×XX(宽)×XX(高)分别用于XXX厚墙体,XXX厚墙体和XXX厚墙体砌筑,另准备规格XXX×XXX×XXX的砌块作为调整砌块配合砌筑。
砌块进场后应进行抽样复试,且应有产品合格证、备案证、产品性能检测报告。砌块应有材料主要性能的进场复验检验报告,合格后方可使用。
加气砌块出场28d后方可用于砌筑,砌筑时的含水率宜小于30%。
4.1.2砂浆
(1)按设计图纸要求,砌体采用砌筑专用混合砂浆,砂浆强度等级为XX。
(2)砂浆采用成品预拌砂浆。如在砂浆中掺入有机塑化剂、早强剂、缓凝剂、防冻剂等,经检验和试配符合要求后,方可使用。有机塑化剂应有砌体强度的型式检验报告。
(3)砌筑砂浆的检验批,同一类型、强度等级的砂浆试块应不少于3组。
4.1.3蒸压粉煤灰砖
(1)砌体填充墙垫地砖采用XXX蒸压粉煤灰砖,规格为200*95*53mm。品种、规格、强度等级必须符合设计要求,边角整齐,规格应一致。有出场证明、试验报告单。
(2)对所选用的所有砌筑材料要进行各项技术指标的检验、复验工作;检查原材料的产品合格证,产品性能检测报告以及原材料的复式报告是否满足国家验收规范及设计技术指标要求。
(3)砌筑材料要提前进场,并进行原材料进场的数量及外观质量验收工作,按照不同的规格分别码放整齐。
4.1.4 钢筋
砌筑工程中构造柱、水平系梁、过梁等构造内有钢筋布置,主筋采用三级钢XX(用于XXX、XX)、XX(用于XXX),箍筋采用XXX,水平拉结筋采用XXX。具体技术要求参照钢筋方案。砌筑工程内的钢筋连接均不采用机械连接套筒。
4.1.5 混凝土
按结构图纸说明XXX条要求,砌筑工程中混凝土构造柱、过梁、抱框等构造内浇筑混凝土,一律采用商品混凝土,强度等级XX,其余采用XX商品混凝土。具体技术要求参照混凝土方案。
4.1.6 其他材料
砌筑工程使用的其他材料如植筋胶(*级A**)、玻纤网格布等均应符合相应规范,满足设计要求,并具备产品合格证及相关技术要求的检验报告。
4.2 机具准备
1)垂直运输塔吊,在现场布置X台,位置根据现场情况布置。
2)提前安装好切割机、并准备手推车XX辆。
3)砌筑填充墙工具准备:大铲、刨锛、瓦刀、扁子、托线板、线坠、小白线、卷尺、铁水平尺、皮数杆、小水桶、灰槽、扫帚、专用砌块锯、专用镂槽工具、灰斗、吊蓝、小撬棍、等机具材料。
4.3 技术准备
4.3.1砌筑工程施工前,认真熟悉图纸及排转图,核实门窗洞口位置及洞口尺寸,明确预埋、预留位置,算出窗台及水平系梁、过梁顶标高,熟悉相关构造及材料要求。认真学习国标、地标、企业标准和XXX杯验收标准。对于图纸中不明确的问题或有疑问的地方,及时与设计单位取得联系,并及时办理设计变更,确保不因图纸问题影响施工。
4.3.2 砌筑工程施工前,结合图纸及实际情况,执行三级交底制度。施工方案经公司、监理审批合格后,由项目总工或方案编制人组织项目各部门召开方案交底会,明确施工中重要技术要求、施工难点及注意事项。施工员结合工程特点和实际情况,把施工方案进一步细化,严格按规范规程、工艺标准详细安排各分项工程的操作方法、质量标准、检查验收要求等内容,通过书面向现场操作人员进行详细的交底,作为工人操作的依据。现场再由施工队班组长向工人进行交底。
4.3.3 使用经过校验合格的检测和测量工具。
4.3.4 制定该分项工程的质量目标、检查验收制定等保证工程质量的措施。
4.4 劳动力及作业条件准备
4.4.1砌块砌体的施工人员配备以瓦工为主,适当配备少量壮工、钢筋工、木工、砼工、水工、电工、架子工等混合班组完成。班组组成人员多少,根据工程进度、工程量的大小以及劳动力等情况进行适当安排。
4.4.2主体分部中承重结构已施工完毕,已经由相关部门检验合格。
4.4.3在楼板上弹出轴线、墙体300mm控制线和门窗洞口位置线,并在四周墙上弹出建筑1000mm标高控制线,经复核,办理预检手续。
4.4.4立皮数杆,宜用40mm×40mm木料制作,皮数杆上注明门窗洞口、木砖、拉结筋、圈梁等的尺寸标高。皮数杆间距10m,转角处均应设立,一般距墙皮或墙角50mm为宜。皮数杆应垂直、牢固、标高一致,经复核,办理预检手续。
4.4.5砌筑前,应将地基梁顶面或楼层结构面按标高用粉煤灰砖找平,依据图纸放出轴线、砌体边线和洞口线。地基梁顶面或楼面清扫干净,洒水湿润。
5 施工方法
5.1 施工工艺流程

5.2 作业条件
5.2.1 砌筑工程应在地下室结构或地上结构施工完毕,办理完各类验收手续之后,方可插入地下室或地上砌筑施工。施工前应保证足够工作面,并将基层作业面清理干净、洒水湿润。
5.2.2 搭设好施工脚手架及卸料平台,操作层脚手板铺平、铺稳固定牢固,挂好安全网。检查所使用的机具、材料是否到位,符合使用要求。
5.2.3 在楼地面和墙柱上弹好轴线、边线、门窗洞口位置线以及其他位置线,同时办理好验线签字手续。
5.2.4立好皮数杆。皮数杆可用30mm×40mm木料来做,皮数杆上注明门窗洞口、拉结筋、水平系梁、过梁等尺寸及标高。在砌块墙转角处及交接处均应设立皮数杆,距墙皮或墙角50mm为宜,皮数杆间距以不大于15m为宜,两相对皮数杆之间拉准线,皮数杆经复核,办理预检手续。
5.3 砌筑施工技术要点
5.3.1组砌方法
墙体砌筑前,应进行试排砖和组合,墙体采用上下皮错缝的砌筑形式,搭接长度不应小于砌块长的1/3,且不应小于150mm,当搭砌长度小于150mm时,即形成通缝,竖向通缝保证不大于2皮砌块。砌筑时应满铺满挤,上下错缝,转角、丁字连接部位的砌块应上下层咬砌搭接,砌块墙的转角、丁字交接处,应使横墙砌块隔皮端面露头,砌缝中砂浆必须饱满,将挤出的砌筑砂浆随砌随清,长度小于等于200mm的砌块不得上墙,砌块墙体两端与墙体接触处灰缝必须饱满。

墙体转角及纵横墙交处砌法
2)干拌砂浆的拌制
(1)干拌砂浆的强度等级为XX,必须符合设计图纸中的技术要求。施工人员应按使用说明书的要求操作。
(2)干拌砂浆宜采用机械搅拌。如采用连续式搅拌器,应以产品使用说明书要求的加水量为基准,并根据现场施工稠度微调拌和加水量;如采用手持式电动搅拌器,应严格按照产品使用说明书规定的加水量进行搅拌,先在容器内放入规定量的拌和水,再在不断搅拌的情况下陆续加入干拌砂浆,搅拌时间宜为3~5min,静停10min后再搅拌不少于0.5min。
(3)使用人不得自行添加某种成分来变更干拌砂浆的用途及等级。
(4)拌和好的砂浆拌合物应在使用说明书规定的时间内用完,在炎热或大风天气时应采取措施防止水分过快蒸发,超过初凝时间严禁二次加水搅拌使用。
(5)散装干拌砂浆应储存在专用储料罐内,储罐上应有标识。不同品种、强度等级的产品必须分别存放,不得混用。袋装干拌砂浆宜采用糊底袋,在施工现场储存应采取防雨、防潮措施,并按品种、强度等级分别堆放,严禁混堆混用。
(6)如在有效存放期内发现干拌砂浆有结块,应在过晒后取样检验,检验合格后全部过筛方可继续使用。
5.3.3排块撂底
按设计图纸要求放出墙体轴线和门窗洞口位置的尺寸线,用干砖试摆,进行排块撂底,来确定排砖方法和错缝隙位置,使组砌方法合理,便于操作。以砌块的模数按弹线标出的尺寸位置进行排砖撂底,排砖前应严格核对门窗的位置。门、窗间墙垛、构造柱的尺寸是否符合排砖模数。加气混凝土砌块排块时水平灰缝厚度按10mm,竖向灰缝宽度按10mm。
5.3.4立皮数杆、挂线
皮数杆上注明门窗洞口、混凝土块、拉结筋、圈梁等的尺寸标高。皮数杆间距10m,房屋转角处及内外墙交接处均应设立,一般距墙皮或墙角50mm为宜。应挂外手线进行砌筑,如果工作面较长,应注意中间“腰线”,此挑线点应以两端盘角点贯通穿线看齐,水平灰缝均匀一致,平直通顺,做到“上跟线,下跟棱,左右相邻要对平”。
5.3.5墙体砌筑要点
(1)选砖:蒸压加气混凝土砌块外观尺寸要均匀一致,不可缺棱掉角,以有利于砌筑时的灰缝控制均匀。
(2)浇水:砌筑当天对砌块砌筑面喷水湿润,含水率在40%-50%,水浸入加气砌块面内深度8mm左右。加气块砌筑前应向砌筑面适量浇水,砌体砌筑完后洒水养护3~5d。
(3)排砖:墙体砌筑前,先进行加气混凝土砌块的试排,根据墙体长度、高度及门洞位置进行试摆砖,使组砌方法合理,便于操作。排块时做到上下错缝,加气砌块的搭接长度不应小于砌块长度的1/3,且不应小于150mm,保证竖向通缝不应大于2皮砌块。
(4)砌筑前必须立皮数杆,并且拉线,吊砌一皮,校正一皮,拉线控制砌体标高和墙面平整度。砌筑走廊两侧通长墙体时,应使用一根通线,中间应设几个支线点,小线要拉紧,每层砖都要穿线看平,使水平缝均匀一致,平直通顺。
(5)加气混凝土砌块墙转角处严禁留直槎,纵横墙整体咬槎砌筑。应使纵墙的砌块相互搭砌,隔皮砌块露断面。加气混凝土砌块墙的T字交接处,应使横墙砌块隔皮露断面,并坐中于纵墙砌块。临时间断处拖斜槎,斜槎水平投影不小于砌体高度2/3;接槎时先将接槎处清理干净,浇水湿润,然后铺浆接砌。砌体每日砌筑高度不应超过1.8m。
(6)砌筑前将加气砌块表面的浮灰、油渍及其它污物清理干净后方可装运就位。砌筑就位应先远后近、先下后上、先外后内;每层开始时,应从转角处或定位砌块处开始,吊砌、校正、拉线,以控制砌体标高和墙面平整度。
(7)蒸压加气混凝土砌块水平灰缝厚度10mm,竖向灰缝厚10mm,灰缝必须饱满不得松动。砌块应上下错缝,砌块搭砌长度不应小于块长的1/3,且竖向通缝不应大于2皮砌块。砌筑时铺浆长度以一块砌块长度为准,铺浆应均匀,厚薄适当,浆面平整。铺浆后应立即放置加气砌块,并一次摆正,或在砂浆失去塑性前调整,否则应铲去砂浆重铺。竖缝应填满捣实,刮平,严禁用水冲浆灌缝。
(8)砌筑时保证灰缝砂浆饱满,灰缝要求横平竖直,墙面必须采用原浆及时做勾缝处理。缺灰处应补砂浆压实。灰缝做成凹缝,凹进墙面2mm。勾缝横平竖直、光滑密实。不得有透明缝、瞎缝、假缝。
(9)墙体中留设槽洞和埋设管线应符合下列要求:
①应按施工图中要求的槽洞位置及截面尺寸,在砌筑时正确预留,且不得在砌块墙体上开凿水平及斜向沟槽。
②为了埋放竖向暗管,可开竖向沟槽,沟槽截面为60mm×60mm,管线安装后,用预拌砂浆分两次抹平。第一次填实至距表面8mm处,待干后再用砂浆抹平,表面敷设耐碱玻纤网布,宽度应跨越槽口,每边伸入墙内为长度100mm,并绷紧钉牢。
③加气砌块墙体与其它零配件的连接,应牢固可靠,使用的预埋钢件应除锈,并刷丹油一度,防锈漆两度,预埋件不得固定在小规格的加气砌块上。
(10)雨期施工砂浆粘稠度应适当减小,每日砌筑高度不宜超过1.2m,收工时应用防雨材料覆盖新砌墙体表面。
(11)墙体砌筑时不得留脚手眼。每一楼层内的砌块墙体应连续砌完,不留接槎。如必须留槎时应留成斜槎,或在门窗洞口侧边间断。加气砌块不应被水浸泡。墙体的局部凹缺,应用专用修补砂浆填补,不得用其它材料填塞。
(12)后砌加气砌块填充墙,应在主体结构浇筑完成28d后开始砌筑。
(13)当墙内嵌入式安装消火栓箱、配电箱等设备穿透墙体时,应使箱体背面与墙平,箱体背面用防火背板,喷涂防火涂料,缝隙用不燃烧材料封堵严密,满足所在墙体的耐火极限要求。未穿透墙体时,也应用此措施保证所在墙体的耐火极限要求。见下图:

(14)本工程卫生间等有水房间周边墙体下部除门洞口外均做等墙厚砼上翻沿(砼标号同楼板),高度高于同层建筑完成面200mm,结构面起300mm。然后再砌筑墙体。
(15)填充墙与剪力墙、框架柱、梁的表面接缝处均采用钢丝网砂浆加强带进行处理,网片宽为300mm,沿界面缝两侧各延伸150mm。
(16)楼梯间和人流通道的填充墙,应采用钢丝网砂浆面层加强。填充墙两面均沿墙全长贯通设置20mm厚M5钢丝网砂浆面层,钢丝直径1.8mm,间距20mm*20mm,用钢钉(直径4mm,埋深40mm,间距200mm)固定在墙上。
5.4 砌体构造做法
5.4.1构造柱
(1)构造柱设置的工艺流程
植筋®绑扎钢筋 ® 砌筑墙体 ® 清理 ® 隐检 ® 支模 ® 浇筑混凝土® 拆模®养护
2)构造柱设置原则
① 本工程在洞口宽度大于2m的洞口两侧需设置钢筋混凝土构造柱;
② 墙长大于5米或层高的2倍时,应设置间距不大于4m的钢筋混凝土构造柱,配筋及尺寸见下图:

③ 楼梯间填充墙应设置间距不大于层高且不大于4m的钢筋混凝土构造柱;
④ 屋面女儿墙与外墙窗台采用砌体砌筑时,沿墙长每隔2.5m及墙体转角处设置钢筋混凝土构造柱与压顶圈梁连接。
⑤ 墙体转角处需要设置构造柱,墙体端处需设置构造柱。
(3)构造柱截面尺寸及配筋
构造柱截面尺寸为墙宽×200,纵筋XXX,箍筋XXX,构造柱主筋与上、下端楼板或梁采用植筋连接,当植筋部位为梁时植筋深度为15d;当植筋部位为板时,植筋深度统一为80mm(因楼板设计最小厚为100mm,植入深度控制在80mm,以防打穿楼板),构造柱主筋采用绑扎搭接,搭接长度不少于450mm。在构造柱的顶部设一个钢筋井字型固定架,井字架在钢筋骨架内侧与箍筋一起将构造柱钢筋固定,确保了构造柱主筋间距,工具式井字架周转使用,能够有效地防止混凝土浇筑振捣过程中的钢筋位移。钢筋井字架根据构造柱尺寸制做。井字架两则紧靠砖墙,另两侧井靠模板,安装前要确保尺寸准确。井字架安放后与箍筋一起绑在构造柱钢筋上,最后进行模板安装。马牙槎边必须粘海绵条,防止漏浆,合模前将构造柱根部凿毛,并将混凝土浮浆及垃圾清理干净、模板加固时用步步紧在墙体的竖向灰缝穿过,作为固定拉结,模板龙骨用50x80的木方,在穿墙及拉结时,注意对墙体的保护,不得拉动墙体变形。构造柱须先砌墙后浇筑,砌墙时墙与构造柱连接处要砌成马牙槎,马牙槎深入墙内60mm(从每层柱角开始,先退后进,一退一进,形成凹凸槎口,凹凸槎留置成45°斜槎)。构造柱采用CXX混凝土浇筑,构造柱设置图如下:

构造柱大样图及拉结筋做法
(4)构造柱支模
支设构造柱模板时,采用对拉螺栓式夹具,穿墙螺杆设置混凝土构造中,为了防止模板与砖墙接缝处漏浆,用双面胶条粘结。构造柱模板根部应留垃圾清扫孔。在浇灌构造柱混凝土前,必须向柱内砌体和模板浇水润湿,并将模板内的落地灰清除干净,先注入适量水泥砂浆,再浇灌混凝土。振捣时,振捣器应避免触碰砖墙,严禁通过砖墙传振。
禁止做法 正确做法
5.4.2 圈梁
(1)圈梁设置原则
当填充墙高超过4m(墙厚≥200)或3m(墙厚<200)时,在墙体半高或门窗及设备洞顶处设置与混凝土墙柱连接且沿墙全长贯通的钢筋混凝土水平圈梁。
屋面女儿墙采用砌体砌筑时,墙顶处设置沿墙全长贯通的钢筋混凝土水平压顶圈梁。圈梁混凝土强度等级为CXX。
(2)圈梁截面尺寸及配筋
圈梁截面:墙厚×150,纵筋XXXX,箍筋 XXXX,圈梁与结构墙、柱采用植筋连接,植筋深度为15d,圈梁主筋采用绑扎搭接,搭接长度不少于450mm。
当圈梁被门洞口切断时,应在洞顶设置一道不小于被切断圈梁截面和配筋的钢筋混凝土附加圈梁,其配筋、截面尺寸尚应满足过梁要求,搭接长度不小于1000mm,做法如下图:
5.4.3拉结筋
砌体填充墙应沿结构墙柱、构造柱高度每隔500~600mm配置X
X墙体拉筋,拉结筋沿后砌墙通长设置,搭接长度为300mm,拉结筋须做拉拔试验,搭接位置端头绑扎铅丝,砌筑时将铅丝伸至墙外,以示存在拉筋,待后期抹灰时掩盖。本工程采用的蒸压加气混凝土砌块公称高度为240mm,根据模数按每隔500mm,即每隔2皮砖设置一道X
X墙体拉结筋,墙厚为100mm时同为双筋置于墙中。
5.4.4过梁
填充墙上的门窗过梁和筒体墙上门洞过梁按下图配筋,过梁用CXX细石混凝土浇筑,过梁位置及梁底标高根据建筑平面图和门窗大样确定。过梁两端伸入墙中250mm,当洞口侧边与结构墙、柱距离小于过梁支撑长度时,应在墙、柱相应位置植筋连接,植筋深度满足15d。门窗及设备孔洞洞顶距钢筋混凝土梁底间距小于过梁高时,则改在钢筋混凝土梁下直接挂板,改用下挂板代替过梁。 过梁的配筋及尺寸见下图:
5.4.5门窗洞口
当门窗洞口宽度<2.1m时,洞边应设抱框,锚入门洞口过梁即可;抱框截面100×墙厚,纵向钢筋XC12,箍筋A6.5@250,马牙槎按皮数先退后进,错缝60mm。抱框主筋下端在楼板结构内的植筋深度按120mm植筋深度考虑,但在不大于120mm厚楼板处按100mm深度进行植筋,抱框主筋上端向与门洞口同高的水平系梁内弯折锚入200mm(详见5-2-3门洞口宽度小于2.1m做法)。
抱框位于墙体中部附近时也可将该部位的通高构造柱兼做抱框(另一侧抱框上端只需弯折锚入水平系梁内)。
当门窗洞口宽度≥2.1m时,洞口边应设构造柱,构造柱要到板底或梁底,配筋同构造柱配筋。详见图5-2-4 门洞口宽度≥2.1m做法)。
5.4.6墙顶做法
砌体墙与楼板梁的空隙封堵在墙体砌筑完成之后14d后才能开始封堵,封堵方法如下:
砌筑顶皮砌块或斜砌、平砌收顶时相应位置留缺口灌混凝土。最顶部一皮砌块与楼板、梁空隙较大的,采用配套砌块斜砌(倾斜角度约60°)或平砌;空隙不足平砌一皮砖直至30mm以上的,采用C20细石混凝土塞实;空隙在30mm以内的,可采用砌筑砂浆塞实。根据《北京市推广、限制和禁止使用建筑材料目录(2014年版)》要求,填充墙顶部不能用实心砖收顶。
1)顶部间距为A=30mm以内时,用砌筑砂浆将缝隙塞紧补实(详见图5-2-10 后砌墙顶部间距<30mm时做法示意图)。
2)顶部间距A=30mm以上且无法平砌一皮砖时,用C20细石混凝土灌缝(详见图5-2-11后砌墙顶部间距在30mm以上且无法平砌一皮砖的做法示意图)。
3)最顶部一皮砌块与楼板、梁空隙较大的,采用配套加气块(倾斜角度约60°)或平砌(详见图5-2-12 最顶部一皮砌块与楼板、梁空隙较大的做法示意图)。(要求分包在做一个斜砌的预制混凝土块,调节斜砌的的角度,预制块的混凝土强度为C20。
5.5 植筋施工方法
本工程构造柱与梁板连接,拉结筋、过梁、圈梁与墙柱连接均采用植筋技术。主要施工工具有:电锤、钻头、刷子、量具(专用量杯)等。
1)植筋主要技术要求
钢筋表面直径与钻孔直径
|
钢 筋 直 径(mm) |
6 |
8 |
10 |
12 |
16 |
18 |
|
钻孔直径(mm) |
10 |
12 |
14 |
16 |
20 |
22 |
植筋深度表
|
项目 |
植筋深度(mm) |
|
拉结筋 |
100 |
|
构造柱 |
在板中植深80,在梁中植深15d |
|
圈梁、过梁 |
15d |
2)工艺流程
3)植筋施工
(1)钻孔
根据设计要求,在基材(如混凝土墙、梁、板)中相应位置钻孔,孔径、孔深及钢筋(螺栓)直径应由专业设计人员或现场试验确定。成孔的水平偏差不得大于2mm,垂直偏差不得大于1%。
(2)清孔
用硬毛刷刷孔壁再用干净无油的压缩空气吹出灰尘,如此反复进行不少于3次。必要时可用干净棉布沾少量*酮丙**或酒精擦净孔壁。
(3)除锈
必要时,对钢筋表面进行除锈处理并用*酮丙**或酒精擦拭干净,在钢筋上标记钢筋埋深。
(4)注植筋胶
a.注射式植筋胶
当使用支装植筋胶时:打开植筋胶封盖,确认出胶口无堵塞,换上并拧紧混胶嘴,装入施胶枪;扣动胶枪把手,应将最初流出的胶液舍弃,直至流出的胶液色泽完全均匀一致。向植筋孔内注胶,每孔注胶量应略大于其理论需胶量。注意必须出胶顺畅,并保证混胶嘴达到了孔底。
b.注散装植筋胶
当使用散装植筋胶时:按推荐的配胶比例(见产品包装)准确称取WSB-ZD植筋胶A、B两组分并搅拌至色泽完全均匀一致。 采用适当的方法向植筋孔内从孔底逐步向孔口填胶,每孔注胶量应略大于其理论需胶量。填胶方法可采用胶枪法如软胶枪加PVC管、黄油枪加金属延长管等,更为简单的操作也可采用PVC管活塞推进法:选取一适当长度、与植筋孔直径相应的PVC管,沿管纵向切除一小部分以便将胶刮入PVC管,制作 一简易活塞将刮入PVC管内的胶推至植筋孔底。
(5)植筋
将钢筋旋转插入至孔底(达到钢筋埋深标记),保证孔口溢胶并注意防止漏胶。胶层是否饱满,将直接影响锚固力的大小。
(6)凝固
根据植筋胶说明书上标明的时间,凝胶后于室温固化1~3天,在固化过程中避免扰动。
4)检查、验收
外观检查注胶是否饱满、固化是否正常。填充墙与承重墙、柱、梁的连接钢筋,当采用化学植筋的连接方式时,应进行实体检测。锚固钢筋拉拔试验的轴向受拉非破坏承载力检验值应为6.0Kn。抽检钢筋在检验值作用下应基材无裂缝、钢筋无滑移宏观裂损现象;持荷2min期间荷载值降低不大于5%。合格后方可进行下一道工序的施工(如浇筑新的混凝土)。
5)植筋注意事项
使用支装胶时,整支胶的挤胶过程应尽可能保证均匀、连续,避免中间停顿;无论采用何种施工方法,都必须从孔底逐步向孔口填胶,仅将胶刮涂在钢筋上或只在孔口涂胶的操作方法,将无法保证孔内空气排出并导致胶层缺失、锚固力下降。
5.6 模板工程
5.6.1构造柱、水平梁施工时,其表面应缩进墙面10㎜,以便后续抹灰找平。立模前,应将构造柱与混凝土交接面上的灰屑用毛刷清理干净后再立模,浇捣前要检查是否已清理干净,并适当浇水湿润。
5.6.2构造柱、混凝土带(圈梁)、过梁模板采用15mm厚胶合板,主龙骨采用50×100mm木方,构造柱、抱框立柱采用φ48钢管加固,起步钢管距地150mm,钢管主龙骨间距1m范围内为400mm,1m以上为600mm,采用φ14对拉螺栓应从构造柱中穿过,不允许从墙体灰缝拉结固定,拆除模板之后用砂浆将螺栓孔进行封堵。混凝土带(圈梁)、过梁模板上口采用定型倒U口支架加固。为保证模板整体位置正确、不扭曲,支模前根据所弹模板线校正钢筋位置,使其不发生偏扭。门洞口过梁的支撑严禁随意拆除。
构造柱支模穿墙螺杆设置方式及构造柱顶喇叭口
5.6.3为便于浇筑和振捣混凝土,构造柱模板配制时上口作成喇叭形状。为了防止模板与砖墙接缝处漏浆,宜用双面胶条粘结。构造柱模板根部应留垃圾清扫孔。在浇灌构造柱混凝土前,必须向柱内砌体和模板浇水润湿,并将模板内的落地灰清除干净,先注入适量水泥砂浆,再浇灌混凝土。振捣时,振捣器应避免触碰砖墙,严禁通过砖墙传振。
5.6.4加气块的模板支设高度:构造柱第一次要支设到过梁、水平系梁的上口位置,若层高较高时,门洞口上方还有水平系梁,二次支设至水平系梁上口位置,分段浇筑混凝土,模板支设到板底或梁底时必须设置喇叭口,不得对该位置进行后期的补填混凝土,对于突出的喇叭口的混凝土,待达到混凝土强度后进行凿毛处理,剔凿到与墙体面平即可。
5.6.5在逐层安装模板之前,必须根据构造柱轴线校正竖向钢筋位置和垂直度。箍筋间距应准确,并分别与构造柱的竖筋和圈梁的纵筋相垂直,绑扎牢靠。
5.6.6支模时还应注意在构造柱的底部(圈梁面上)应留出2皮砖高的孔洞,以便清理模板内的杂物,清除后封闭。
5.6.7拆模时如果模板与混凝土墙面吸附或粘结不能离开时,可用撬棍撬动模板下口,不得在墙上口撬模板。
5.7 混凝土工程
5.7.1加气混凝土砌块构造柱、混凝土带(圈梁)、过梁、地垄墙混凝土浇筑强度等级均为C20,全部为商品混凝土。
5.7.2混凝土浇筑前,必须将马牙槎部位和模板浇水湿润,并将模板内的舌头灰、残块、砖渣等杂物清理干净,新老混凝土接槎处,须先剔凿成毛面,再用水冲洗、湿润,再铺50mm厚的水泥砂浆(用原混凝土配合比去掉石子。应将构造柱根处杂物清理干净,并用压力水冲洗,并在接合面处注入适量与构造柱、抱框立柱混凝土相同的减石子水泥砂浆,方可浇筑混凝土。
5.7.3浇筑混凝土前对该部位的模板、钢筋、预埋管、预埋件、预留洞等进行全面细致的检查,并做好预检、隐检验收记录,办理好土建与水电等其它专业的会签手续。
5.7.4构造柱振捣时先插入式振捣棒插入柱底根部空振,再灌入混凝土,以使柱脚密实。为了避免发生离析现象,混凝土自高处倾落时,应设置串筒分层进行浇筑。并相应设置分层浇筑工具:尺杆、手把灯。
5.7.5振捣构造柱时,振捣棒要尽量靠近内墙插人;振捣圈梁时,振捣棒与混凝土面应成斜角斜向振捣。振捣构造柱时,振捣棒要尽量靠近内墙插人;振捣圈梁时,振捣棒与混凝土面应成斜角斜向振捣。
5.7.6在砌完一层墙后和浇筑该层构造柱混凝土前,应及时对已砌好的独立墙体加稳定支撑,必须在该层构造柱混凝土浇捣完毕后,才能进行上一层的施工。
5.7.7构造柱、抱框立柱、混凝土浇筑完成拆模后及时洒水进行养护,过梁、圈梁覆盖塑料薄膜养护,养护时间不少于7d。
5.7.8本工程混凝土采用商品混凝土,混凝土强度等级必须符合设计要求,并按要求做好混凝土试块。
5.7.9厨、卫、露台、空调板等位置砌筑墙在结构面上设置素混凝土导墙(位置及高度详见下表),混凝土地面及侧墙位置施工缝凿毛,不能采用木块、砖块、砂浆块做內撑,也严禁铁丝穿模。
|
区域 |
部位 |
混凝土导墙高度要求 |
备注 |
|
露台 |
四周(门口除外) |
||
|
卫生间 |
四周及管井(门口除外) |
||
|
公区管井 |
水电管井 |
||
|
外墙 |
露天外挑线条根部 |
||
|
室外楼梯的砌筑外墙根部 |
|||
|
…… |
|||
5.8钢筋工程
HPB300级钢筋末端需作180°弯钩,其圆弧弯曲直径(D)不应小于钢筋直径(d)的2.5倍。梁、柱箍筋、拉钩的平直部分须保证10d,且要求现场绑扎后手工弯成135度的弯钩仍需保证平直段10d。
拉结筋为HRB400E钢筋时,拉结筋末端不设180°弯钩
箍筋、拉钩绑扎前必需在主筋上划定位线,保证箍筋平直且间距均匀,箍筋应与受力钢筋保持垂直。
拉筋按照1:6的弯折穿构造柱主筋内铺设;
构造柱纵向钢筋搭接长度范围内的箍筋间距不大于200mm且不少于4根箍筋。
构造柱、水平系梁最外层钢筋的保护层厚度不应小于20mm;灰缝中拉结钢筋外露砂浆保护层的厚度不应小于15mm。
墙体拉结筋采用搭接连接时,搭接长度为55d且不小于400mm。
构造柱、水平系梁纵向钢筋采用绑扎搭接时,全部纵向钢筋可在同一连接区段搭接,钢筋搭接长度为50d。搭接区域不得少于4根箍筋且间距不得大于200mm。
5.9机电预留预埋
5.9.1砌筑墙体时严格按照机电专业提供的《二次结构机电预留洞平面图》进行预留,图上所示尺寸已包含50mm~100mm机电安装空间,图上标注的预留洞必须前期预留不得后期剔凿,对于图上未标注预留的管线,后期采用机械切割,不得用手工剔凿。
5.9.2穿越隔墙处管线安装后,混凝土墙预留洞。并在此范围应增贴一层250mm宽钢丝网,防止开裂。竖向管井应待立管安装后再砌筑,砌筑时内表面边砌边抹抹面砂浆DP M10,同时按规范要求进行防火封堵。
5.9.3各层机房墙体均应留有一面有门的隔墙后砌,待设备进入机房后再封闭。
5.9.4对于穿墙体小于100mm的洞口 ;严禁剔凿,要求采用水钻进行打孔,然后用机电的麻绳进行封堵。(做法详见下图)。

5.9.5设计要求的洞口、沟槽、管道应于砌筑时正确留出或预埋,未经设计同意,不得打凿墙体和在墙体上开凿水平沟槽。
5.9.6轻集料混凝土空心砌块施工时,采取机电管线先行施工的方法。单根管线排砖按穿墙孔洞的原则进行排砖。如机电管线集中线处,凡跨越一块完整轻集料混凝土空心砌块采用现浇混凝土进行封堵。
5.9.7对于涉及到卫生间等墙面需要在墙体上固定机电设备时,为轻集料混凝土砌块时,根据机电的固定位置采用U型砌块填充C20混凝土。
5.9.8与房间吊顶、楼板等连通孔洞处,用与隔墙相同的砌块材料进行封堵,再用防火枕将周围空隙紧密填实,空隙较小直接用防火枕封堵。
5.9.9对于安装在隔墙上的消火栓等箱体在安装后,抹灰前需要在箱体后挂网抹灰。
5.9.10隔墙上≥300mm的洞口上增加过梁,过梁根据墙体位置进行预制或现浇,高度根据机电管线图确定。
5.10电梯井砌筑原则
要求电梯井道内平。
5.11操作架搭设
5.11.1对于高度小(等)于6m的墙体采用预制门式脚手架操作平台,由分包单位自行购进。门式脚手架如下:

移动脚手架在结构柱附近时应设置两道抱柱箍,不能抱柱位置设置临时抛撑两道,抛撑采用6m钢管,不得搭接或对接。抱柱箍及抛撑节点如下图:

移动门式脚手架抱柱做法节点

5.11.2高度大于6m且不超过10m的墙体搭设双排钢管脚手架作为操作平台,操作架立杆横距1m,纵距1.5m,横杆步距1.8m;操作面满铺脚手板,同时每三步满布一道水平兜网。
双排脚手架外侧每隔6m由底至顶设置竖向连续剪刀撑,剪刀撑宽度6m,与地面夹角50°。
脚手架在结构柱附近时应设置抱柱箍(竖向每三步设置一道,不少于两道,顶部加设一道),其它部位设置临时抛撑,抛撑采用6m钢管,水平间距6m,与地面夹角60°,不得搭接或对接。脚手架搭设详图如下图:

6 质量控制
6.1 允许偏差和检查方法
表6-1 加气块填充墙砌体尺寸、位置的允许偏差及检验方法
|
项次 |
项目 |
允许偏差(mm) (国家标准) |
允许偏差(mm) (XXX杯标准) |
检验方法 |
|
|
1 |
轴线位移 |
10 |
10 |
用尺检查 |
|
|
2 |
垂直度(每层) |
5 |
5 |
用2m托线板或吊线、尺检查 |
|
|
3 |
表面平整度 |
8 |
5 |
用2m靠尺和塞尺检查 |
|
|
4 |
门窗洞口高、宽(后塞口) |
±10 |
±5 |
拉线、用尺检查 |
|
|
5 |
外墙上、下窗口偏移 |
20 |
10 |
拉线、用尺检查 |
|
|
6 |
水平灰缝平直度 |
10 |
7 |
拉线、用尺检查 |
|
|
7 |
灰缝厚度(5皮累计) |
水平 |
±10 |
±7 |
用尺检查 |
|
垂直 |
±15 |
±10 |
|||
6.2 质量控制要点
6.2.1 砌筑墙体应与主体结构可靠连接,连接构造符合设计要求,未经设计同意,不得随意改变连接构造方法。每一填充墙与柱的拉结筋的位置超过一皮块体高度的数量不得多于一处。
抽检数量:每检验批抽查不应少于5处。(砌筑工程的实体检验批按楼层进行划分)
检验方法:观察检查。
6.2.2 填充墙留置的拉结钢筋的位置应于块体皮数相符合。拉结钢筋应置于灰缝中,应被灰缝砂浆包裹严密,埋置长度应符合设计要求,竖向位置偏差不应超过一皮高度。
抽检数量:每检验批抽查不应少于5处。
检验方法:观察和用尺量检查。
6.2.3 砌筑填充墙时应错缝搭砌,砌块搭砌长度不应小于砌块长度的1/3,且不应小于150mm。
抽检数量:每检验批抽查不应少于5处。
检验方法:观察检查。
6.2.4 填充墙的水平灰缝厚度和竖向灰缝厚度应正确。
抽检数量:每检验批抽查不应少于5处。
检验方法:用尺量5皮砌块的总尺寸累计折算。
6.2.5宽度超过300mm的洞口上部,应设置钢筋混凝土过梁。不应在截面边长小于500mm的承重墙体、独立柱内埋设管线。
6.2.6 砌体施工时,楼面堆载不得超过楼板的允许荷载值。当施工层进料口处施工荷载较大时,楼板下应采取临时支撑措施。
6.2.7 正常施工条件下,砌块每日砌筑高度应控制在1.5m或一步脚手架高度内。
6.2.8 在墙体砌筑过程中,当砌筑砂浆初凝后,块体被撞动或需移动时,应将砂浆清除后再铺浆砌筑。
6.2.9 砌体表面的平整度、垂直度校正必须在砂浆终凝前进行。
6.3 质量通病防治
6.3.1 防止砖缝砂浆不饱满,砂浆与砖粘接不良。
(1)控制砂浆使用时间。
(2)砌筑采用一块砖、一铲灰、一揉挤的“三一”砌筑法。
6.3.2 砌体错缝及偏差大
(1)砌墙前应先测定所砌部位基面标高误差,通过调整灰缝厚度,调整墙体标高。
(2)砌筑时应注意灰缝均匀,标高误差应分配在一步架的各层砖缝中,逐层调整。
(3)挂线两端应呼应,注意同一条水平线所砌砖的层数是否与皮数杆上的砖层数正好相符。应严格按皮数杆控制标高,掌握铺灰厚度。
(4)在墙体一步架砌完前,应进行抄平弹500mm线,用500mm线向上引尺检查标高误差,墙体基面的标高误差应在一步架内调整完毕。
6.3.3 防止砌体钢筋遗漏和锈蚀
(1)砌体中钢筋与混凝土中的钢筋一样,都属于隐蔽工程项目,应加强检查,并填写检查记录存档。
(2)为了确保砌块缝中钢筋保护层的质量,拉接筋放置前,底面砖层的纵横竖缝应用砂浆填实,以增强砌体强度,同时也能防止铺灰砌筑时,砂浆掉入竖缝中而出现漏筋现象。
6.4 停止点报验要求
砌筑工程主要涉及质量停止点两项。施工进度到达停止点前,由项目部技术、质检部门牵头向公司提前进行报验。
6.4.1 墙、顶抹灰前
验收内容:墙面基层清理干净、浇水湿润程度,门窗框安装正确,砼蜂窝、麻面、涨模处理,与混凝土交界面挂网、机电管线、接线盒、电箱是否安装牢固,脚手架调整到位,穿墙眼封堵。
6.4.2 砌筑装修样板间完成后
验收内容:基层到面层的所有工序内容。
6.5 实测实量要求
“实测实量”是对施工质量的过程的把关,是确保工程质量,提升品质的关键环节,通过实测实量的工作及时有效开展,能够及早的发现施工过程中存在的质量问题,达到及时纠正的目的。测量验收工作必须及时跟上实际施工进度。本工程实测实量覆盖率应达到100%。实测实量应依据施工质量验收规范规定的各分部分项工程检验批质量验收记录要求内容进行实测实量。实测实量数据记录应真实有效。
表6-2 砌筑工程实测实量检查表
|
实测实量检查表 |
||||||
|
项目名称: 检查部位: 日期: |
||||||
|
检查项 |
内容 |
评判标准 |
检测区 |
检测点A |
合格点B |
得分 |
|
砌体工程 |
表面平整度 |
BM砌块(0,4)mm、陶粒、加气块(0,8)mm |
3 |
9 |
B/A×100 |
|
|
立面垂直度 |
BM砌块(0,4)mm、陶粒、加气块(0,5)mm |
3 |
9 |
B/A×100 |
||
|
方正度 |
(0,10)mm |
3 |
9 |
B/A×100 |
||
|
门窗洞口 |
(-5,10)mm |
3 |
12 |
B/A×100 |
||
6.5.1 砌筑工程实测实量-表面平整度
合格标准:5mm
测量方法和数据记录:
(1)每一面墙都可以作为1个实测区,优先选用有门窗、过道洞口的墙面。测量部位正手墙。
(2)当墙面长度小于3米,各墙面顶部和根部4个角中,任取2个角。按45度角斜放靠尺分别测量2次。
(3)当墙面长度大于3米时,还需在墙长度中间位置增加1次水平测量,3次测量值均作为判断该实测指标合格率的3个计算点。
(4)墙面有门窗、过道洞口的,在各洞口45°斜交叉各测一次。
备注:上到顶砖,下到实心砖或下坎,顶砖和下坎因为材料模数等原因,与墙面砌筑材料有差异。优先选择带洞口墙面。测量正手墙,做好标记。

图6-1-1 砌筑工程实测实量做法-表面平整度
6.5.2 砌筑工程实测实量-垂直度
合格标准:5mm
测量方法和数据记录:
(1)每一面墙都可以作为1个实测区,优先选用有门窗、过道洞口的墙面。
(2)实测值主要反映砌体墙体垂直度,应避开墙顶梁、墙底灰砂砖或砼反坎、墙体斜顶砖,消除其测量值的影响,如两米靠尺过高不易定位,可采用1米靠尺。
(3)当墙长度小于3米时,同一面墙距两侧阴阳角30cm位置,分别按以下原则实测2次:一是靠尺顶端接触到上部砌体位置时测1次垂直度,二是靠尺底端距离下部地面位置30cm时测1次垂直度。
(4)当墙长度大于3米时,增加在墙长度中间位置靠尺基本在高度方向居中时测1次垂直度。
备注:上到顶砖,下到实心砖或下坎,测正手墙。
图6-1-2 砌筑工程实测实量做法-垂直度
6.5.3 砌筑工程实测实量-方正度
合格标准:同一房间内同一垂直面的砌体墙面与房间方正度控制线之间距离的极差,5mm
测量方法和数据记录:
(1)砌筑前距墙体30~60cm范围内弹出方正度控制线,并做明显标识和保护。
(2)同一面墙作为1个实测区。
(3)在同一测区内,实测前需用5米卷尺或激光扫平仪对弹出的两条方正度控制线进行校核,无误后采用激光扫平仪打出十字线或吊线方式,沿墙长度方向分别测量3个位置(两端和中间)与控制线之间的距离。选取3个实测值之间的极差,作为判断该实测指标合格率的1个计算点。
备注:砌筑一定要有方正线,不能抽查时按墙现找线。

图6-1-3 砌筑工程实测适量做法-方正度
6.5.4 砌筑工程实测实量-外门窗洞口尺寸偏差
合格标准:(-5,10)mm
测量方法和数据记录:对于平外墙面的门窗洞口:同一外门或外窗洞口均可作为1个实测区。测量时不包括抹灰收口厚度,以砌体边对边,各测量2次门窗洞口宽度及高度净尺寸(对于落地外门窗,在未做水泥砂浆地面时,高度可不测),取高度或宽度的2个实测值与设计值间的偏差最大值。
备注:复核洞口模板尺寸

图6-1-4 砌筑工程实测实量做法-外门窗洞口尺寸偏差
6.6 砌筑工程试验内容
6.6.1 材料试验
(1)加气块
砌块所用的型号、强度等级、龄期,应符合设计要求。每10000块为一验收批,不足10000块也按一批计,有见证抽样数量一组,进行材料复验。
(2)砌筑砂浆
砌筑砂浆的抗压强度、保水率、拉伸粘结强度应符合设计要求。砌筑砂浆材料每100t为一验收批,不足100t的也按一批计,有见证取样数量一组,对抗压强度进行材料见证复验。
(3)钢筋
本工程钢筋均场外加工。每批钢筋原材进入加工厂后,钢筋加工厂必须审查钢材厂家提供的材质报告、原材出厂合格证、钢筋原材有见证取样报告,在钢筋加工厂经过外观、力学试验复检合格并申报监理认可后方可开始加工。钢筋进入加工厂时,同一厂别、同一炉罐号、同一规格、同一交货状态,每60t为一验收批,不足60t也按一批计。检验内容如下:
①外观检查:每批钢筋按100%见证取样进行检查,钢筋表面不得有裂纹,结疤和折叠,表面凸块不得超过横肋高度,每1m的弯曲度不大于4mm。钢筋按实际重量交货时随机抽取10根(长6m)称重,其重量偏差不得超过允许偏差。每批钢筋进场时及时进行外观验收,表面生有老锈的为外观不合格,不得用于本工程,表面生有水锈的,可除锈后进行使用。
②力学试验、重量偏差、最大力下总伸长率复检:按《北京市建设工程见证取样和送检管理规定(试行)》的规定,涉及结构安全的试块、试件和材料应100%实行见证取样和送检。每一验收批取一组试件(4个),取样时在该批钢筋中任意抽取,取样部位为在每根钢筋距端头1米以外,采用砂轮切割机切取,2个试件进行拉伸试验(包括屈服点、抗拉强度和伸长率),2个试件进行弯曲试验。加工成型钢筋进入施工现场时,钢筋加工厂应向现场项目部提供材质报告、原材出厂合格证、钢筋原材见证取样报告、钢筋加工出厂合格证。
③按照《建设工程检测试验管理规程》(DB11/T386-2006),依据规程5.0.12中规定,施工过程中出现试验结果不合格或不符合要求时,应在试样(件)委托台账中注明处理意见,不得删除台账中相应内容,试样(件)委托台账应作为施工技术资料存档。
(4)植筋胶
本工程所选用植筋胶为*级A**。植筋选用的植筋胶应有检验报告、胶粘剂中有害物质检测报告、产品合格证等资料,植筋胶进场后进行监理有见证取样复试,本工程一次性取样一桶,对植筋胶与混凝土正拉粘结性能进行复试。
6.6.2现场试验
(1)砂浆强度
制作砌筑砂浆试块进行抗压强度检验,对应不超过250m3砌块砌筑工程量的各类、各强度等级的普通砌筑砂浆为一验收批,每台搅拌机至少抽检一次。在筒仓出料口有见证随机取样制作1组砂浆试块,标养28d后做强度试验,冬期施工还应增加一组同条件养护试块。预拌砂浆的砂浆稠度应在进场时取样检验。本工程确定每层留一组砂浆试块。
同一验收批砂浆试块强度平均值应大于或等于设计强度等级值的1.10倍。砂浆强度应以养护28d龄期的试块抗压强度为准,制作砂浆试块的砂浆稠度应与配合比设计一致。同一验收批砂浆试块抗压强度的最小一组平均值应大于或等于设计强度等级值的85%。
(2)混凝土强度
除预拌混凝土搅拌站内按规定留置试块外,混凝土运到现场后,还应根据《混凝土结构工程施工质量验收规范》(GB50204-2002)(2011年版)规定有见证取样制作试块:混凝土应在现场按检验批每100m3取样制作一组标养试块,不足100m3也按一组制作。
(3)植筋拉拔强度
本工程植筋以A6.5、C10、C 12为主。现场植筋拉拔试验的检验批抽检的最小容量分以下两种情况取值:
①拉结筋A6.5抽检的最小容量应按下表取值,拉拔力按6KN取值:
表6-3 检验批抽检锚固钢筋样板最小容量
按《GB50924-2014 砌体结构工程施工规范》抽取
|
检验批的容量 |
样板最小容量 |
检验批的容量 |
样板最小容量 |
|
≤90 |
5 |
281~500 |
20 |
|
91~150 |
8 |
50~1200 |
32 |
|
5151~280 |
13 |
1201~3200 |
50 |
②构造柱及水平系梁植筋C 10、C 12抽检的最小容量取值应符合下列规定:应取每一检验批锚固件总数的0.1%且不少于3件进行检验,C10钢筋拉拔力按28KN取值,C12钢筋拉拔力按41KN取值。
表6-3 本工程植筋头个数统计及拉拔数量表
按《JGJ145-2013 混凝土结构后锚固技术规程》抽取
|
部位 |
A6.5 |
C 10 |
C 12 |
|
总计 |
|||
|
抽样数量 |
|||
|
抽样部位及原则 |
说明:此量仅为初步统计,最终植筋头个数以现场实际植筋个数为准
6.6.3砌筑工程试验计划
表6-4 试验计划统计表
|
分类 |
编号 |
试验内容 |
工程量 |
验收批 |
试验次数 |
复试项 |
|
材料试验 |
1 |
砌块 |
≤1万块 |
根据砌块进场次数分批进行,计划每两层取样一次 |
干密度、强度级别、干燥收缩、抗冻性、导热系数 |
|
|
2 |
砌筑砂浆(材料) |
≤100t |
根据砂浆进场次数分批进行,计划每两层取样一次 |
保水率、抗压强度、抗剪粘结强度 |
||
|
3 |
钢筋 |
A6.5 |
≤60t |
1次 |
拉伸试验(下屈服点、抗拉强度、伸长率、最大力总伸长率(牌号带E的钢筋))、弯曲试验、重量偏差 |
|
|
C 10 |
≤60t |
1次 |
||||
|
C 12 |
≤60t |
1次 |
||||
|
…… |
||||||
|
4 |
植筋胶 |
1次 |
||||
|
现场试验 |
5 |
砌筑砂浆试块抗压强度 |
≤250 m3 |
4次 |
抗压强度 |
|
|
4次 |
||||||
|
6 |
混凝土试块抗压强度 |
≤100 m3 |
16次 |
抗压强度 |
||
|
7 |
植筋拉拔试验 |
见表6-3 |
拉拔力 |
|||
说明:此量仅为初步统计,最终试验数量以现场实际为准
7 冬期施工
根据工期安排,XXXX年冬施期间有砌筑工程,需执行冬季施工措施。
7.1 预拌砂浆及预拌混凝土的配比参数、使用方法、用量等技术要求,由厂商提前提供预拌砂浆、混凝土配比等资料,项目审查合格后报监理单位审查,合格后方可使用。
7.2 冬施期间预拌砂浆采用成品防冻砂浆,由厂商提前提供相应资料,项目审查合格后报监理单位审查,合格后方可使用。
7.3 冬期应将砂浆搅拌台封闭严密,做好保温及加热工作。运送砂浆的车子、盛砂浆的灰槽应有保温措施,运输过程中小推车用阻燃稻草被进行包裹,防止材料温度下降过快。每日工作完后须用热水清洗,以免冻结。
7.4 拌好的浆料中无生团、成厚糊状,静停5分钟让其充分熟化后再次拌匀即可使用。拌制好的砂浆在2~3小时内用完,拌制好的砂浆不许再次加水拌和使用,严禁将硬化后的砂浆重新拌和使用。
7.5 砌筑前要清除砌块表面的污物及冰霜雪等,遇水浸泡后受冻的砌块不得使用。施工时,不可浇水湿润块材。每天收工前,将垂直灰缝填满,上面不铺灰浆,水平灰缝必须及时刮掉,同时用阻燃保温被将砌体上表面加以覆盖。第二天上班时,应先将表面清理干净,然后再继续砌筑,砌筑时砂浆温度不应低于5℃。在解冻期应对砌体进行观察和检查,当发现裂缝、垂直度变化、不均匀下沉等情况时,要分析原因,并立即采取措施,消除或减弱其影响。
7.6 砂浆试块的留置,除应按常温规定要求外,尚应增设不少于两组与砌体同条件养护的试块,分别用于检验各龄期强度和转入常温28天的砂浆强度,待转入正温28天后再试压,以检测砂浆的受压情况。冬季进行砌筑施工,按照冬施要求留置二次结构冬施混凝土的同转标试块。
7.7 在进行地下室各层砌筑前,为保证楼层内温度,采用塑料布、棉帘子等将车道连通门口等外围门窗洞口封闭好,施工洞口、运料口及楼梯间等处封闭保温,尽量为湿作业提供有利的作业条件。
7.8 冬施砌筑施工时间应尽量选择在每天10:00~16:00之间,阴雨雪天气、寒流天气停止施工。冬期施工砌筑工程应加强质量控制,在施工日志中除按常规要求外,尚应记录室外气温、砌筑砂浆温度、外加剂掺量以及其他相关资料。
7.9冬施期间植筋胶应在植筋时周围采取保暖措施,采用温水进行保暖,防止植筋胶受冻。植筋后及时对植筋孔位置进行保温覆盖。
8 砌筑工程成品保护要求
砌筑墙体内的拉接筋、各种预埋件、给排水、暖卫、电气等管线均应注意保护,不得任意拆改或损坏。
砌筑施工应及时清除落地杂物及垃圾。砂浆稠度应适宜,砌墙时应防止砂浆溅脏墙面。砌筑施工应及时清除落地砂浆,做到工完场清。
塔吊吊运材料、室内倒运材料、拆除施工架时,注意保护墙体及门窗口边角。
安装埋件时,宜用电钻钻孔扩孔,用扁铲扩方孔,不得对隔墙用力敲击。对刮完腻子的隔墙,不应进行任何剔凿。
专业埋件切割必须待砌体墙面达到强度(砌筑施工10天后)方可进行。
严防运输小车碰撞隔墙板及门口。
材料堆放必须平整,砌块堆放需立放且码放高度不得高于2m,运输时严禁碰撞。
不准站在未完成砌筑的墙上做划线、清扫墙面等工作。
9 砌筑工程绿色安全文明施工要求
砌块在运输装卸过程中,严禁倾倒和抛掷,进场后要分类堆放整齐,堆置高度不宜超过2m。砌筑高度超过1.2m时,需在脚手架上进行,脚手架上堆砖不得超过两层。
严禁用抛掷方法传递砖等材料,如用人工传递时,要稳递稳接,上下操作人员站立位置要错开。不准站在墙上做划线、清扫墙面等工作。砌筑使用的工具、材料应放在稳当的地方,工作完毕应将脚手板和砖墙上的碎砖、灰浆等清扫干净,防止掉落伤人。
在砌块砌体上,不宜吊挂重物,也不宜作为其它施工设施、支撑的支承点,如果确实需要时,须采取有效的构造措施。
施工人员不得酒后作业,以防安全事故的发生,施工期间,必须按要求佩带劳动保护用品,同时戴好安全帽,高空作业系好安全带。作业层及操作面上,必须设置安全防护设施。
砌块切割作业,应设置防护措施,防止砌块粉尘到处飞扬,同时作业人员应佩戴口罩,以防粉尘进入人体。
施工前必须检查所有机械设备的性能,是否安全、可靠。
每天下班前将当天施工的操作面清理干净,做到工完场清。
施工作业面应适当洒水湿润,最大限度地减少粉尘污染。
现场施工产生的废料,不得随意弃置,必须集中收集后统一清理。在基础施工阶段及地上施工阶段楼层较低时,由工人通过马道运出施工现场;地上施工阶段楼层较高、施工外用电梯安装完毕后,必须通过施工外用电梯将砌筑施工产生的废料集中清理运出,严禁从高空直接向下抛掷杂物或垃圾。
当使用植筋胶时,如不慎溅入眼中要立即用清水冲洗或到医院进行救治。施工场所要注意通风,少数人使用植筋胶时会有过敏反应,应采取佩戴橡胶手套等安全防护措施。使用完后的植筋胶应妥善处理,注意环境保护。
移动筒仓搅拌机搅拌时,应在搅拌机旁设置临时沉淀池,砂浆搅拌机排放的废水要排入沉淀池内,经二次沉淀后,可回收用于洒水降尘或再次用于搅拌用水。未经处理的泥浆水,严禁直接排入城市排水设施。
移动筒仓作业范围内派专人进行打扫,防止散落到地面的砂浆扬尘。筒仓上排气孔处设置防尘罩,以防止在送料时产生大量扬尘。
10 移动筒仓安全使用规程
移动筒仓必须安装在按要求施工的基础上,并经验收后方可使用。雨后由工程部门及安全部门对基础进行复查,在日常检查中,发现基础出现裂缝及破损现象,应立即停止使用,待修复完成后,再进行使用。
使用前应对移动筒仓全面检查(主要查看送灰管道、溢流管道及排气孔等是否通畅)后方可使用
移动筒仓溢流管及排气孔必须保持畅通,所有孔径不得缩小,防止堵塞。每次泵干混砂浆前,必须查看是否堵塞,如堵塞须及时清理后方可使用。
在使用储罐期间应设专人管理维护,确保罐体安装连接牢固可靠,出气口、溢流口畅通。
砂浆移动筒仓操作人员必须设专人,必须经厂家培训合格后方可上岗操作,严禁非操作人员擅自操作。
泵送干混砂浆时必须有专人监管。
砂浆移动筒仓非压力容器,严禁超压、超时泵送。罐车送料时应随时观察泵车压力表、溢流管及排气孔情况,当发现溢流管、排气孔溢流冒灰或泵车压力表压力升高时,必须立即停止送料,以免发生危险。
如出料有计量要求时,储罐放料最低位不得低于锥体上部,判断料位可采用敲击法。
散装移动筒仓顶部应设警示标志。
11 砌筑工程质量通病防治
砌筑工程质量通病防治措施见下表所述。
砌筑工程质量通病防治
|
序号 |
通病项目 |
原因分析 |
具体防治措施 |
|
1 |
墙身轴线位移 |
在砌筑操作过程中,没有检查校核砌体的轴线与边线的关系,以及挂准线过长而未能达到平直通光一致的要求。 |
在砌筑操作过程中,严格检查校核砌体的轴线与边线的关系,按一定距离挂准线。 |
|
2 |
水平灰缝厚薄不均 |
在立皮数杆(或框架柱上面水平线)标高不一致,砌砖盘角的时候每道灰缝控制不均匀,砌筑准线没拉紧。 |
在立皮数杆标高必须保持一致,严格控制砌砖盘角的每道灰缝均匀,砌筑准线要拉紧。 |
|
3 |
同一砌筑层的标高相差较大 |
砌筑前由于基础顶面或楼板面标高偏差大而没有找平理顺,皮数杆不能与砖层吻合;在砌筑时,没有按皮数杆控制砖的皮数。 |
砌筑前将基础顶面或楼板面标高偏差大的部位用砂浆找平理顺,使皮数杆与砖层吻合;在砌筑时,严格按皮数杆控制砖的皮数。 |
|
4 |
构造柱未按规范砌筑 |
构造柱两侧墙没砌成马牙槎,没有从柱脚开始先退后进,落入构造柱内的杂物没清理干净。 |
构造柱两侧墙严格按设计规范和图纸砌成马牙槎,并且从柱脚开始先退后进,落入构造柱杂物要清理干净。 |
|
5 |
砂浆粘结不牢 |
砌筑砂浆没有按照配合比拌制,强度达不到设计要求,或砌块过于干燥,砌筑前没有洒水湿润。 |
砌筑砂浆按照配合比拌制,保证强度达到设计要求,砌筑前必须浇洒水湿润。 |
|
6 |
砌体不稳定 |
L型铁件没按设计规定位置埋设,墙顶与梁、底板连接不好。 |
L型铁件严格按设计规定位置埋设。 |
12 附图1:

附图2:

附图3:
