
导语:在房价越来越高的洛阳,买房成了大家心头的痛,很多人根本买不起,或者买的房子越来越小;其实房子的面积并不代表生活的好坏,关键在于你怎么去赋予它意义,小爱今天带大家到一位洛阳设计师的家里做客,虽然它的面积不是很大,但是你会看到一个舒适、温暖、安心的家......家的介绍
小区:升龙城
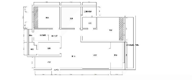
户型:三室两厅两卫
面积:119.26㎡
风格:自然风(混搭)
设计:洛阳米加室内外设计工作室
价格:软装+硬装=25万
材料:网购、代购、宜家(橱柜边柜等为现场制作)

家的故事
因为从事设计多年,屋主看过太多冷冰冰、整齐无洁的效果图,也深知这些效果图在入住之后的一个情况;所以在最开始设计新家的时候,她想要打造的就是真正意义上的家,不用刻意去保持整洁也依然美观的家,一个实用且充满人性化的家......

家的改造
1、门厅的墙体整个打掉,用木板隔出空间,让厨房和门厅的实用面积更加充裕;
2、儿童房跟阳台连接处打通,隔出学习区,增加孩子的学习空间;
3、客厅跟阳台区域打通,增加壁柜,让整个客厅空间延展性更好,也让餐桌区域更加协调;


客厅
设计最初,客厅其实是非常小的,采光也不是很好,为了让整个空间更通透,屋主把阳台改造成喝茶的地方,在餐桌旁加入壁柜,增加储物空间的同时,利用延展性,让整个客厅更宽敞。



猜你喜欢:
如果你也想要图中家具购买链接,添加小编微信(iluoyangjiaju)即可获取。
主卧
都说房子是屋主性格的缩影,因为深受小时候看的港剧情节影响,屋主骨子里多了浪漫的情结,这些情结也都体现在了新家的设计上,主卧的床、门厅的设计、橱柜、沙发,选的都是经典款式,百看不厌,也经得住时间的沉淀。


猜你喜欢:
如果你也想要图中家具、灯饰购买链接,添加小编微信(iluoyangjiaju)即可获取。
儿童房
儿童房在家具选择上依旧采用原木风,用蓝色+白色云朵点缀儿童房,呼应了房中的卡通元素,让整体变得灵动活泼起来;学习区的改造,是想让孩子在一个光线充足的学习阅读。


猜你喜欢:
如果你也想要图中家具购买链接,添加小编微信(iluoyangjiaju)即可获取。
次卧
次卧有点中式风格,非常简洁、色彩柔和清爽,营造宁静舒缓的休息空间,水墨画起到了提亮空间的作用。屋主比较注重入住之后的体验,所以家里储物的柜子比较多。


猜你喜欢:
如果你也想要图中灯具、白橡木床、老虎椅购买链接,添加小编微信(iluoyangjiaju)即可获取。
厨房+餐桌
当你以为屋主走的是北欧风的时候,你会发现厨房又变成了美式,谁说家里一定要局限于一种风格?只要你喜欢,所有的元素都可以加在一起;小爱在逛厨房的时候发现,整个设计都是非常人性化的,水槽的地方特地加高,是为了避免长时间弯腰洗菜导致腰酸背痛,操作台也尽量宽敞方便使用。



猜你喜欢:
如果你也想要图中家具购买链接,添加小编微信(iluoyangjiaju)即可获取。
浴室+洗漱台
内卫没有安装洗漱台,所以外卫采用双台盆,也是节省早上洗漱的时间,镜柜打开后是储物空间,避免台面乱糟糟的感觉。


猜你喜欢:
如果你也想要图中洁具购买链接,添加小编微信(iluoyangjiaju)即可获取。
小细节
家里很多细节都来自屋主的巧手,比如挂衣架,拉手、植物,越小的地方越能感受到屋主热爱生活的品质,比起千篇一律的设计风格,小爱更喜欢独特、有自己风格习惯的家;房子再小也是家,谁不想按照自己喜欢的方式,屋子风格度过一生呢?




