
三毛说:“心若没有栖息的地方,到哪里都是在流浪。”

欢迎大家来到设计咖第3期~今天的设计咖栏目邀请大家一起来欣赏成都壹阁设计的设计师DENNY HO给大家带来的装修设计作品——『悠长假期』。
认识他

DENNY HO,中文名何丹尼,米兰理工大学艺术设计双硕士学位,为壹阁设计创始人/外籍设计顾问,CCTV-2交换空间常驻设计师,香港室内设计师协会荣誉会员,作品常被收录在人民日报,中央电视台等。
房屋信息
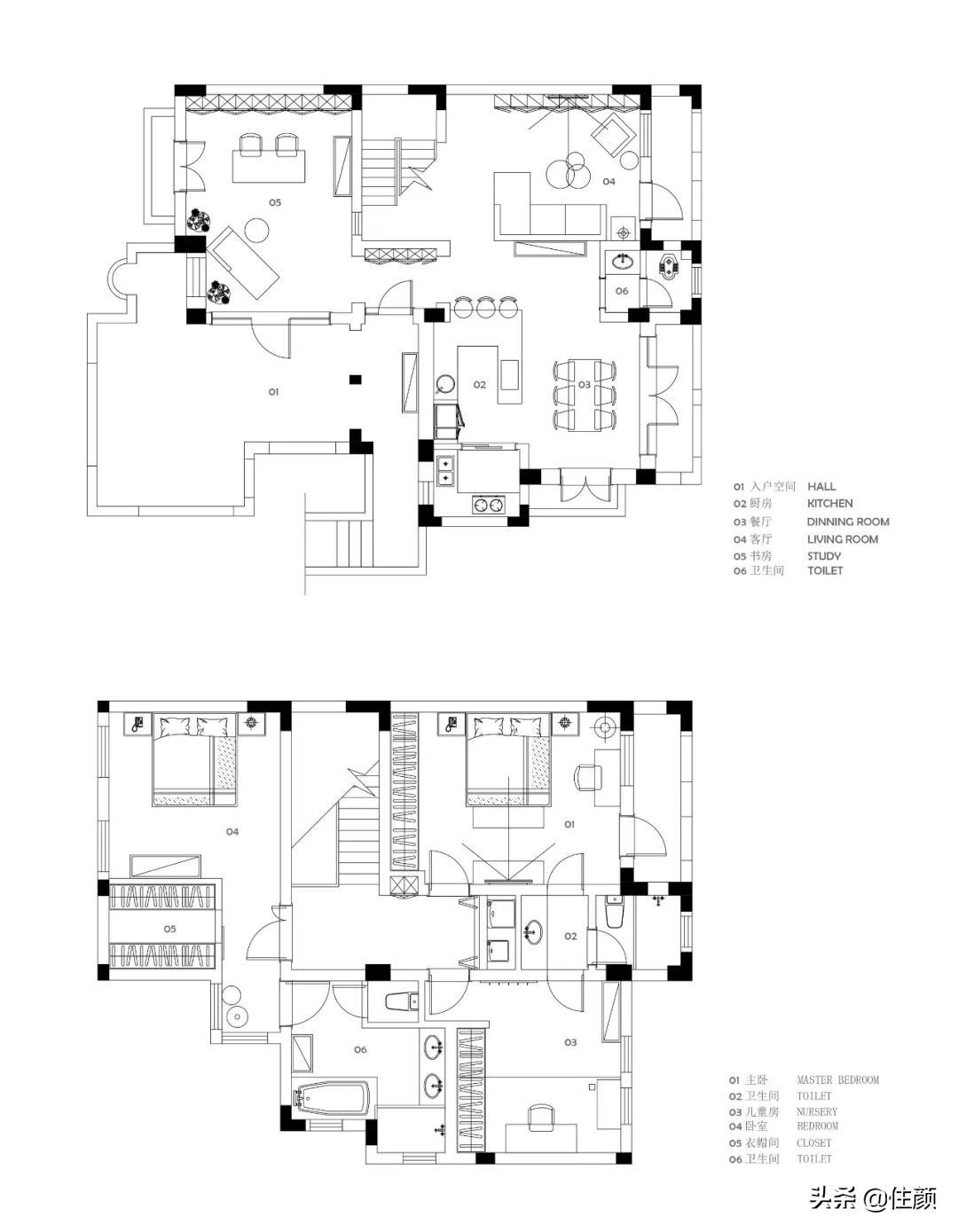
户型:叠拼两层
坐标:四川成都
项目面积:203㎡
装修花费:180W

△房屋户型图
今天这套案例的屋主是一对从事建筑相关行业的小夫妻,他们对建筑造型和内外环境设计要求极高,所以整套房子装修下来也是充满个性。
设计亮点
1.明确区分一二楼的空间功能;
2.开放式客厅、餐厅、厨房,一览无余;
3.优化了二楼两个卫生间的活动动线;
4.通过卫生间连接父母房&儿童房,方便照看。
建筑外观
圆弧窗+铁艺栏+红砖坡道,展露西班牙风情

当初屋主买下这套房,最大原因是被它的外部建筑环境所打动,它的建筑年份在2010年,由国外设计师打造,相比于国内千篇一律的浮夸欧式建筑,这种西班牙风情的造型完全符合他们的预期值。

由于房屋位于建筑的第3层,屋主回家必须要通过地下停车场,再经由邻居家2楼的外阳台,顺着斜坡才能走进自家私宅。这种在外人眼中的折腾,他们却乐在其中,笑称像是经历《盗梦空间》里游走于梦境与现实的奇妙体验。

每当结束工作,走在回家的路上,沿途的圆弧窗台、铁艺围栏、红砖坡道尽收眼底。一旦到家,推开房门,就有种身处异国酒店的放松感,这种能从忙碌的工作以及复杂的社交关系中短暂“逃离”的感觉,真好。
客厅
浅色系营造空间关系,弱化视觉冲击感

从简约的玄关步入客厅,能看到这里整体采用了浅色系,主要是用明度变化来制造空间关系,刻意弱化了视觉冲击感,这样能让人全身心沉浸在人与自然的关系中。

在米白、白灰等明亮色系打底下,除了充满设计感的家具以外,没有丝毫冗杂的装饰。家具软装部分选择了色系相同,质感不同的原木元素,弱化空间厚重感的同时,营造出舒适柔和的居住氛围。

其实整屋中最花费心思的就是家具部分,它们基本都是屋主从国外海淘再转运到国内的,像客厅的Togo沙发,是法国品牌Ligne Roset写意空间极为经典的设计作品。

客厅一角,挂着来自丹麦PWtbs品牌的planet lamp行星壁灯,这款灯采用的是交互式设计,几个圆盘由磁铁连接,可以自由移动,所以能通过改变圆盘的位置,创造出各不相同的光影效果,而旁边随意摆放着藤编筐里的绿植则给空间注入了蓬勃的生命力。

沙发边的黑色松木边几是从某宝淘来的,它由整木经过烘干制成,会自带一些烘干裂纹,这种裂纹具有不可复制的特征,因此每个作品都是独一无二的,有着原滋原味的艺术感觉。
厨房
中西厨结合,功能明确又井然有序

屋主的家庭组成是偏传统式的居家型,他们喜欢在家里下厨待客,每周都会有Family time,由于厨房和餐厅区域是家庭成员经常活动的空间,所以在设计时就非常注重功能区的划分。

作为四川家庭,爆炒什么的肯定少不了,同时他们也非常喜欢烘焙,因此中西厨功能必不可少。
在这个开放式的厨房中,你能看到中西厨区域划分明确但又整体相连,它不像传统封闭厨房,做饭会和客厅完全分隔开,而是可以在做饭时就能非常清楚地看到孩子在客厅的情况,随时都能交流。

厨房沿袭极简风,台面及墙面均采用了整岩板材质,搭配哑光白门板与原木材质侧板,再加上金属吊灯的点缀,使空间整体看起来简洁明快。

餐厅
两面落地窗,打造绝佳视野

一楼客餐厅,充分引入室外光线,拥有绝佳的开阔视野,室内装饰与外建筑景色仿佛融为一体,在自然光映照下蒙上一层轻薄光纱。

餐厅的餐桌来自某宝定制,实木面板+铁艺框架相结合,与整屋的环境非常匹配。

餐桌上方的分子吊灯,一下子就能抓住人的视线,一颗颗玻璃球在日光的照耀下显得尤为轻盈剔透。
楼梯拐角
结合内外建筑美学,展现艺术美感

从楼梯的这一隅能看向书房,为了结合内外建筑美学,这里采用了和外建筑同型的弧线窗洞,相互呼应。

看似漫不经心的角落,在经过精准的设计排布后,充分引出了视觉重心和定位了场地特质,悄然展显艺术美感。



楼梯下方的空白墙面,挂上了大幅面的素描装饰画,造型简约又独特,黑白色调带来了强烈的视觉冲击力。
书房
取材自然,营造度假氛围

书房是这个住宅的亮点之处,这里的空间属性定位就是慵懒、随意,大大的落地窗也将室外的自然风景引入室内,带来放松感。
想象一下,在这随手可及的圆边几上摆上一杯咖啡,看窗外的树在结它的种子,风在摇它的叶子,就算只是一个人躺在沙发上,懒懒地发呆不说话,也很美好。

这里搭配的家具元素去繁就简取材自然,基本是选择了一些棉麻、原木、藤编与铁艺之类的材质,虚实间营造出舒适悠闲的度假氛围。

书房的懒人沙发品牌同客厅沙发一样,也是来自LIGNE ROSET,由法国购入运回国内,价格是1W多,旁白的圆边几则是来自巷子戏法家的Marbo北欧圆形大理石茶几,到手差不多花了2K。
主卧
低饱和度色彩+人字拼木地板,回归极简

主卧起居空间的主题是回归极简原生,这里同样是用了低饱和度色彩作为基底,搭配温润的人字拼木质地板,营造了一种安稳的舒眠氛围。

整个房间的基调较浅,于是搭配了深色系的家具,空间少了几分单调,多了几分沉稳。

床头的装饰画来自某宝定制,简约的线条+原木的外框,与整体空间搭配完美契合,低调又不失品味。

临窗而放的桌椅,可以当做化妆台,也可以临时办公,这里光线充足,完全能满足日常需求。
次卧
基础家具配置,延续极简主义

次卧延续主卧极简主义,空间分寸拿捏的恰到好处。两扇推窗带来了充足的光线,将房间照得亮堂堂。

与主卧一样,次卧墙上装饰画也是来自某宝定制,年轮的画面大气而自然,下方搭配的淡蓝色床头则让空间多了一抹清新。
儿童房
兼具娱乐+睡眠,不断完善的成长空间

屋主在房屋设计装修的过程中经历了怀孕生子,所以也预留了孩子的娱乐、睡眠空间,相信随着孩子的成长,这个空间也会一直变化。

△父母房看向儿童房
每一个设计的背后都是未完待续,儿童房将是他们迎接家庭新成员的开始。孩子刚出生时,儿童房会在短期内变成保姆房,在此摆放婴儿床能就近照顾,并且父母拥有自己独立休息空间的同时,也能随时查看孩子的情况。

△儿童房细节
空间只是载体,核心是居住者。愿『悠长假期』这个居心地能够让他们内心安定,更加从容地面对未来的生活。
图片来源:壹阁设计