信义金御山居,在园山街道保安社区,城市主干道龙岗大道与城市次干道广达路交汇处西北侧,距离3号线永湖站较近,据地铁站地图测距1.2公里左右,需要一部小电驴接驳;

永湖地铁站附近有多个已选房或待选房的安居房项目,除了已经选房的卓弘星辰花园,星河盛境都荟大厦,还有龙栖华府,绿海山河逸居,园山新坡塘片区及新园路石 化一期,信义金御山居4个项目可能2023年配售;
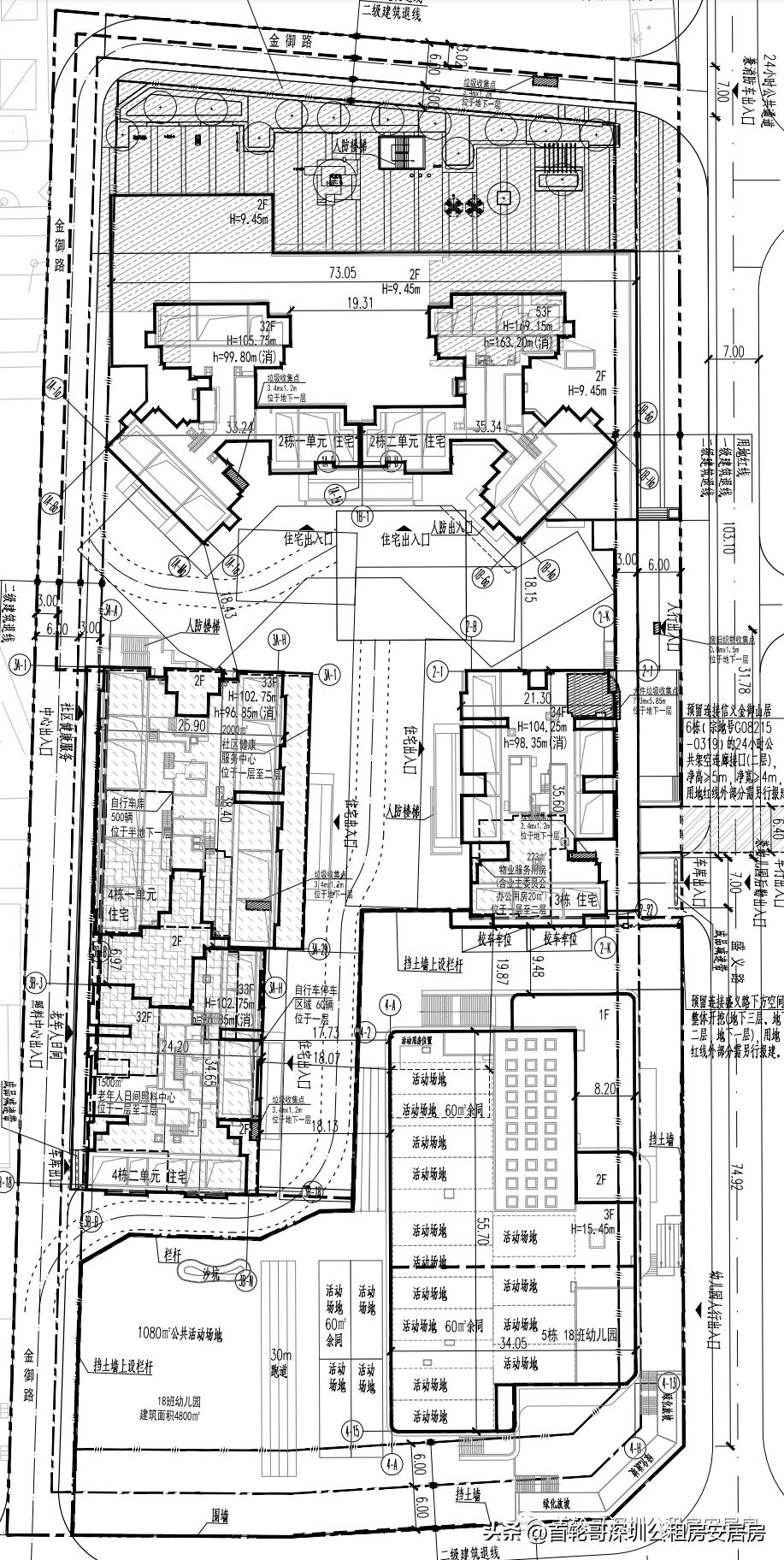
信义金御山居住宅一共23栋住宅(包含2栋保障房),最高56层,4栋办公、5栋独立商业以及住宅底商,1所36班寄宿制高中,一所27办九年一贯制学校以及18办幼儿园等。
其中公租房338+260套,安居房256套,公租房大概率是龙岗区级公租房,还有496户租赁型人才房。目前还未动工,预计安居房23年认购,公租房25年左右认租。
1栋5单元有260套公租房,户型为50-55平的小户型,预计为一房一厅或小两房;
3栋,4栋一单元和二单元属于公租房+安居房+出租人才房;
项目2022年初已动工,安居房2023年大概率是可以配售的,公租房预计得25年左右配租;
安居房价格参照项目周围已选完房的卓弘星辰花园,星河盛境都荟大厦价格,预计在2.2万左右(毛坯价),如果带装修的话需要在这价格基础上再加2000;
周围学校: 安康 学校,保安学校,四联小学,康乐中英文学校等。
规划容积790589㎡,其中住宅605545㎡(含保障性住房合计62230㎡,其中安居型商品房18669㎡,公共租赁住房18669㎡,租赁型人才住房24892㎡),商业、办公及旅馆业建筑153981㎡(含母婴室310㎡),公共配套设施(含地下)31063㎡(含9班幼儿园2400㎡、占地面积3000㎡,18班幼儿园4800㎡、占地面积5400㎡,社区管理用房300㎡,便民服务站400㎡,社区警务室50㎡,社区健康服务中心2000㎡,社区老年人日间照料中心1500㎡等。
另配建社区体育活动场地2处,占地面积共计6000㎡;1处自行车停车场








