
限制与诉求
重庆约克北郡幼儿园位于两江新区约克郡北区,用地南隔城市道路与已建高层住宅区相邻,北侧、东侧为在建住宅区,西侧为城市公园,基地内部相对平坦,高差不大。项目为9班幼儿园,用地面积3330㎡,总建筑面积2701㎡,项目的用地面积相对其班级规模而言较为局促,对幼儿园而言,拥有一个愉悦的空间场所是必要的,如何在有限的用地条件下创造一个安全、健康、充满关怀且富有童趣的教育空间是建筑师需要面对的基本问题。
The project is a kindergarten situated at Yorkville North, a residential compound developed by Hongkong Land in Liangjiang New District, Chongqing, China. It was built on a smooth and level site, near an urban road and built residential high rises to the south, a green park to the west, and residential blocks under construction to the north and east. With a land area of 3,330 m2 and construction area of 2,701 m2, it will accommodate 9 classes. The site is relatively cramped from the perspective of the quantity of classes. For a kindergarten, providing a pleasant space and environment is very necessary, so the key issue that IDO had to think about was how to create a safe, healthy, human-oriented and playful educational space on the limited site.

△ 建筑外观 摄影:DID STUDIO

△ 建筑与周边 摄影:DID STUDIO& 尚筑科技
本项目为社区配套型幼儿园,属于教育地产与名校合作办学的公办民投模式。项目伊始,除了与业主单位达成良好的沟通,与园方的交流也颇为重要,建筑师希望从幼儿园一线教育工作者那得到其基本诉求,并将其教学理念作为空间设计的依据。
园方提出了“爱与乐趣”的开放式教学理念,包含三点:会呼吸(绿色自然)、面向未来(探索精神)、无限可能(个性发展),园方不希望幼儿生长在温室里,希望他们能感受到自然的氛围与温度。
结合用地具体情况与园方的教育理念,建筑师提出了“村落”的概念,希望该幼儿园建成后能成为一个孩子们可以自由探索的“城市村落”。
This project, as a supporting facility for the residential community, will be operated under the collaboration between the property developer and a prestigious school. It's a public kindergarten that welcomes private sponsorship. Therefore, it's very important to keep close communication with the property developer as well as the kindergarten team at the early design phase. The architects wanted to listen to the requests of the kindergarten and work on the design based on its teaching concept. The kindergarten adheres to an open teaching concept of “love and fun” which emphasizes embrace of nature, personality development and cultivation of exploration spirit, and hopes that children will feel and touch nature rather than grow up in a “greenhouse”. Combining this with site conditions, the architects proposed to create an “urban-village” where kids can explore freely.

△ 建筑西立面+材质分布图 摄影:DID STUDIO& 尚筑科技
概念与空间
这是一个垂直布置的“村落”,小朋友可以在不同标高上感受村落的情景,建筑空间与活动场地的叠加设计亦化解了用地局促的矛盾,促成了各个单元体之间的分离,形成了“邻里关系”,考虑到西侧城市公园的景观资源优势,主体建筑最终呈现为U型院落布局,班级作为独立体块叠合布置,体块之间留出缝隙,使其保持 “自由呼吸”之状态。
建筑师希望每个班级都能形成一个“家”的概念,每个生活教学用房就是一个独特抽象的小房子,希望小朋友在园中能建立归属感:各个班级不仅在形体上是相对独立的,同时在材质上也是各不相同,使每个班级单元更个性化,具有一定的可识别性。
The "village" features a vertical layout, allowing kids to enjoy distinctive views at different elevations. The superposition of architectural blocks and activity spaces perfectly overcame the site restrictions, realized the separation of unit blocks, and formed a "neighborly relationship". In order to take advantage of the surrounding landscape resources, the overall building was given a U-shaped courtyard-style layout, facing a park to the west. Each classroom is an independent volume, which overlaps another one while leaving gaps in between to ensure natural ventilation. The architects wished to make every unique and abstract classroom a “home” for children in which they can build a sense of belonging. Independent of each other in shapes, the classrooms also differ in material palettes, so that each one is more personalized and identifiable.

△ 建筑南立面 摄影:DID STUDIO

△ 前院与建筑 摄影:DID STUDIO& 尚筑科技
空间设计趣味性:激发幼儿探索
多样化的教学课程是为了激发儿童的想象力与创造力,同时也对空间设计提出了更多的要求。除了设置常规的儿童生活单元、音体室、医护区、合班教室等满足基本教学需求的空间,建筑师还设置了更多的开放式教学空间:
如在二层设置架空层活动平台、设置小舞台使其成为前后院的“视觉焦点”,结合中心庭院设计了大台阶看台空间、并设置了供小朋友玩耍的树屋、滑梯及斜面攀岩区等活动场所;充分利用一、二层的建筑屋面作为室外拓展活动场地;班级与班级之间的缝隙同样也形成为了小朋友下课玩耍的趣味空间,大量多功能趣味空间的设置,为儿童自发游戏及情境教学提供了开放性场所之可能。
设计上试图提高音体室空间的使用效率,结合场地环境,打通了音体室南北两个界面,使其成为开放通透的多功能复合空间的可能:封闭时可作为独立的教学空间使用,开放时可结合南北两侧庭院成为多功能的教学场所。
With a view to inspiring children's imagination and creativity, the kindergarten developed diversified curricula, which set more requirements to space arrangement. Apart from the spaces meeting basic teaching needs, such as children's living unit, music & sports room, infirmary, and mixed-class teaching room, the architects also designed a variety of open spaces for educational activities. For instance, they created an open floor space on 2F, and designed a small stage, making it a "visual focus" when viewing from the front and back yards. Around the central courtyard, there is a large staircase-shaped bleacher and activity areas where the kids can enjoy playing including a room with a tree, a slide and a sloped climbing area, etc. Besides, the architects fully utilized the roofs of 1F and 2F and turned them into outdoor activity areas. Moreover, the gaps between classrooms also offer spaces for kids to play after class. Various multifunctional open areas are helpful to stimulate children's spontaneous activities and carry out situational teaching. To maximize the use of the music & sports room and based on site conditions, the architects opened up its interfaces on the south and north sides, making it an open and transparent multifunctional space. If closed, it can be an independent teaching room, while it becomes a larger versatile area when opened, well blending with the yards.

△大台阶与建筑中庭 摄影:DID STUDIO& 尚筑科技

△屋顶看台看向中庭 摄影:DID STUDIO& 尚筑科技
基本教学单元
与园方多次交流沟通,最终基本教学单元的平面布置采用活动室与卧室一体化设计的模式,洗手间、衣帽间以及靠山墙一侧的床位收纳空间共同行了“服务空间体系”。
除了服务空间体系里设置了固定家具及收纳空间,平面内未设置其他固定家具,希望获得更为自由的活动空间,教师可根据不同的活动情境,灵活布置家具。
园长说:“希望通过家具的布置过程,慢慢培养小朋友的生活习惯,让他们(大班和中班)逐步学会自己整理生活及学习工具。”核心单元靠近山墙一侧设置了900mm高的阅读台,丰富了室内竖向空间的层次,架空部分也成为了床位的收纳空间。
After full communication with the kindergarten team, the architects decided the layout for each basic teaching unit, which integrates the activity room and bedroom. The washroom, cloakroom and bed storage area beside the gable wall together constitute the "service space system". Fixed furniture and storage area were only set in those service spaces, which guarantees a more free activity area and also enables teachers to arrange furniture according to the needs of different activity scenarios flexibly. "We hope to gradually cultivate the kids' living habits and guide them to learn to tidy up their living and learning tools through participating in the process of furniture arrangement", the principal said. In each basic teaching unit, a 0.9m-high reading desk was placed adjacent to the gable wall, with the empty area under it used for storing beds. Combined with bay windows carved out on the architectural facade, the architects created many windows of various heights in the interior space based on kids' body size, so as to encourage them to observe the outside courtyard at different angles.

△小舞台看向中庭 摄影:DID STUDIO& 尚筑科技

△小舞台内部 摄影:DID STUDIO& 尚筑科技
材料表达
每个班级都是一个“家”,每个家都拥有自己的个性,小朋友们从小对自己的教室形成“家”的归属感——“我是住在木头房子里的,你是住在砖房子里的”,每个体量均拥有独特的材质。
在立面系统上建筑师尝试使用了不同的材质:陶板、红砖、青砖、仿木材料、水泥纤维板、聚碳酸酯板。通过使用聚碳酸酯板,探讨半透明材料在幼儿园教育空间中的氛围营造可能性,使其在阳光*体下**现出多彩的韵律。
在屋面系统上建筑师则运用了铝镁锰板金属屋面系统,较为单纯的屋面统一了多彩的立面系统,制造出了“雪景”的幻像。
Every classroom is a "home" which has its own characteristics. IDO intended to let the kids to build a sense of belonging in their respective classrooms, which were built with distinctive materials such as wood and bricks. Each volume features a unique material palette. The architects applied various materials to the exteriors, including terracotta panels, red and gray bricks, faux wood, cement fiber boards, and polycarbonate sheets, etc. By utilizing polycarbonate sheets, they worked to explore the possibility of creating spatial ambience via translucent materials, which present colorful rhythm under the sunshine. The roofs were finished with Al-Mg-Mn alloy in a unified way, which not only coordinates with the colorful facade but also creates an illusionary "snow-covered" landscape.

△门厅及金属屋面 摄影:DID STUDIO
结合建筑外立面不同尺寸的凸窗,根据幼儿的身体尺度,在室内设置了高低不同的观察窗口,激发小朋友以不同的视角去观察室外庭院空间。

△ 屋面关系 摄影:DID STUDIO
完成度的控制
该项目于2016年5月开始设计,元象建筑不仅完成了建筑方案设计、室内概念设计及景观概念设计,同时作为设计全程的总控方,两年半以来深度参与了对建筑施工图设计、幕墙施工图设计、景观深化设计以及室内深化设计的全过程设计品控,在深化设计中对细节及材料谨慎把控、施工期间完成现场巡场指导数十次,确保了设计概念最终得以较高完成度的呈现。
目前,该项目建筑部分已竣工验收,等待景观及室内设计的施工。由于项目暂时还处于半工地状态,为了更完整地表达建筑概念,文中部分图片采用建筑现场照片与景观效果图“实景合成”的方式呈现。
The project was launched in May 2016. IDO was responsible for the architectural design scheme development and overall quality control. Within two and a half years, the team was deeply engaged in quality management of the whole design process, including the design of architectural construction drawings, exterior construction drawings, the landscape and interiors. Besides, IDO was meticulous in material selection and has carried out on-site inspections for dozens of times during the architectural construction phase, thereby optimized the execution and realization of design solutions. So far, the acceptance procedure of the architecture was finished, and interior and landscape construction is yet to be started. Since the whole project is not completely finished, some images provided are composite ones that were made from both landscape renderings andgenuine photos of the architecture and site.

△ 彩色聚碳酸酯板立面 摄影:DID STUDIO

△ 建筑细节 摄影:DID STUDIO

△ 鸟瞰 摄影:IDO元象建筑

△ 前院游戏场所 摄影:IDO元象建筑

△ 小舞台及中心庭院 摄影:IDO元象建筑

△ 大台阶及树屋 摄影:IDO元象建筑

△大台阶望向中庭与小舞台 摄影:IDO元象建筑

△音体室看向中庭 摄影:IDO元象建筑

△ 二层走廊望向中庭 摄影:IDO元象建筑

△ 门厅屋顶活动场地 摄影:IDO元象建筑

△ 音体室与侧院 摄影:IDO元象建筑

△基本教学单元剖透视 摄影:IDO元象建筑

△建筑模型 摄影:存在建筑-建筑摄影

△草图 摄影:IDO元象建筑

△总平面 摄影:IDO元象建筑

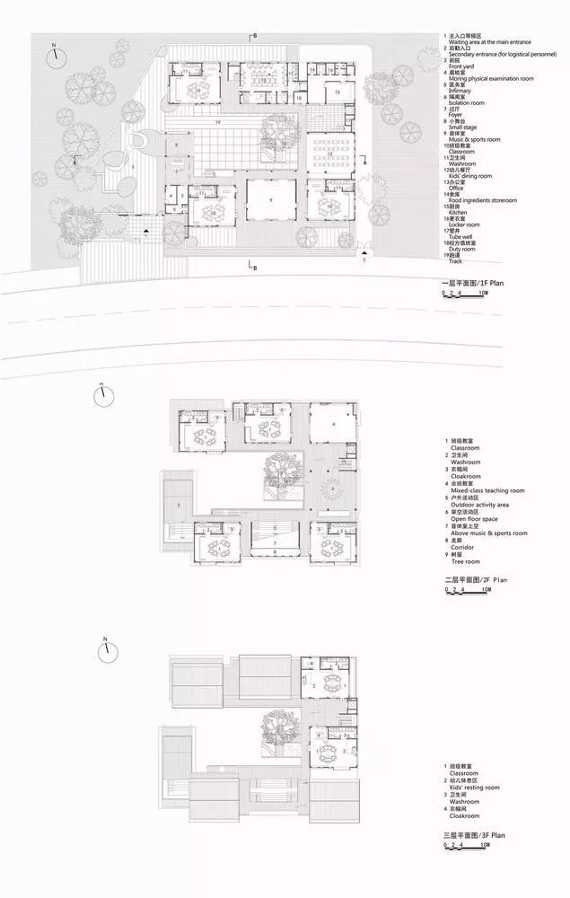
△一层平面 摄影:IDO元象建筑

△二层平面 摄影:IDO元象建筑

△三层平面 摄影:IDO元象建筑

△各层组合平面图 摄影:IDO元象建筑

△剖透视 摄影:IDO元象建筑

△主入口等候区墙身大样图 摄影:IDO元象建筑

△墙身大样 摄影:IDO元象建筑
项目名称:重庆约克北郡幼儿园
项目地址:重庆市两江新区怡和路约克北郡
设计单位:IDO元象建筑
建筑设计:陈俊、苏云锋、宗德新、李剑、柴克非
建筑施工图单位:重庆市设计院
建筑:邓洪波、马晓婧、胡珑铧 总图:赖韬
结构:朱海超、徐向茜 给排水:蓝鹏 电气:胡轶,暖通:吴志勇
幕墙施工图单位:中机中联工程有限公司
幕墙设计:熊联波、严政、赵宇、陈青术
业主单位:香港置地
管理团队:郑海川、汤照晖、刘颖
建成状态:建筑竣工,景观、室内待施工
设计时间:2016.05-2017.9
建造时间:2017.04-2018.10
建筑面积:2701㎡
用地面积:3330㎡
景观设计单位:道远景观
景观设计:周雪梅、陈文龙、莫贻海
室内设计单位:一夕幼儿园设计研究室
室内设计:焦樵、陈诺、金庆锦、谢国飞
摄影:DID STUDIO
效果图:尚筑科技
实景合成:DID STUDIO + 尚筑科技