“光赋予美以戏剧性,风和雨通过他们对人体的作用给生活增添色彩。建筑是一种媒介,使人们去感受自然的存在。”
—安藤忠雄
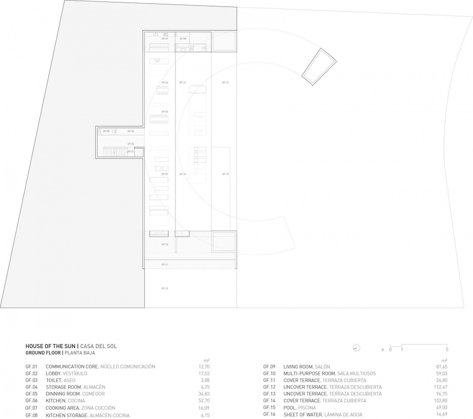
由西班牙设计事务所Fran Silvestre最新设计的别墅,优雅地坐落在城市Marbella的一片坡地之上,灰与白的体块在大自然中屹立。




这是建筑与自然的对话,存在于弯曲旋转的建筑和山体斜坡,绿草青石之间,也存在蔚蓝天空与绿色大地之间。当旭日东升之时,绿树的光影投射在建筑表面,斑驳疏离,而从玻璃射入的阳光沐浴着室内的人与物。



露天之下,空气,阳光都这么清新怡人,而亲近的泳池不只是生活的惬意,更是生活的一道美景。





自然已经很美,建筑已经很美,多余的造型只会让空间见拙,简洁的沙发与餐桌,线型灯光的烘托,人在其中,卸下工作的疲惫,静静的在空间里行走,享受着与自然的亲密对话。



