


Capitania 大楼位于巴西圣保罗的 Brigadeiro Faria Lima 大道,由 Pedro Paulo de Mello Saraiva 于 1973 年设计,是建筑师作品的重要组成部分。



该项目的定义是其结构解决方案 - Saraiva 作品中的一个重要痕迹 - 在典型楼层的外立面上放置结构柱,该解决方案创造了无柱的开放式办公空间,同时减少了直射阳光对立面的影响,由大型铝制和玻璃窗构成。



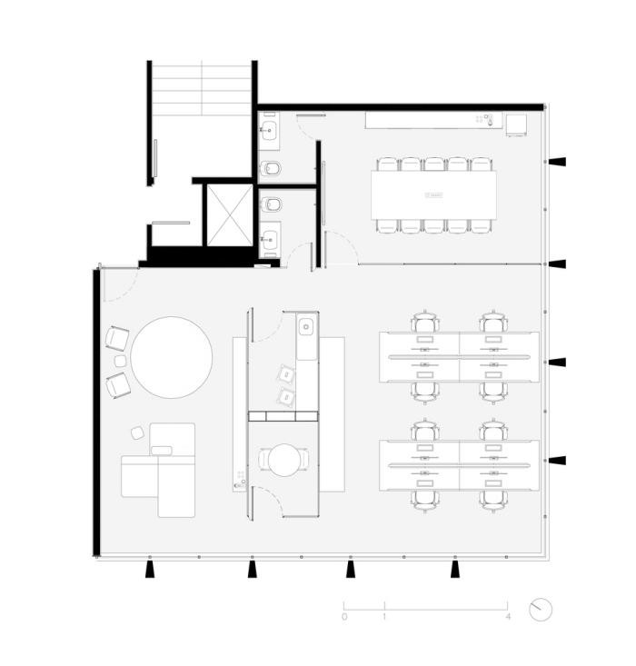
该项目是为打算占据 Capitania 商业区之一的律师事务所设计的,试图通过拆除所有石膏天花板和干墙隔板来探索建筑的原始品质,揭示混凝土结构,因此,突出建筑的结构特点。
我们定义了对空间的广泛感知应该是一个前提;办公室程序的分布由优雅的横梁网格引导,严格调制,并与立面的柱子仔细连接。



一个独特的落地式隔音玻璃隔断——与建筑的核心对齐——定义了会议室。一个与混凝土天花板分离并由混凝土结构调节的玻璃体量被定位为与现有厕所墙的延续,从而形成两个空间:一个最多可容纳 12 名工作人员的工作区——一个特定的客户需求——和一个接待处——客厅。在半透明的玻璃体积内,放置了一个小咖啡室和一个电话室。



一方面,如果该项目以建筑物严格的结构调整为导向,另一方面,选择整体、无接缝的环氧树脂地板,则允许对空间进行广泛、连续的理解。
在混凝土梁之间,石膏板穿孔声学天花板计划是固定的。对现有的空调系统进行了改造,采用明显的椭圆形镀锌管道进行空气分配。
玻璃隔断由扁平钢型材制成,选择是因为非常纤薄。玻璃分隔是为了应对建筑物有限尺寸的电梯和楼梯造成的交通困难而定义的。


所有由海军胶合板和白色 Formica 制成的木制品都是个性化的:壁橱、橱柜、餐具柜和书架,以及办公桌,其中符合人体工程学的细节特别小心,例如易于使用的插座和互联网插头,以及特定的照明。
咖啡厅和卫生间内部使用了预制花岗岩面板,有时用作墙壁涂层,有时用作隔板或柜台。
照明项目利用非常简洁的线条,根据每个环境的需要,直接照亮工作平面、间接照亮天花板和墙壁。



因此,人们可以观察到对建筑特性极其敏感的干预措施,一个非常宜人的工作空间,视觉上的整合,对城市景观的充分把握。



