前天,长沙第二轮集中土拍正式开拍, 中国金茂斥资12.4亿拿下洋湖西东山湾国际新城126号地块!
126号地块是 本轮土拍首块成交的土地 ,又是央企金茂拿下,可见含金量之高。
126号地块毛坯限价11800元, 加精装可卖14300元以上 ,市场对洋湖西的价值预期飞速上涨!

长沙市126地块信息,仅供参考
央企拿地将助力片区板块价值提升 ,形成洋湖、智谷、东山湾的三核发展格局。
从地理位置来看,三大板块中心正是十几年每次开盘都是热销, 销冠已拿到手软的王者盘:江山帝景!

项目位置示意图,仅供参考
该项目高层已在去年全部售罄, 目前在售压轴组团——普罗旺斯洋房 。
与新地块相比, 江山帝景洋房产品稀缺、配套完善、学校牛气 ,堪称本次土拍的大赢家。

项目效果图,仅供参考
一、鼎配洋房,实景呈现
普罗旺斯组团总占地约10万方, 全部为5-8层真洋房 。
据了解,最早一批A区今年年底交房,目前A区楼栋已全部封顶,外立面基本完工。

项目效果图,仅供参考
近期不少开发商暴雷, 买新房就像“开盲盒”,交房动辄2-3年 ,交付水平更充满不确定性。
对比之下,江山帝景普罗旺斯组团完全不存在以上问题,房型、楼间距、园林、设施所见即所得。

项目洋房实景,仅供参考
买江山帝景洋房,就是实景选房。 品质肉眼可见,无需靠纸上规划猜想,避免了买家秀与卖家秀的尴尬。
已经封顶的房子,交付期必然大大缩短 ,不仅降低等待的不确定性,还能快速装修入住,早日圆“大宅梦”!

项目洋房实景,仅供参考
长沙真洋房少、准现房更少,能集合真洋房+准现房的新盘,恐怕只有江山帝景一个!
买江山帝景5-8层真洋房,不仅房子所见即所得,舒适生活更近在眼前,想想就诱人!
二、鲜氧小区,爆款产品
江山帝景普罗旺斯组团是真洋房+准现房, 更是一个环境宜人的“鲜氧洋房”小区 。
项目容积率仅约1.29,绿地率高达42.28% ,园林景观面积近6万方,完全是别墅级享受!

项目效果图,仅供参考
超低容积率决定了高端属性 。项目户数只有高层三分之一,楼间距、园林景观、休闲区都非常大,生活品质超群。
园林融合欧式建筑风格 ,自然生态的“一心、两轴、多元”多重景观,业主下楼如同逛公园,还设有儿童乐园、运动休憩区、彩色跑道等,满足全年龄段活力空间需求。
普罗旺斯组团仅规划26栋洋房,全部是5-8层真洋房 ,等于一个单独的洋房小区,仅616户,十分纯粹!
洋房所有楼栋均为纯板楼、一梯两户、低窗设计 ,通风采光好,居住更高级,空间更通透。

项目效果图,仅供参考
项目主推建面约151㎡-313㎡洋房 ,有平层、复式、叠拼三种,产品丰富,且复式与叠拼别无他家!
平层、复式、叠拼分别规划为南、北入户, 户户朝花园、家家有景观 ,私密性超越市场同类产品。




左右滑动查看更多
样板间实景,仅供参考,非交付标准
建面约151-192㎡平层
平层户型涵盖四房、五房 ,户型方正、南北通透,均带有双阳台或三阳台,采光、通风、观景俱佳。
3-4开间朝南,客厅开间大 ,主卧套房带独立卫浴+衣帽间,可做成总统套房,十分奢阔。





左右滑动查看更多
户型示意图,仅供参考,非交付标准
建面约156-186㎡叠拼
叠拼户型十分有特色,为咬合叠拼设计 ,双倍生活空间,都是四个阳台半赠送,上层餐厅上空全赠送,得房率爆表!
156平叠拼三阳台设计 ,餐厅上空挑空,改造后可做4房,一体式餐客厅,半包围小吧台,超大主卧套房。



左右滑动查看更多
户型示意图,仅供参考,非交付标准
168平叠拼改造后可得四房 ,约4.9米客厅开间,有一个超大主卧带衣帽间+独立卫浴,完全动静分离。
168平叠拼户型有实景清水样板间,建议大家实地感受下大空间。


样板间实景,仅供参考,非交付标准
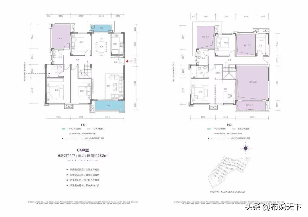
建面约232-313㎡复式
复式大挑空设计,多阳台+星空露台,超开阔尺度 ,客厅大、餐厅大、厨房大、主卧大,每个房间都很大。





左右滑动查看更多
户型示意图,仅供参考,非交付标准
三、教育巨头,配套傲娇
看完江山帝景的洋房,相信不少人已开始啧啧称赞, 但项目外部配套同样惊艳,堪称“钻石级”。
项目位于洋湖新城、东山湾国际新城、人工智能科技城三大片区之间 ,可享受多方面发展福利。
距离洋湖湿地公园仅几百米 ,步行可达公园。优越的区位条件,傲视整个长沙。

项目位置示意图,仅供参考
教育资源
江山帝景是长沙著名的“双牛校小区” ,自建两所品牌幼儿园,小学划分在博才白鹤小学,博才系重点强校。
初中方面, 江山帝景配建湖南师大附中博才实验中学 (学士校区),实力强、名气大!

项目效果图,仅供参考
师大博才(学士校区)就在江山帝景门口,小区内部道路直通校门,实现“目送式”上学!
师大博才(学士校区)由岳麓区与师大附中本部联合办学,是岳麓区知名品牌初中。

师大博才南校区,仅供参考
学校师资及管理团队均由师大附中和教育局选派 ,今年42个附中本部指标生全部录满,实力强劲!
根据教育局报名系统, 江山帝景是妥妥的师大博才(学士校区)配套入学,无需派位!

长沙配套入学报名系统,仅供参考
交通资源
门口有含浦大道、象嘴路、洋湖大道,“三纵四横”交通路网。 麓景路隧道已通车 ,去梅溪湖、麓谷、河东、高铁站都很快。
距离地铁3号线洋湖湿地站约3公里, 门口远期规划有地铁11号线+13号线,将有双地铁。

项目位置示意图,仅供参考
商业资源
自带约10万㎡欧陆风情商业街 ,对面就是象山国际商业街(在建),不远处有洋湖时代沃尔玛广场(直线距离仅约300米)。
距离洋湖商圈约2公里,畅享 宜家荟聚、宜家家居、京东超级体验店、卓伯根、龙湖天街 ,超繁华。

宜家示意图,仅供参考
文娱医疗资源
往东有李自健美术馆、谢子龙影像艺术馆、湿地科普馆等文化坐标,艺术氛围浓厚。
距湖南妇女儿童医院约3000米 ,距湖南中医药大学第三附属医院(三甲医院)约1000米,已正式启动建设。

湖南妇女儿童医院,仅供参考