设计理念:现代简约风格是现代很受人们欢迎的一种装修风格,现代简约风格外形简洁、功能强,强调室内空间形态和物检的单一性、抽象性。顾名思义,就是让所有的细节看上去都是非常简洁的
项目地址:西安市长安区---#龙湖花千树二期#
设计及施工单位:北京今朝装饰西安公司
建筑面积:145平米
设计风格:现代极简风格
装修模式:定制半包+主材代购
方案提供:北京今朝装饰西安浐灞部设计部
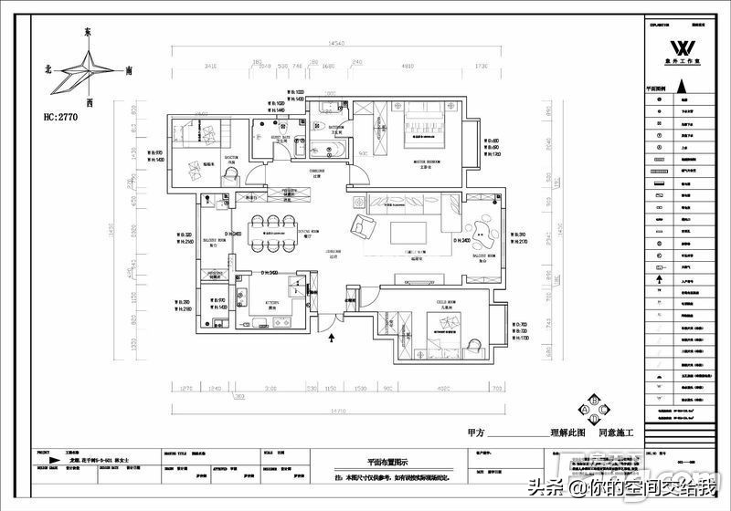
在#西安装修#一套147平的三居室房子如果想达到理想的效果,那就需要一个好的设计师做前期的功能平面规划。根据我们家人的起居生活习惯做功能布局,既要便于使用也要满足后期的生活需求,在此基础上做造型设计,颜色搭配,让整个空间温馨实用美观!
该方案从平面规划图上可以看到很多的收纳柜,这是给孩子上学用的房子,未来的十几年甚至更久的时间一家人都会居住在此,所以设计师给家里做个充足的收纳空间来应对后期的储物需求!
我们改动每个空间原有的结构都是基于对生活便利的原则,设计师对儿童房稍作调整,给玄关创造了储物收纳的空间,餐厅墙体拆改也让收纳空间更为宽裕!
在色调上,用白色+原木色的搭配给整个家赋予了温暖的感觉,用原木色的装饰综合的白色的冷,视觉上更干净简洁。
这套方案总体给人的感觉就是简单大方,美观耐看,对于空间的规划很合理!







需要咨询的业主可私信:#装修#+#设计#
1、免费资深设计团队精准量房服务1次;
2、平面设计方案(量房2-3个工作日后,2-3套平面方案等您到店品鉴);
3、免费验房服务(仅限新楼盘,老楼盘60平方起);
4,欧标建材:德国盖森管,圣戈班分解甲醛石膏板,美国大师漆,欧松板等等
#新房装修#,#老房装修#,提供免费验房,量房,初步设计方案和报价!
报名即可参加免费验房、量房、出#装修预算#、初步设计;还有大量装修效果图参考哦!

非常感谢点击阅读,如果喜欢欢迎收藏转发,评论,有装修需求的欢迎点击报名
喜欢本案例的可以联系我,更多案例可以关注【半暖空间QQ496773121】微博
