Yodezeen,由Artem Zverev和Artur Sharf创办,走高端路线的设计,自己独特的设计风格,不趋于平凡的设计,也不趋于平庸的风格,品味胜于折衷,以强烈的时尚感为客户创造了一个无与伦比的空间环境。

Yodezeen创始人Artem Zverev\Artur Sharf
下面这套面积290平方米的复式豪宅,YODEZEEN最新的设计作品,试图为家庭创建一个家,一个新传统的家,一个可以放松,工作,做饭,与孩子们一起度过时间的家,以各种折衷风格的时尚融入自己的风格特点。整个项目花10个月完工。

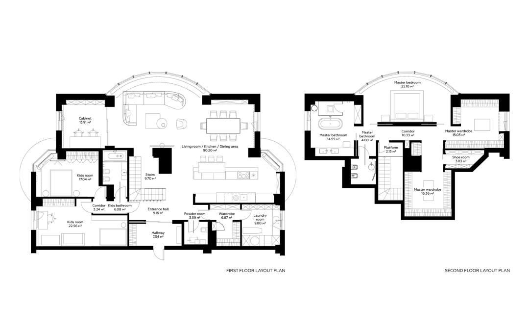
平面图
▽


为了实现设计理念,设计师选择了新一代喜欢的折衷风格,该项目在自然光线的作用下进行,但与此同时,整个住宅都铺有大理的石材和金属材质。



设计师利用优势,在一个非常复杂的建筑中做出了最好的项目之一,在两层公寓中设计了一个真正的复式室内设计,并注重纹理,颜色,细节和组合。一楼是集中的公共区域,例如厨房,餐厅,客厅,家庭办公室区域以及访客和儿童部分;二楼完全是主楼区域。


Poliform金属厨房,是整个项目最吸引人的地方,它设计为仅家用,灰蓝色,带有虹彩金属表面,与石材制成的厨房岛相比,具有失重效果。YODEZEEN的设计师指出,厨房会随着时间的流逝而变得更好,因为表面上形成的水泥浆将使厨房看起来更真实。选择Poliform品牌厨房并非浪得虚名,该厨房同时具有实用而优雅的设计,可完美结合项目中的不同解决方案。




在重新考虑了设计并移除了不必要的墙壁之后,在厨房、餐厅和家庭起居区之间创建了一个开放的概念。Rimadesio玻璃隔断作为一个艺术品,安静地,几乎不知不觉地将走廊区域与主要公共区域,以及橱柜区域与公共空间分开。


橱柜配备了最必要的设备,它是定制的桌子和搁板,它们的颜色和纹理在墙面装饰中形成带有单板的色彩组合。第一级隔板的石墨颜色与铜制照明解决方案和谐地结合在一起,铜制照明解决方案在整个第一级隔板中都放置了几乎无法察觉的重音,从而实现了金属与木材的完美结合。






内饰的拘束和受人尊敬的设计也决定了Minotti品牌的家具,这确保了在触觉,颜色等所有方面都具有无可挑剔的质量。对客厅家具的足够简洁,有时甚至严格的解决方案,从而使整个内部空间具有色彩和纹理饱满度,并为整个项目提供了完整的形象。




设计师决定用重点照明照亮我们的Triumph,并使用了RH,Vesoi,And Light,Giopato Coombes等世界领先品牌。最后一盏灯由许多形状各异的玻璃球组成,高高地放在餐桌上方,营造出一种通风和明亮的感觉。




深灰蓝色调的Minotti Alexander转角沙发与我们案例中著名的Poliform Mad Joker扶手椅搭配棕色皮革,在室内饰有深色色调,强调了现代元素。









第一层分区的主要元素是一种立方体,位于通往第二层的楼梯与客厅之间,并将入口与主要公共区域分隔开。在这个项目制定过程中,面临着楼梯集成的复杂性。石材楼梯是旋转式公寓的主要特征,是真正的雕塑元素,强烈的个性。




最先的楼梯和现在的完全不同,在整个设计过程中一直在寻找正确的解决方案,需要创造一种非凡的,富有表现力的设计元素,并定义整个公寓的主要特色之一。




石材板是专门为现有的内部设计的,并且几乎无缝的铜金属框架构成了石材台阶,为室内增添了经典风格,并结合了石材的入口和表面。














主品牌选择了另一个意大利品牌Giorgetti,宽大的双人床,以及深绿色和米色相结合的床头柜,简洁地营造出现代而宁静的卧室内饰。





主区域占据公寓的整个第二层,包括一间卧室,一间浴室以及男女更衣室。第二层的独特元素是巴塔哥尼亚大理石,并在浴室区域使用。











为了使它看起来如此神奇,设计师需要将LED系统尽可能地封闭,因此所有连接都是不可见的。甚至决定增加放置衣柜的空间!不过那是另一回事了。





儿童区位于一楼,儿童区包括儿童房和洗手间,宾客区包括卧室和洗手间。




