【鼓楼上城】夏夏和尚尚的慢漫时光
很喜欢简美风,干净、清爽,阳光明媚、清新自然。
开放式储物、白色、原木色家具……
这些经典的元素,对于我来说,看看就好,真要住起来,怕是要累死了。
所以,这份美好,只能看看了。
在美貌和实用之间,我选择了后者。
于是,我和夏夏的小窝,就变成了“没有风格的风格”“啦。
我能想到最浪漫的事,就是和你一起慢慢变老
——致我们的“慢漫时光”。
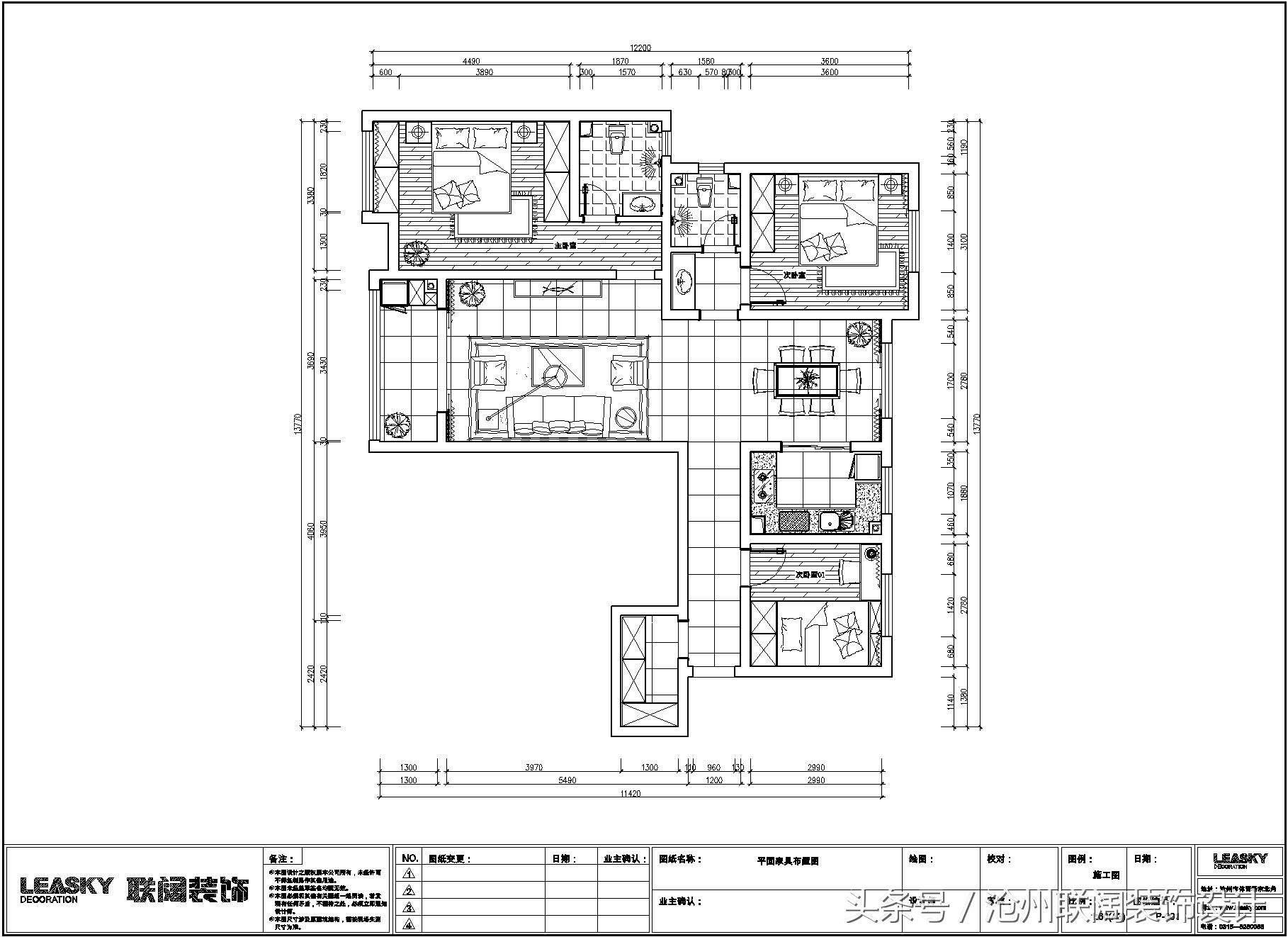
小窝概况鼓楼上城三室两厅一厨一卫建筑面积135平方
装修公司联阔装饰
设计师 王工
装修预算 4.5万(半包,不含水电)
户型图奉上:

我们的小窝坐落在鼓楼上城,从签合同到拿房,将近2年的时间。
漫长的等待,无尽的憧憬。期间,无数次在工地旁徘徊,看着它一点点变化,一点点成长。
关于装修的事,也一直在脑海里盘旋。
第一套房子装修,留下好多遗憾,希望在这一套房子中能够有所弥补。
因为没有时间,一开始我们就确定找装修公司。
2017年4月份,即开始了寻找装修公司的漫漫长路。
其实一开始,并没有想这么早就开始的。
一次去鼓楼上城,被某装修公司工作人员热情的招呼到他们的样板工地考察。
结果,就一发不可收拾了,后来去看了他们的方案及报价,没有什么吸引我的地方,再加上离交房尚早,后期就不了了之。但却燃起了我寻找装修公司的热情。
不知道为什么,我对主动找上门的都没什么兴趣(传说中的逆反心理么?)
我自己在浩瀚的网络中遨游,寻觅……圈定了两个公司作为考察对象。其中一家公司,工作人员非常热情,简单聊过以后,加了QQ。因为平时没什么时间,所以我也不是太积极。后来对方主动联系我,说给我安排了设计师,我就把户型图,还有我的一些基本要求,都给了对方。不久,对方的平面设计图就出来了。邀请我去公司看。可惜后期沟通不畅,所以就放弃了。
最终选定的公司:联阔装饰。
简单说下选择春雨的理由吧:
1、首要原因:环保!敢于承诺“环保不达标就赔款”,这样的自信,应该问题不大。(家有小屁孩一枚,环保问题非常重要。)
2、整个沟通过程非常顺畅和愉悦,客服向秋(美女一枚),态度好的没话说,而且也十分专业。
3、设计师王工(帅哥一枚),以客户需求为中心,功能设计基本达到我的要求,对于我的一些不切实际的幻想,也给予了十分中肯的意见和建议。
4、加了联阔的装修客户群。里面会有客户提出一些问题,联阔解决的态度很好,速度很快!还经常有一些超值小服务!

电视墙装修效果图

客厅装修效果图

餐厅装修效果图

卧室装修效果图