现在农村的发展可以说是一日千里,彻底摆脱了之前“贫瘠”“落后”等标签。农村朋友建房也是与时俱进,挑空客厅、落地窗、阳光房这些时尚的元素,全部出现在了农村房子中。尤其是通透的落地窗,既显得时尚大气,也优化了室内采光,可以说是一举两得。今天给大家分享10套带落地窗的别墅图纸,网友表示:农村房子这么建,谁还稀罕去城里?
户型一

占地尺寸:12×14m
占地面积:148㎡
建筑面积:290㎡
建筑高度:9.3m
建筑情况:4室 2厅 3卫 1厨 1车库 1露台
平面布局图如下:


户型二

占地尺寸:16.5×10.7m
占地面积:183.8㎡
建筑面积:364.83㎡
建筑高度:11m
建筑情况:7室 1厅 1厨 1餐厅 4卫 1影音室 1娱乐室
平面布局图如下:


户型三

占地尺寸:16.8m×10.8m
占地面积:160㎡
建筑面积:420.4㎡
建筑高度:10.3m
建筑情况:6室 3厅 1厨 1餐厅 4卫 1休闲室 1书房 1健身房
平面布局图如下:



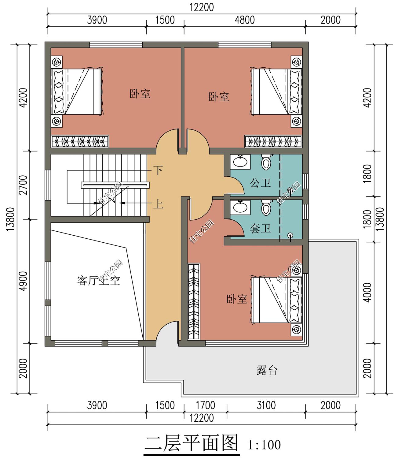
户型四

占地尺寸:11.96×12.5m
占地面积:155㎡
建筑面积:265㎡
建筑高度:8.9m
建筑情况:设1老人房 2卫 1厨 1餐 1客厅 1起居室 4卧室 1玄关
平面布局图如下:


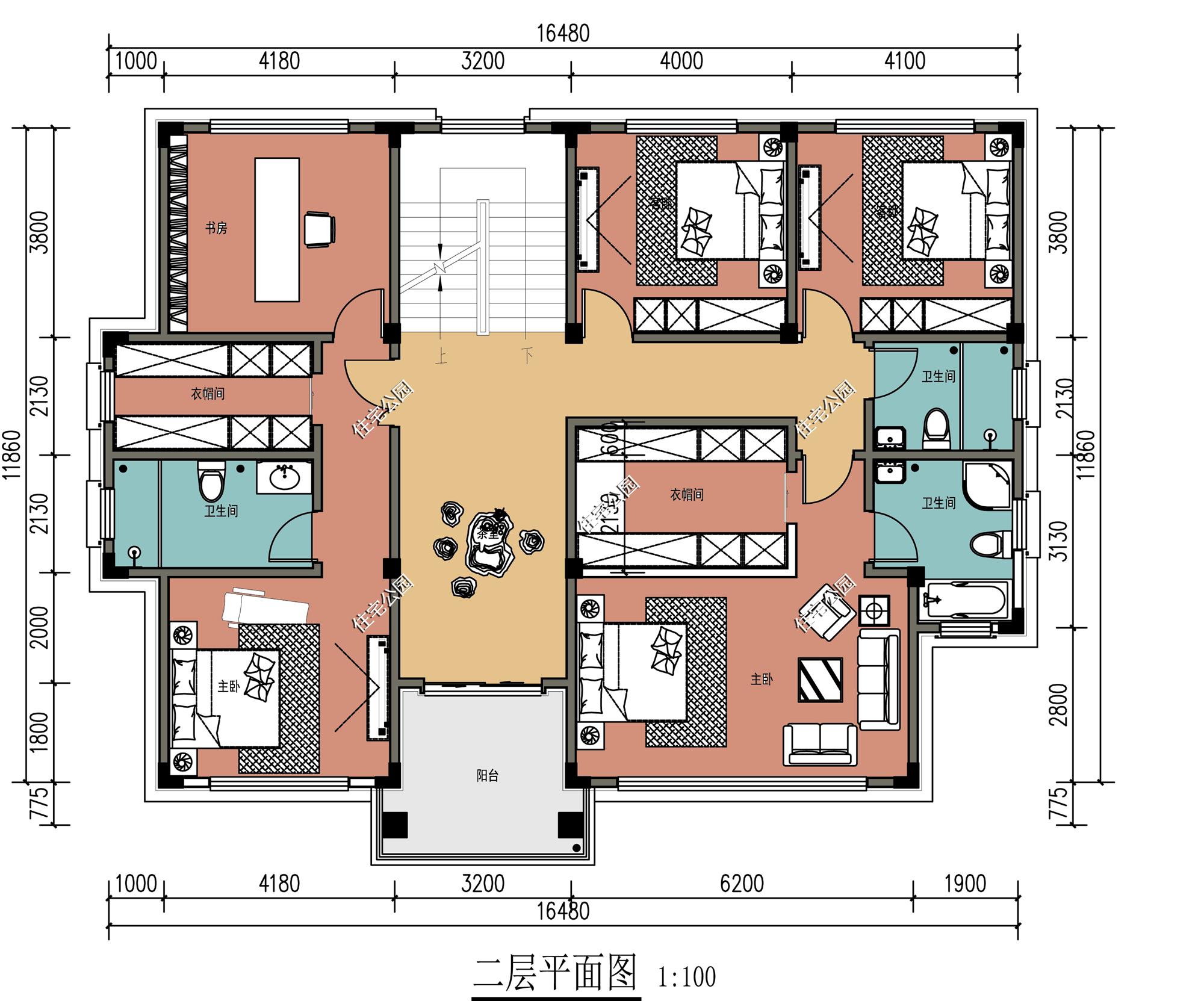
户型五

占地尺寸:16.48m×11.86m
占地面积:188㎡
建筑面积:378㎡
建筑高度:9.7m
建筑情况:1客厅 1厨房 1餐厅 1玄关 1茶室 6卧室 5卫生间 2衣帽间 1书房 1阳台 1洗衣房
平面布局图如下:


户型六

占地尺寸:13.8m×12m
占地面积:162.2㎡
建筑面积:456.8㎡
建筑高度:11m
建筑情况:5室 3厅 1厨 1餐 3卫 1书房
平面布局图如下:



户型七

占地尺寸:12m×13m
占地面积:157㎡
建筑面积:300㎡
建筑高度:9.9m
建筑情况:5室 2厅 1厨 2卫 1书房 1露台 1阳台 1起居室 1书房 1玄关 1杂物间
平面布局图如下:


户型八

占地尺寸:16.8m*18.2m
占地面积:240㎡
建筑面积:451㎡
建筑高度:9.25m
建筑情况:共设4室 4厅 1车库 1厨房 1餐厅 4卫 1保姆房 1休闲吧台 1书房 1衣帽间 1洗衣房 1电梯
平面布局图如下:


户型九

占地尺寸:20.4×10.5m
占地面积:179.3㎡
建筑面积:445.5㎡
建筑高度:13m
建筑情况:7室 1厅 1厨 1餐厅 5卫 1休闲室
平面布局图如下:



户型十

占地尺寸:12.5×14.17m
占地面积:160.3㎡
建筑面积:320.64㎡
建筑高度:10.1m
建筑情况:5室 5卫 1客厅 1玄关 1厨 1餐厅 1品茶区 1阳台 1起居室
平面布局图如下:


这10套图纸设计都非常好,你更喜欢哪一套呢?