最近一段时间,很多地产负责人找我聊天,他们也总是在跟我表达着自己的产品是有多么的创新,在疫情之下是有多么的特殊
但说实话,很多我都无感,因为大体都是很雷同,只是换个说法或是换个形式包装一下而已
今天想跟大家分享的开发商,相关的产品理念让我耳目一新或是思维震撼,这家开发商很早就成立了自己的产品研究院,深层次思考产品体系的逻辑
这家开发商的名字叫:蓝光

蓝光目前已经有30年的历史,布局60余座城市,也正是因为极强的产品力和深厚的内功,蓝光的口碑持续发酵,在这2年,也正式进入了千亿房企俱乐部
同时通过这次特殊事件,蓝光在前期产品力的基础上,融入了自己的思考
形成了“蓝卫士”这样的产品体系
从户型功能升级、智能居家体系提升、社区功能完善、物业服务智能升级几个层面,从整个生活逻辑出发让社区和居住都变的更为安心和安全

这其实就是各种软性元素的渗透,点滴间让人感受到生活的美好

很多人一直在感叹
为什么蓝光可以持续性的创新,从本质上看是因为这家开发商真正意义站在客户角度去进行产品研发和这么久以来的产品深耕
我们来看看蓝光的独特思考
01
这一次应该是我们与家人相处最长的假期了,不仅如此,出于隔离的需求,我们大部分的人只能在家办公,现实的矛盾就是,总感觉面积小了点,功能的空间上还缺一个角落
学校规定孩子在家进行网络学习,公司规定在家进行远程办公,有限的空间内需要承载和满足太多的功能性需求,很矛盾是不是
蓝光通过后期对户型的合理改造,特意增设了“第三空间”,让整个户型散发出更多的魅力
比如,对于很多开发商都会忽略的卧室,蓝光的选择是尽量减少无效面积,同时将卧室的进深拓展0.5米,不要小看这一点点拓展出来的面积
经过测算,虽然只是进深拓宽增加了0.5米,但也正是如此,卧室就有了更多的可能性

就是这么额外增加出来的空间,小孩子可以在这里做作业,老婆可以在这里练瑜伽或是进行梳妆,丈夫可以在这里工作,每个人的需求都能得到一定程度的满足

当然,蓝光想要增加的空间还不止如此
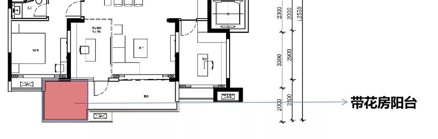
比如因为这次疫情让很多人长时间的在家不能外出,需要储备大量的物资,但是很多家庭其实是缺乏相关的储物间的
蓝光直接将目光放在了很多人都会忽略的北向生活阳台

通过一系列的改造,将整个北向的空间纳入到居住空间中来,直接扩大了空间整体的利用率

开发商对于面积有“多计较”呢,甚至连阳台都没有忘记
直接做了独立的带花房的阳台,因为整体面积和采光都不错,业主可以在这里进行集体性的娱乐活动或是看书养花放松

这相当于是在客厅之外独立出了一个小空间,也同时可以衍生出更多的空间

所以说,面积大不大是一回事,真实的使用感受又是另外一回事,这可能都是些非常小的优化
但是对于真正购买这套房子的用户来说,未来的生活场景将会完全不同
但是优化并没有停止
比如大部分人都觉得玄关的意义是什么,就是保护一点业主的隐私是不是,但是,蓝光却把这个做的更加深入了
做了这样的“净身入户设计”
通过入户玄关的隔离和对进出入的动线设计,将空间分为净区和脏区,每次进门,先挂置外套,换好拖鞋,这样就最大程度的降低了将外部污染带回来的可能性

同时,在半独立的玄关处,还设置了这样的免水洗手液,直接让业主全部消完毒再进来,让玄关成为了保护家庭的第一关

我们说,真正的好户型,是能直接触及你的内心,增加每一位家庭成员的幸福感的
在特殊时期,我们在家的时间也变长了,每天一成不变的生活很容易让人感到焦虑
因此,如何更好的通过与家人相处排遣内心的孤寂感,其实会成为困扰很多人的问题
蓝光从最初的设计开始,竟然将业主的“心理健康”这样的维度纳入到了户型设计的层面
不管是厨房还是客厅,蓝光从一开始就放大了两者的比例,让家人可以有更多的时间在一起,也让空间衍生出了更多的场景

每一个户型都设计出了这样的百变空间,对于一些喜欢健身的朋友来说,不用去健身房就可以完成健身,提高身体免疫力
对于小户型来说,可以利用阳台和客厅的空间,进行简单的器械运动

所谓的创新其实就是一个个点的堆积,将这么多细节全部累积在一起,就慢慢形成了一个创新体系
不仅如此,蓝光还结合了前期的社区主入口、社区配套、示范区售楼部空余的面积段,重新定义了一个空间,叫社区超级大堂
很多开发商对于售楼处的态度就是承载的了单一的营销功能,房子卖了基本就是处于空置状态,但蓝光正试点通过对售楼处后期的改造,引入更多的生活场景

这样做的目的就是为了让业主平时可以更方便的买到肉蛋果蔬,周末想要休闲时下楼就能享用咖啡,或换个更为休憩的工作环境,业主们可以在这里尝试各种有趣的活动,沟通交友,也可以接受各类成长课堂的培训

同时通过这个超级大堂的自助货柜,整个外卖和收发快递的过程也变得更加井然有序,实现了人与人的零接触
02
对于蓝光而言,不仅是室内要用尽心思,室外的公共区域也要做的很独特
从用户进入小区的那一刹那开始,蓝光就构建了真正安全的“无接触智能管理”
整体的研发思路就是从人行入口处、车行入口处、特定人员人脸识别追踪、无接触入户等,整个逻辑整合的非常紧密

社区及楼栋的大门能够通过人脸识别,自动高效开门,同时也正试点通过红外体温检测的方式,无接触的排除每一个可能存在的危险因素

当业主通过单元门时,系统自动识别后门禁直接释放开门的同时将联动大堂电梯到达首层,业主无需等待就可直接无接触进入电梯

在疫情风口下,电梯作为很密闭的空间,大多数物业会选择直接忽略,好一点的物业可能会在电梯里放点抽纸什么让业主摁电梯的时候注意隔离
蓝光的解决方案是,尝试在电梯间安装“自动感应紫外线消杀灯”
直接从源头上就进行病毒的消杀,因为是自动感应的,当业主进入电梯时就停止工作,当电梯无人时进行消杀,这样就整体提高了安全性

更重要的一点是,对于前期已经交付的部分小区,蓝光也试点推行免费安装,当然这样做人力成本还是物料成本都会很大
但你能感受到的是,对于蓝光而言,很多时候不仅仅是为了卖房,而是要真正站在业主实际生活的角度出发,营造持续的口碑
这些都还远远不够
各位可以想想,日常生活中还有哪些出行会和我们的生活密切相关,毫无疑问就是快递和外卖了
这在当下的疫情阶段为我们提供了巨大的方便,但是在进入小区的时候,如何辨别以及安全性如何考量,是很多开发商需要思考的
蓝光是这么做的,直接开发了这样的“鹰眼云图”系统

通过指定摄像头,实时记录外来人员在小区内的行动轨迹,并在物业管理平台中呈现

他在小区内的所有路线都是被监控的,如果进入到非指定区域或是有意外,系统就将直接联线物业做出相关防范
智能化从来不是一种噱头,他必须真真切切让客户觉得有用才是最实在的
我再问下大家,你在疫情期间最大的苦恼是什么,应该就是生活物资很紧缺是不是
特别是蔬菜水果什么的很难买到,家庭采购需求的不断暴增和电商企业无法及时满足,让整个物资供应的短板完全暴露了出来
对于蓝光而言,这些却都不是问题,因为蓝光有着自己的“嘉菜园”项目
蓝光旗下的嘉宝物业在全国多个城市构建了十大“嘉菜园”的蔬菜基地,超50家生鲜供应链,能够基本保证业主的日常采购需求

业主只需要在相关APP上下单即可购买,次日新鲜蔬菜送到家

针对一些APP上没有的物资,嘉宝物业还将帮助业主在各大超市采买生活物资,让业主哪怕是宅在家中,也可以无接触的购买到大部分生活所需

不知道各位感受到没有,蓝光通过对整个流程无接触式的思考,其实本质上就是在自己的小区内构建了一张大网,让每一个生活在小区里的人都能感受到史无前例的贴心和便捷
03
除了一些明面上的,对于很多人根本就不会关注的藏起来或是很隐蔽的地方,蓝光也依然没有放过
对于健康安全这个层面,很多人关注的比较多的是一些显性的部分,比如说像地漏这样的小设计,很多开发商是不会关注的,毕竟这个点太小了也太琐碎
最关键是的从外表看其实所有的地漏长的都是差不多的,但实际上,我们忽略了一点,就是地漏可能会传递一些病毒和不好的味道
蓝光的解决方案是尝试采用U型水封弯道+自封式地漏“双保险”设计,防止地漏反臭和病菌蔓延至室内

为了确保室内的空气质量达到最优,蓝光植入了室内环境监测系统,实时监测室内空气质量,并对手机等设备进行信息推送,实时预警,并联动新风系统进行自动消杀

所有的家居材料及设备的选用,也完全严格参照国际权威认证或国标相应认证
这样的高标准要求当然意味着更高的成本,但是对于蓝光而言,安全可靠,其实是基础的底线要求

很多细节真的很少会有开发商会去关注,很多开发商不是不愿意去做,而是真的很浪费时间,也真的很浪费成本
但蓝光不仅做了,在你想到和想不到的地方,都在发力,努力做到最好
04
所以,当我们反过头来再来看待蓝光一系列的行动和匠心打造的“蓝卫士”这样的产品体系时
会惊讶于“蓝卫士”所包含的4大安全防护体系和22项健康人居先锋理念,这些元素就这样有机的整合在一起的,从点到面构成了全面的创新

与此同时,还建立了完备的从户内到社区,安心舒适的 “生活体系”,让空间更加舒心,让生活充满趣味,让社区幸福温馨,让生活彻底安心
这么做的目的也很简单,就是为了让生存变为生活,让每一个选择蓝光的业主都能生活的更加美好
很多人会感慨为什么在疫情之下蓝光的落地速度会这么快,就好像是在突然之间,蓝光猛的发力了
世界上哪有这么多突如其来的奇迹和美好,其实在很早以前,蓝光就成立了独立的产品研究院,也一直在不断的沉淀不断的努力
所有的坚持所有的努力都在一个个项目中不断的沉淀和积累,所以当疫情来临之时,才会显得这么的从容
这需要足够的时间积淀,才能慢慢形成了自己的护城河
在高周转的地产世界中,持续的务实看起来可能格格不入,但也因此显得可怕和不可阻挡
所谓的品牌形成,或许也就是这么一个逻辑
以上为正文,来自R先生