电机安装盒产品图见图1,产品最大外形尺寸为209.48 mm x168.40 mm x138. 15mm,塑件平均胶位厚度2.40mm,塑件材料为防火ABS,缩水率为1.005,塑件质量为235.70克。塑件技术要求为不得存在披峰、注塑不满、流纹、气孔、翘曲变形、银纹、冷料、喷射纹等各种缺陷。


从图1可以看出,塑件结构较为复杂,在外形有3处倒扣,内部也存在一处倒扣。模具设计的难点是此四处滑块的设计。模具设计的另外一些要求是模具寿命为80万次,注塑循环周期为40秒,注塑机吨位为450吨。模具设计要求见图3模具设计式样书。
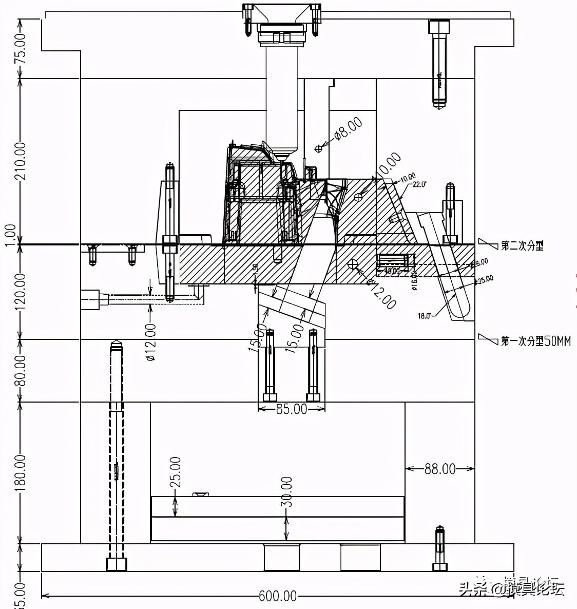
塑件尺寸较大,又有四处滑块抽芯,模具设计型腔排位为1出1.模胚为非标模胚4550,塑料材料为ABS防火料,对模仁有腐蚀性,因此前后模仁采用2316钢材并热处理。前后模仁四角采用虎口定位,以提高合模精度。前后模仁尺寸为250x290,由于其尺寸较大,高度较高,前后模仁与模胚的精框配合要求高,配框的难度大,因此,采用模仁边缘的挤紧块定位,将挤紧块设计在远离模胚基准角的两个边。
由于模具尺寸较大,前后模的合模力也很大,但是前模仁的型腔较深,前后模仁接触面积较小,仅为塑件型腔的边缘接触,长期的注塑生产中会使分型面压垮,从而阻塞分型面的排气槽,引发注塑不良。为了解决此问题,在模胚的四角分别设计平衡块,平衡块安装在动模B板上,见模具设计图2.
模具的浇注系统采用单个热嘴,在塑件顶部点浇口一点进胶。浇注系统进胶方式影响注塑周期。热流道和热嘴进胶能明显加快熔融塑料充填过程,有效缩短注塑周期。

外侧倒扣采用动模滑块抽芯,由斜导柱驱动。由于A板厚度很大,斜导柱采用压板固定在A板上。内侧倒扣采用T槽驱动内滑块脱出倒扣,开模时,首先推板弹起50,在T槽作用下,内滑块斜向移动脱出倒扣。第二次分形时,分型面打开,动模滑块完成外侧倒扣脱模。
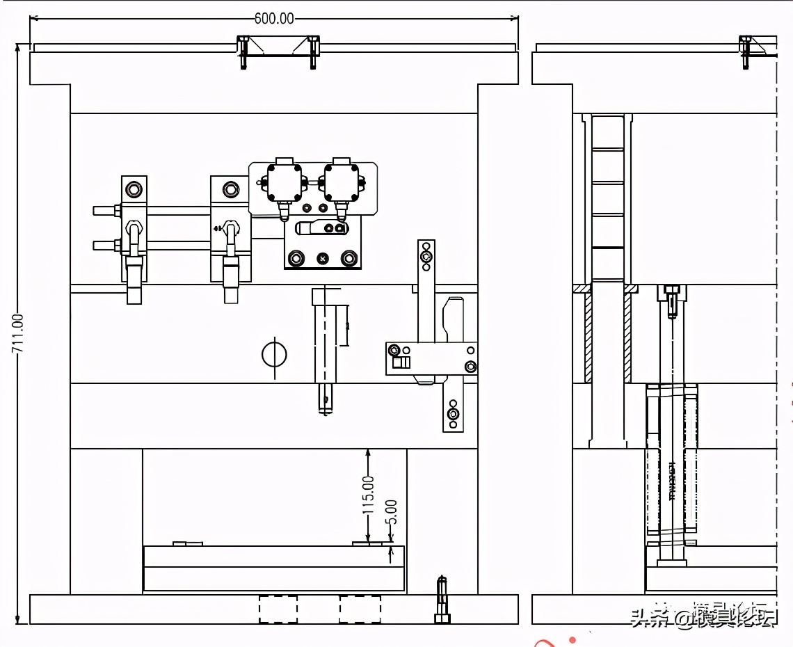
定模两处倒扣由于定模模板之间没有相互运动的模板,难以设计定模滑块抽芯。因此采用了油缸垂直设计在动模的抽芯机构。开模前,油缸带动铲机,再通过铲机带动滑块完成定模抽芯。设计时需要注意,铲机必须设计在导向套内,以使抽芯运动平稳。
塑件的冷却采用环绕直通运水冷却。动定模和动模大滑块均设计了相应的冷却回路。
塑件的顶出采用司筒和顶针顶出。

图1 电机安装盒产品图






图2 电机安装盒模具图




图3 电机安装盒模具设计要求


图3 电机安装盒模具设计式样书
模具论坛版权所有