
有人喜欢南方女子的婉约,
有人欣赏北方姑娘的直爽。
本次测评的项目为【吴中姑苏院】
本期测评项目看点
1、苏式园林风格
2、吉大慧谷学校附近

《居家好房多》选房价值体系满分100分。
吴中姑苏院

位置

▍地点(5分满):4分
项目位于长春市西南方向,在四环以外,属高新南板块。距离吉大慧谷约600米,步行约6分钟。
▍区域价值(5分满):4分




左右滑动查看更多
长春高新区是吉林省第一个国家级开发区,是第17个国家级新区,是长春市西南部的重要门户。

配套
学校是最大的优势

▍学校(10分满):8.5分
吉大慧谷规划用地面积逾6万㎡,建筑用地面积逾4万㎡。共设54个教学班级,小学36个班,中学18个班。慧谷学校拥有强大的师资队伍,有40%的教师来自吉大附中老校区。吉大慧谷是高新南较早投入使用的、教学经验相对丰富的一所学校。

吴中姑苏院距离吉大慧谷约600米,步行大概6分钟,一首歌的时间。

▍公共交通(10分满):6分
项目距离地铁5号线(待建)直线距离约1.5公里,步行约20分钟,这个距离说近不近说远不远,未来也可搭乘公交或共享单车到地铁站。
附近公交有164路、205路、高新1号线、高新2号线、高新3号线、高新4号线等。
▍商业(5分满):4分
距离项目地较近的商业有:
1、欧亚商超,距离项目地2.4公里,车程约7分钟。

2、居然之家mall,在建中,距离项目地2.3公里,车程约6分钟。

3、汇购生活购物广场(即将开业),距离项目地1.3公里,步行约15分钟。

4、周边恒大雅苑、东地天澜等入住小区,底商非常丰富。


▍公园(5分满):4分
1、项目富裕河公园约500米,步行约5分钟;
2、项目距龙栖湖公园步行约1.5公里;

▍医院(5分满):3分
1、项目附近有省二人民医院(内部装修中),距离2.6公里左右,车程约7分钟。

硬指标
▍硬指标总得分(15分满):11.5分
园区面积:约39476㎡
户数:9栋,共434户
容积率:1.5(7栋洋房 2栋小高)
车位比:1:1.5
举架:约3米(售楼处释放)
绿化率:31%
物业费:3.5元
交房时间:2021年7月左右(售楼处释放)
总结: 小区面积不大,只有434户;以洋房为主,容积率低,居住舒适度较高,车位够用,交房时间不算晚,绿化率不高,但从沙盘来看景观比较丰富。

品质
▍品牌价值(10分满):7分
江苏的开发商,连续16年获得苏州市房地产20强;在长春开发过吴中印象、吴中家天下、吴中北国之春等刚需项目,后在绿园区开发过吴中天玺,之后又在高新南开发过吴中的高端项目吴中桃花源,姑苏院是桃花源之后的吴中又一高端项目。

(吴中姑苏院效果图)
▍口碑&物业(5分满):3.5分
从吴中老业主的口中得到,口碑、物业平平,但是姑苏院是吴中的高端项目,物业相比其刚需项目一定会有所提升。
▍建筑品质(5分满):3.5分
溯源姑苏历史文化,以吴门四家(是指四位著名的明代画家:沈周、文徵明、唐寅和仇英)的画作为灵感,打造“一轴三区十景”,景观及品质可以参考吴中桃花源。


(吴中桃花源示范区)
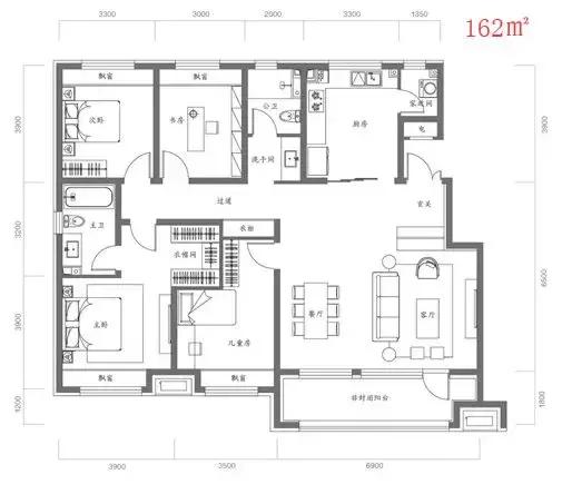
▍户型(5分满):3.5分
小高有:108/129㎡,
洋房有:129/142/162/366㎡。
小高最小面积108平三室两厅一卫,餐厅厨房非常舒服,卧室的布局非常适合老人带孩子一起住,过道有些浪费空间,如果能额外设计一个衣帽间就更好了;

洋房最小面积129平四室两厅两卫,空间更紧凑,主卧带套内卫生间,卫生间干湿分离,入门有玄关设计;

看看更多户型:





左右滑动查看更多
未来升值
▍未来前景(7.5分满):6.5分
目前项目周边已经成熟,地铁5号线是一个可以期待的点,还有在建的居然之家的商业、省二医院等,未来前景可期。

▍升值(7.5分满):6分
吴中姑苏院是吉大慧谷周边少有的洋房社区。
吴中姑苏院是吉大慧谷周边少有的洋房社区。

总共100分,吴中姑苏院最终得分:75分

小沙
购买建议:
1、如果你要在吉大慧谷周边买新房,而且必须是洋房,这恐怕是你唯一选择。
2、吴中姑苏院可能会是这片最贵的房子,价格可能在1万4+。
3、小区入门门槛较高,最小面积108平3室起,业主圈层相对纯粹。
4、苏氏园林风格,喜欢的特别喜欢,不喜欢的就是不喜欢。

(吴中姑苏院效果图)