时间永远流逝,而建筑却能拥有短暂的“永恒”。
杰出的建筑师,一定了解人与建筑的关系,而设计了“央视大裤衩子楼”的建筑师,库哈斯,真是这样的建筑设计师。

▼被吹成神的设计师——Rem Koolhaas
其实,在中国,库哈斯似乎平平无奇。直到2004年,他设计了CCTV央视大裤衩子楼后,他的名声,才到了人尽皆知的地步。如今,他设计的建筑,已经遍布全球。

▼央视CCTV大裤衩子楼

▼而他30年前设计房子,如今被吹成神作,至今无人超越
而今天小编要和大家介绍的,就是库哈斯设计的一座老房子,这座老房子也是他屈指可数的私宅设计之一。
这栋造型前卫的房子,始建于1994年,1998年竣工。足够算得上是库哈斯,早期最重要的现代建筑作品之一。甚至凭借此宅,他斩获了1998年《New York Times》的最佳住宅。

▼占地500㎡的私宅,为何被称作神作?
这座形状奇异的老房子,是库哈斯在1994年动工,整整花费了4年才建好,房子有三层,改造了波尔多郊外的小山上。
足够俯瞰整个波多尔市,那么肯定有网友要质疑:这座房子,为何被吹成神作呢?请听小编细细道来。

▼私宅的主人,原本已经有了一座“城堡级”的豪宅
这座私宅的主人,原本是和妻儿一起居住在市区的“城堡级”豪宅里。有一天,他们突发奇想,要在城外的山上盖一座房子。
所以,距离市区5公里的这片土地,就随随便便的买下来了。

▼原本打算请世界级建筑大师,却遭遇车祸
而男主人准备计划,建造这座房子时,起初是打算找筱原一男、*东伊**丰雄等建筑大师。对富豪们来说,当时的库哈斯,名不见传。
但是谁都没料到,这位富豪突然遭遇了一场车祸,虽然死里逃生,他的余生都只能在轮椅上度过了。

▼两年后,整日在轮椅上度日的他,决定再次盖起这栋房子
在豪宅城堡里,生活了2年多的富豪,日常生活有诸多不便。于是,他想到了去市区外安度晚年。
最后,他找来了库哈斯,为房子做设计,并且只强调了亮点:①我有很多书,在家里看书一定要方便;②不要让轮椅,影响我的自由。

▼于是这座破天荒的房子,就此有了建造的契机
库哈斯,在接到这个设计要求后,绞尽了3天脑汁之后。一组破天荒的设计概念,由此诞生了。
他将地形条件和房主的生活习惯,融入到房屋设计之中,甚至于连轮椅都成为了房屋设计的一部分。

▼房屋设计概念图

▼30年前的全新房屋概念
在30年前的当时,库哈斯就提出了一种全系你的房屋概念,就是将三间房子,叠在一起。这让这座房子,在山坡上,犹如一个个方盒子,格外的醒目。

▼三层房子,每一层都是形状、大小各异的方形“盒子”,最底层的空地上,被为何成了一处花园庭院。

▼天马行空的建筑,建筑主体居然是悬空的
而这栋建筑的主体,是一个悬空的盒子,最上方设计了卧室,而下方设计了客厅,四周则围着玻璃墙。
这在30年前的建筑界来说,无疑是打破传统的建筑设计。

▼让人称奇道绝的底层房屋设计
而底层的房屋空间设计,更是让人瞠目结舌。库哈斯,利用了天然山体坡度,并且在地底挖出了一个个房间,有洗衣房、酒窖、储藏室等。
并且这些空间,向外的一面,由玻璃墙进行采光,形成了半开放的地下室。

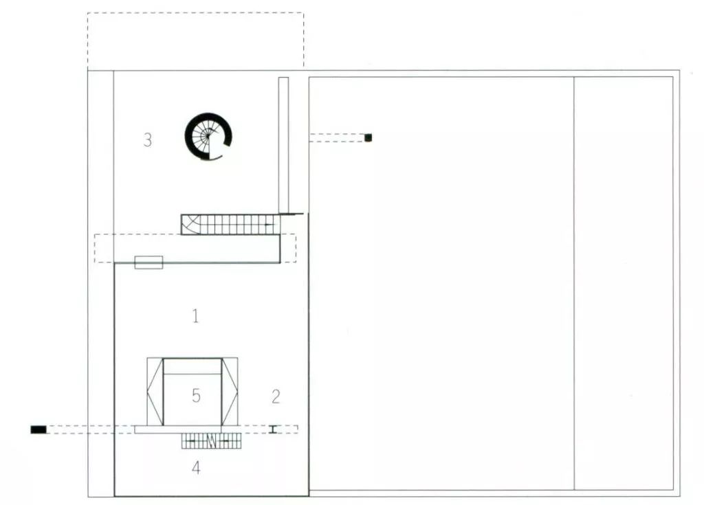
▼一层平面设计图

▼从山顶的小路,可以直接开车进入这栋房子的内院

▼中间一层的结构设计,堪称最有特点
和其他两层相比,中间的这一层,更像是一个透明的魔力盒。它的面积只有底层的三分之二大。
这样的错觉设计,让混凝土顶层,更像是一个悬浮在空中的盒子一样。而顶层仅有4根钢柱和4面玻璃墙制成,这样的承重,足够吗?答案当然是:不够。
那么库哈斯,是如何处理的呢?后面将会细细道来。

▲二层平面设计图
这一层的平面设计,除了客厅餐厅,还有露台,以及书房和电动升降平台设计。
前面有提到屋主的要求,他的藏书极多,特别爱看书,那么如何让一个坐在轮椅上的人,能够轻松拿到书架上的书呢?
库哈斯的脑洞,就在于这个“电动升降平台”,这个平台消除了障碍,却让房屋迎来了更为强烈的科幻感。

▼屋主坐轮椅,而轮椅这个状态,成为了设计的重点
库哈斯,将轮椅结合房屋设计,在房屋的中央做了一个3.5*3米的电动升降平台。

▼这部升降平台,让屋主,就算坐在轮椅上,也能让他和他的书桌,一起在地窖、厨房、以及卧室之间,一一穿梭。这对久坐轮椅,极为不便的屋主来说,简直就是一个福音。

▼就算屋主的书籍,真的多到需要摆满3层楼高的书架,但是也没问题,有了升降平台,他爱在哪里取书,就在哪里取书。

▼而且,这不仅仅只是一个升降台,更像是房主的活动书房和工作间,它是一间可以在房子里,自由移动的、没有墙壁的房间。


▼第三层空间设计
这一层的空间设计里,并没有对房间,进行严谨的划分。只是利用了简单的隔断墙和帘子,分隔了主人房和儿童房。
这一层的外墙,是混凝土结构,并且在两侧加入了两个不规则的圆形小窗洞,保证了采光,又满足了空间私密性。


▼三层平面设计图

▼整个房屋的立面设计图

▼建筑上高低不一的“圆洞”
从庭院里看建筑,可以看到建筑外墙,拥有许多“圆洞”,他们高低不一,但其实这正是一项十分有趣的设计。
这些圆洞,其实是小窗户。它依照人的站立高度、坐姿高度、躺姿高度进行设计,等于说,不管是坐在还是站着,甚至是躺着,都有充足的自然光线。

▲小小的圆洞,却拥有了大大的作用
这些圆洞,既可以成为引导采光的动态动线,让整个房屋,拥有动态的全景视野,更让房屋,足够通风,玻璃盖子的自动开启设计,极为便利。

▼相比建筑设计,装修设计则显得简约
室内设计上,库哈斯仍然沿袭了当时的现代简洁风格。

▼这座巨大的圆形转动窗,可以通过手摇式的把手,转动开启,简直就像是打开宝藏一般。

▼打开后的巨大圆洞,成为了卧室里的自然采光
卧室里用窗帘来当遮光布,这样来看,整个建筑设计,搭配卧室设计,简直太让人觉得有趣了,难以想象,这是30年前的设计。


▼两种窗纱,各有千秋。比如这一层带有反光涂层的窗帘,保温和隔热性功能很棒。

▼整栋房子里,拥有两个楼梯设计。一个专为儿童设计的螺旋楼梯,可以直接栋一楼到达顶楼的儿童房。而一二层之间,也有楼梯连接。


▼一二层之间的楼梯,连接了客厅和储藏室。

▼30年前的房屋结构,至今看来,依旧壮观
在库哈斯的反复推敲和思考之后,整个房屋的结构设计概念,就此付出水乡。红色是钢构,顶层是悬空混凝土墙。
而中层,并不是完全封闭的,侧面和山坡相连接,向内凹进去,形成了一个天然露台,可以说是物尽其用。

▼一个特别粗的金属立柱,贯穿了底层和顶层,被充当成支撑房顶的横梁。

▼而螺旋楼梯,就藏在这个金属画栋们里,可以说是童趣满满了。

▼而房屋的承重问题,也被库哈斯完美的解决了
因为光靠4根支柱和玻璃墙,完全没办法完成承重。库哈斯另辟蹊径,在地底埋设配种,并且通过钢索牵拉屋顶的横梁。
这一举措,正是利用了杠杆原理,支撑起了U形的混凝土墙体,可以说是脑洞大开了!

▼夜晚下的豪宅,显得极为宁静和美好。

▼为何被称为神作?可能是因为这座房子,是一个里程碑
其实在成为建筑师之前,库哈斯只是一名记者。而波尔多市的这座老房子,就像是一个里程碑,它反映了超现实主义,对库哈斯的影响。
所以这座为“活在轮椅上的男人”而设计的理想之宅,才被称为神作。

那么,你觉得30年前的这座豪宅,是否称得上是神作呢?欢迎指鉴