
幸福是把灵魂安放在最适当的位置
———— 亚里士多德
毗邻新上海文化的黄浦滨江地段,紧挨旧上海记忆的石库门,西康路自诞生起便与上海历史紧密融合在一起,而祥源西康989也在这样的氛围中应运而生。
家,可以是一本用爱编写的书,让人阅读一生,也可以是一首悦耳的曲子,让人倾入温柔,每个人对"家"的诠释都不一样,本期分享的便是来自于西康989号的两个不同的“家”。
1
独具一格的艺术混搭住宅,玩出高级感

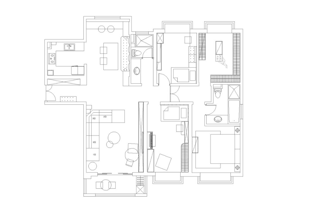
平面布局图
抛开千篇一律,女主人希望自己的家不仅仅要舒适艺术,更需要独一无二,设计师在满足业主功能需求外,在硬装和软装上也增加了个性化创意的小心思。




基于原交付标准,将金属元素融入到新的设计中,原墙纸全部拆除,替换成自然的肌理感材质,花色偏自然丛林感、沙发背景的墙纸则使用了麻绳质感,墙面错落有致,凸显层次感。
餐边柜、卡座和电视柜,搭配手绘墙纸,整个餐厅更像是艺术景观,餐厅灯选择了极具设计感的C&S。


硬装上所有定制柜体皆融入墙内,原交付的踢脚线延长至柜体,视觉上产生入墙感,辅助的小线条,让空间看起来井然有序,主次分明。



雅致肌理感强的罗奇堡麻将沙发,满足了三代人的使用习惯,既可以常规社交,也可以铺开慵懒的休闲放松。
独一无二的定制吧台、透明罗奇堡小书桌与吧台相呼应,传承、cc-tapis 客厅异形地毯,包裹着书桌和沙发,artemide 新款“8”落地灯,Lago 茶几,做旧的木制纹理,底部是透明的钢化玻璃,搭配 meridiani 的墩子和低矮的扶手椅,这里流露着动人的艺术气息。





原四室两厅的户型调整为三室两厅,其中一个房间改为了与主卧相连的独立衣帽间,走廊的长度进行了压缩,以增加主卧面积,重新规划后的主卧空间,是具有仪式感兼强收纳功能的大套间。
原主卧的狭小衣帽间重新打通,布局至女儿房,增加了其可活动范围,以女儿喜欢的雅致粉色为主色调,融入丛林元素的墙纸,营造了一个活力温馨的舒适空间。
2
95后女孩的法式清新住宅,精致仪式感

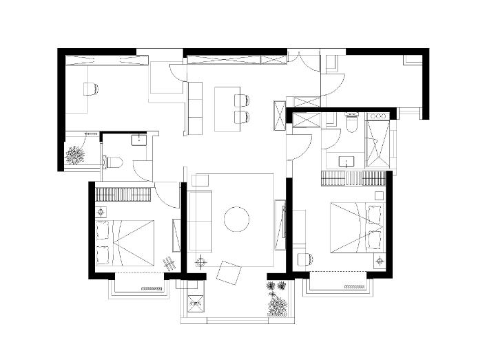
平面布局图

95后精致女孩的住宅是怎样的?原奢华金属感强的交付标准,显然不太符合本案业主的喜好,设计师基于原地砖颜色进行整体搭配,将所有护墙板、金属线条、金属踢脚线等重元素全部拆除,调整为业主喜欢的半腰墙设计,深浅米灰色的组合,所有线条及门框均做了小叠级收边处理,营造了法式清新的精致氛围。

原先功能性的玄关柜,拆除重做,新入户增加了弧形玄关景,既可收纳也可欣赏,树叶墙纸的融入,扑面而来的是绿意清新感,自然舒适。






客餐厅的部分门套拆除,增加了餐边柜,兼具收纳功能与美观度,餐厅法式线条与树叶形墙纸,打造了唯美的温馨感。



业主喜欢的绿色,设计师在玄关柜、灯、抱枕等处作为点缀融入。日落灯,放置沙发旁,灯光有投射在树叶上的感觉,颇具观赏趣味。


阳台打通后,扩大了整个客厅,阳台地砖局部拆除,换成了户外的艺术小花砖,业主可以在此处休闲的阅读,也可慵懒的享受阳光浴。阳台处,上演着偏安一隅,偷得浮生半日闲的慢时光。
西康路989号,既可俯瞰外滩灯光,感知世界知名江景,亦可探寻名人故居,体会民国岁月的传承印记,两套不同风格的住宅设计,你更喜欢哪一套?
项目情况|
项目地址丨Address: 上海普陀
面积丨Area: 178㎡/120㎡
设计单位丨Company:上海示觉室内设计事务所
服务方式丨Service:硬装+软装全案设计服务,主材+软装代购及落地服务
设计团队丨 Team:尹琳娟 、沈佳滢
往期精彩








END
尊重住者生活文化需求
诠释对生活美学之独特理解
示觉设计以心造家