

本期案例是来自温州·永嘉县165㎡的自建房改造案例,屋主的诉求是打造一个简约精致、干净素雅又带着烟火气息,互动性强又保持各自独立空间的温馨小家。
一起在吧台分享美食、一起窝在沙发看电视, 女主人梳妆打扮的私密小空间,男主人喜交友爱喝茶,一个视野通透、悠然自得的独立茶室空间 ,空间层次和生活气息更丰富,整个空间高级感满满。

项目地址: 温州市永嘉县
项目面积: 165㎡
项目风格: 现代
项目总造价: 50w个性化定制



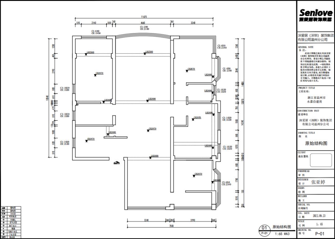
原始户型: (翻新前)
1、入户墙面遮挡,光线太暗。
2、主卧梁位太低,正对床头,比较压抑。
3、餐厅区域太大,家里常住人口不多。
4、入户没有鞋柜,换鞋不方便。

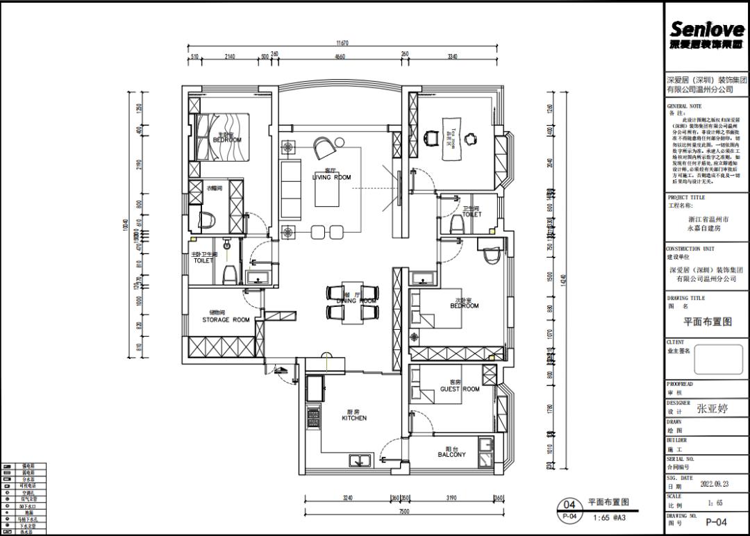
改造后:
1、入户实墙拆除,做L型玄关鞋柜一体,利用玻璃隔断,增加入户采光。
2、主卧弧形吊顶,优化梁位。
3、餐厅增加吧台区域,家里正常两人居住时可以在吧台就餐。
4、主卧增加衣帽间,增大衣物的储物量,玻璃推拉门设计保证了空间的通透感。
5、家里增加储物间及茶室,增加会客区。

客厅,过道,玄关,这些区域属于动态区域。
进门处增加了玄关柜,可以很好的避免进门直接看到客厅的尴尬。

客餐厅简约式设计,使视觉效果上更加有延伸感,视野开阔;色彩运用上采用了大面积的咖色实木格栅及柜体,电视格栅+岩板背景墙+岩板地台,营造出舒适明亮的视觉效果。




餐厅这一块使用了折叠餐桌,方便后期人口增加时的生活场景。色调以暖色为主,通过酒柜和灯及软装配合来跟客餐厅整个空间融为一体。




1、整个房子原户型是五个房间,经过了解业主需求进行空间充分利用,最后方案把进门处的房间改成储藏室,增加收纳空间,电视背景后的房间改为茶室,满足了男业主的会客需求。
2、主卧弱化梁位,利用衣帽间那边的窗户,增加梳妆台,满足了女业主对衣帽间的需求。女儿房选用感应悬浮床,大量衣柜,满足女儿的衣物储藏。



...


厨房做成L字形橱柜,厨房门拆到最大化做三联动移门,厨房整个空间的储物量最大化,然后墙砖采用灰色,橱柜采用上白下灰,效果体现一个反差色,质感层次感会更强。



窗户较多的空间设计为茶室,让家的功能区更为丰富,整个空间采光十分好,明亮又通透,靠墙部分做了满墙柜满足储物需求,可用于收纳茶具、茶叶、茶饼等。
无把手设计带来整洁利落的视觉效果,中层做操作台,方便摆放常用物品。



#深深有话说#

随着科技的变革和
人们对生活水平日趋提高和转变
整装定制服务逐渐流行
业主都希望装出来的新家
能满足自己及家人的喜好和习惯
让家更美更宜居
/
深爱居,全屋甄选,一家搞定!
满足你对“家”的N种幻想
拥有实景样板间&超多家装案例库
欢迎点击下方图片报名免费领取


戳下方小程序一键报名了解最新活动



深爱居装饰集团温州店
公司地址:
温州市鹿城区双屿街道鞋都大道235号
5050购物中心6层