【室内设计胶囊】
平面布局是室内设计的第一步,也是最重要的一步。平面布局关联着室内空间的六个面,只有当六面保持着整体性,连贯性,通透性;只有当室内轮廓线条与外界的环境相适应;只有当室内的各个空间的颜色相互协调,又与当时的环境相呼应时,我们才能够更好的表达出自己的设计理念。
平面布局绝不是简单的家具摆放,它是对用户需求了解后,结合功能分区进行的整体布局,在做平面布局时,至少要考虑到以下五点:空间、采光、通风、动线、功能。

详细了解业主需求,进行初步功能分区
拿到一个空间,在完成基本测绘、外环境考察后,需要详尽的了解业主需求,从家装来说,需要几房,常住人口情况,厨房空间设备的要求,储物的要求,风格的定位,色彩的偏好等等,大致构成一个基础框架,我们根据基础框架划定分区;家装因需考虑承重结构,需在此基础上进行功能的优化,动静相宜。


常规的住宅平层户型,需要考虑的功能分区主要有:客厅、餐厅、厨房、卫生间、主卧、次卧、阳台、书房、儿童房等常规需求。
而在大平层或别墅空间,需要加入更多的功能分区:保姆房、棋牌室、酒窖、健身房、家庭影院、中西厨、多功能空间、阳光房、瑜伽室、车库、储物间、设备间、家庭图书馆、游戏室等等,去满足业主在居住环境中更多元的活动需求。
从逻辑上来讲形式永远要让位于功能,在功能性满足的情况下,做形式上的设计和考量,否则设计的再美观,居住体验差,都是一个失败的设计。

动线和平直度
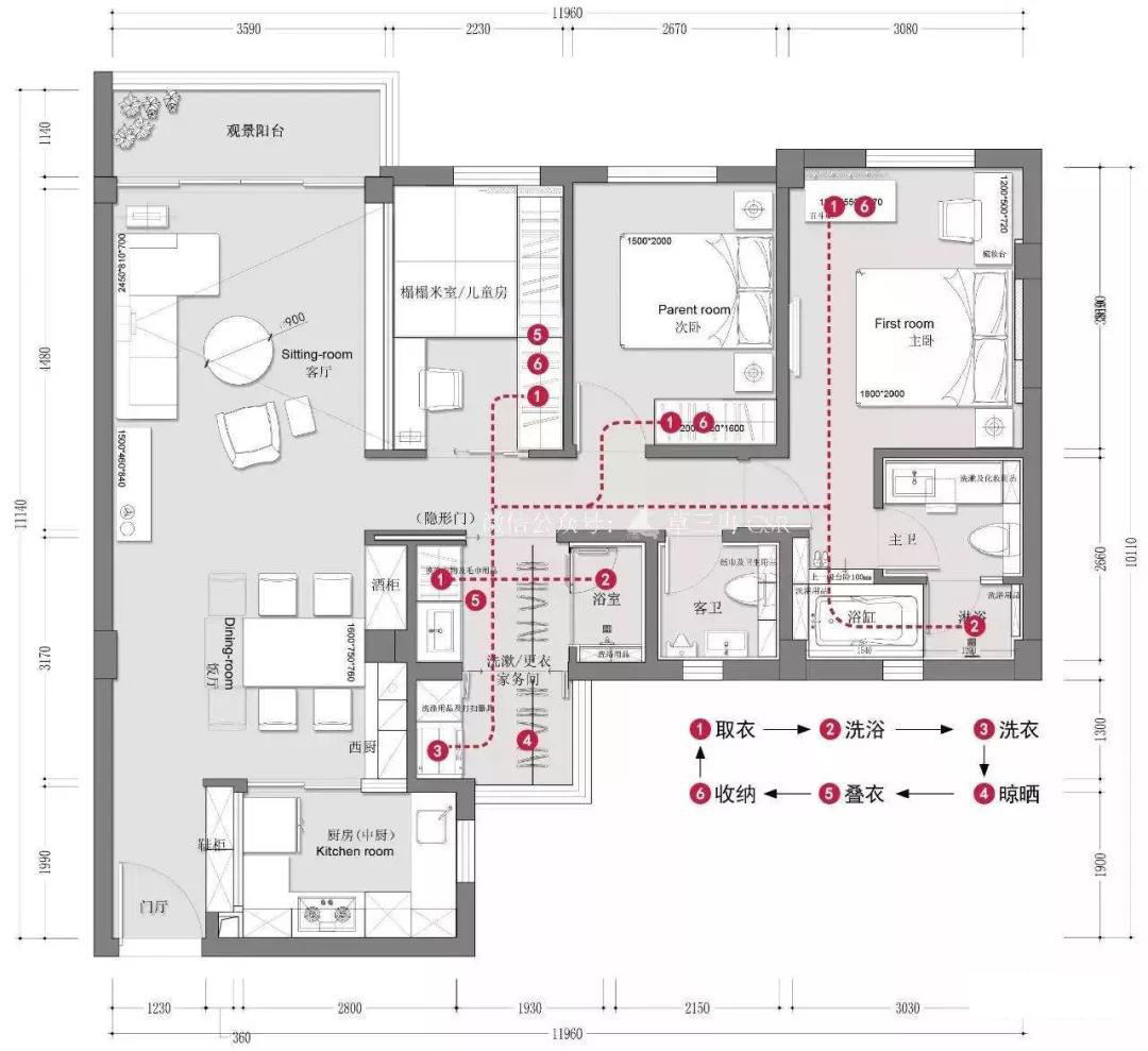
单就住宅空间,可以将动线大致分为三种:家人动线、家务动线、访客动线。总体设计原则是:三条线不交叉、划分不同功能区域、分割总体空间。1、家人动线家人动线顾名思义就是家庭中人们常移动的路线。其主要涉及到的空间有客厅、餐厅、书房、衣帽间、卧室、卫生间等私密性较强的空间。因此,其动线设计要点为便利、私密。常见的动线线路包括就餐动线、学习放松动线和入户活动动线三种。入户活动路线:大门→玄关→卫生间→厨房→客厅→卧室就餐路线:卫生间→厨房→餐厅→客厅学习放松路线:书房→阳台→卧室2、家务动线家务动线即在家务劳动中行成的移动线路,主要涉及厨房和洗晒衣物,其设计要点是顺序的合理安排,避免浪费时间和体力。厨房动线:储物柜→冰箱→水槽→炉具
洗晒衣物动线:洗衣→晾晒(直接相连)3、访客动线访客动线即访客移动形成的线路,主要涉及客厅、餐厅和卫生间。

这样的两种过道,显然第一种更为合适
商业空间的动线设计需要考虑到更多方面、车辆、人流、货物、消防等等,这里不做展开阐述。

面积分配比例
每个空间都有它自己常规的尺寸,这不仅仅是遵从于人机工程学,也是划分各个功能区域的依据,假如厨房比客厅大,衣帽间比卧室大,酒店大堂面积小于电梯厅,布局上看起来会不会很不舒服,除了部分两房要改四房的户型,实在想不到什么情况下,可以允许出现上述比例问题了。
1、玄关
玄关位于进门缓冲区,可用于摆放收纳家具,基本尺寸需能放下鞋柜,一般单独鞋柜的宽度不小于30厘米,鞋柜和衣帽柜合用宽度不低于50厘米。而大户型则有更多选择,不仅可以在临门处预留临时的收纳家具,还可以设置杂物空间。

2、客厅
客厅是整个家庭的活动中心,在形状方面以方正为宜,南向为首选。根据不同的户型标准,面积要求可以分为三类。
一是低适用标准:开间3.9米,进深4.5米,建筑面积17.55平方米,这类户型挑选家具和家电有限制,不能太大;
二是“舒适”尺寸:开间4.5米,进深5.1米、建筑面积22.95平方米,面积适中;
三是“高舒适”尺寸:开间5.1米,进深6.6米,建筑面积33.66平方米,客厅的搭配可以更加自由。

3、餐厅
在一些中小户型中,餐客相连的布局形式很常见,既能有效节省面积,又对客厅有拉伸的效果,这个时候客厅加餐厅的面积保持在30~40平米比较适宜。在面积较大的大户型,一般会设置独立餐厅,这种情况下要根据空间的具体面积和常住人口来做判断,一般保持在16平方左右会有更浓郁的就餐氛围。

4、卧室
卧室分为主卧和次卧,但都需要满足私密性的要求。主卧的面积应是卧室中较大的,次卧相对较小且可以根据不同需求设置为儿童房、老人房、客房、书房等。和客厅一样,主卧室面积也有三个标准。
低适用标准:开间3.3米,进深4.5米,能满足基本的舒适感;
舒适尺寸:开间3.6米,进深4.8米;
高舒适尺寸:开间3.9米,进深5.1米,会更为舒适。

5、厨房
厨房首先必须包括洗涤池、操作台、炉灶及排油烟机等设施,其次还需要满足储物的需求。看厨房面积的时候,首先要注意是否大于5平方米,这是基本的安全要求。其次根据家庭人口和空间布局来选择,一般来说,80~90平米的两居室,厨房保持在6平方米就可以基本满足4口之家的需求。大户型的厨房可以选择9平方米,需要注意厨房面积不宜过大,如果过大会压缩其他功能区的面积,造成空间面积浪费。
我国《住宅设计规范》中规定厨房较小面积为5平方米,小于这个数值,则室内的热量聚*会集**过大,人呆着会不舒服,短操作净长为2.1米,单排操作净宽不小于1.5米,双排操作不小于1.9米。这一数值的计算是以一个橱柜的宽度为0.5米,一个人的活动需要0.9米为基础的。实际上,1.9×2.1是一个限值,不能满足两个以上的人在厨房里走动,这样的厨房很难谈得上舒适。

6、卫生间
卫生间同厨房一样,有很多细节需要注意。一是位置要相对隐蔽,避免直对入户门,卧室门或者餐客厅。二是尽量保证明卫,有自然的通风和采光。三是适当的储物空间很有必要,以便分类存放各种生活用品。现在的卫生间一般包括浴室,普通的两居室卫生间一般宽在1.5—2.1米,长在1.2—1.8米左右较为合适。如果房屋面积本身够大,卫生间的面积也可以相对加大。

7、南北阳台
南阳台若作健身房之用,其进深应达到1.8m以上,开间随主卧室( 4.5m) ;若作花房和洗衣房,其进深宜为1.5m至1.8m,开间随次卧室( 3.3m或3.6m)。北阳台也称生活阳台,一般设在厨房的北面,无论“适用”还是“舒适”或“高舒适”型套型均应设置。其进深以1.3m 至 1.5m 为宜,开间随厨房( 2.1m、2.4m、2.7m、3.0m)。


通风和采光
室内的通风和采光也是必须要考虑在里的,现今的高层住宅,尤其是中间户,采光较差,如何去优化,有些户型在土建阶段存在一些不足,如何重新分割,以满足高平使用空间的采光和通风问题? 比如,下面这个案例中,原户型的厨房空间,光照就不够充足,设计师通过将入户阳台纳入厨房,增大了厨房空间,使厨房可以获得直接采光的同事,又扩大了客餐厅的面积。



平面布局方案设计手法
在最后,我们再说一说平面布局方案设计的三种手法:钻石切割法、九宫格、轴线法。
【轴线法】:由于轴线对空间具有统治性,能够将各种构成元素统一起来,形成一个丰富而又有序的整体。只要能够融入轴线统治的这个空间整体,就可以成为轴线的构成要素。
【九宫格】:前提考虑户型一系列限制后,我们要对原始态结构去划线做标记分析,可纵向、横向、斜向划线产生格子相连的形态,之后我们根据自己的方案构思,主题故事,展开功能任务表,之后将各自功能的性质以及特点围绕你的方案构思套入。

【钻石切割法】:大的想法是因为平面设计和钻石切割有很多共同之处.1,我们要像珍惜钻石一样,不能随意浪费空间资源;
2,开局要有很慎密的整体计划资源分配方式和比例;
3,中盘要熟练的运用已经长期锤炼成熟的成功定式;
4,收官要小心每一个细节,分毫必争。也许应该叫【围棋钻石分割法】,大概意思大家应该懂的。平面的过程就像钻石的切割打磨: 标记划线是钻石切割最重要的第一步。
做这项工作的人有着丰富的经验并精通加工技术,利用放大镜研究钻坯的结构,用印第安墨水标记下分割线,如果是大粒钻石,这项工作可能要历时数月。
最终目的是制造出最大、最干净、最完美的钻石,以尽可能高地体现钻石的价值。
劈割师将划好线的钻坯放在套架上,沿分割线削凹痕,再把方边刀放上,以手捶用合适的力敲击,石会沿纹理方向被劈成两半或多块。
劈开的钻石再打磨成型,研磨时要凭借经验,把握住石的基本形态,按设计要求做成圆形心形椭圆形揽尖形或其它特殊的形状。
起瓣抛光:在一个涂有钻石粉和润滑油的铸铁圆盘上,车磨出所有瓣面(刻面),使钻石发出诱人的光彩。
一颗精工切割的钻石所产生的瓣面,其位置和角度都是经精确计算的,不仅要先进的设备,更要切割师丰富的经验,高度责任心和全神贯注,才能释放钻石全部的灵彩。
