新的一年,新的开始,随着2018年中央一号文件的公布,乡村的发展前景也越来越好。农村户口真真是身价倍增!今年小编也发现越来越多的人选择在农村建房了。小编收到很多留言咨询一层自建房的。今天小编就专题分享一层的自建房给大家吧!
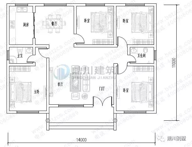
01编号: DC0371
层数: 一层
结构形式: 砖混结构
主体造价: 18-22万
开间: 14米
进深: 11米
占地面积: 158.6平方米
建筑面积: 188.6平方米


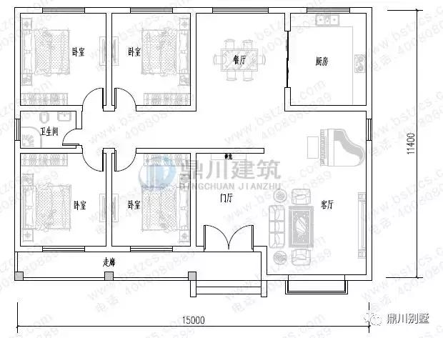
02编号: DC0369
层数: 一层
结构形式: 砖混结构
主体造价: 16-20万
开间: 15米
进深: 11.4米
占地面积: 177.39平方米
建筑面积: 217.03平方米


03编号: DC0350
层数: 一层带阁楼
结构形式: 砖混结构
主体造价: 18-22万
开间: 17.4米
进深: 12米
占地面积: 186.56平方米
建筑面积: 235.58平方米


04编号: DC0302
层数: 一层
结构形式: 砖混结构
主体造价: 25-30万
开间: 19.8米
进深: 13.8米
占地面积: 243.56平方米
建筑面积: 346.94平方米


05编号: DC0264
层数: 一层带阁楼
结构形式: 砖混结构
主体造价: 15-20万
开间: 13.8米
进深: 12米
占地面积: 138.15平方米
建筑面积: 202.41平方米


06编号: DC0249
层数: 一层带阁楼
结构形式: 砖混结构
主体造价: 14-18万
开间: 13.2米
进深: 12米
占地面积: 153.38平方米
建筑面积: 187.85平方米


07编号: DC0237
层数: 一层带阁楼
结构形式: 砖混结构
主体造价: 10-15万
开间: 16米
进深: 9.3米
占地面积: 145.38平方米
建筑面积: 267.99平方米


08编号: DC0220
层数: 一层
结构形式: 砖混结构
主体造价: 15-18万
开间: 16.2米
进深: 12.5米
占地面积: 183.25平方米
建筑面积: 236.72平方米


09编号: DC0189
层数: 一层带阁楼
结构形式: 砖混结构
主体造价: 16-20万
开间: 14.04米
进深: 11.34米
占地面积: 144.36平方米
建筑面积: 210.69平方米


10编号: DC0158
层数: 一层
结构形式: 砖混结构
主体造价: 9-12万
开间: 15.5米
进深: 9米
占地面积: 133.2平方米
建筑面积: 178.14平方米


11编号: DC0070
层数: 一层
结构形式: 砖混结构
主体造价: 10-13万
开间: 11.1米
进深: 9米
占地面积: 91.94平方米
建筑面积: 104.13平方米

