
我国的白酒历史渊 源 流长, 我国的白酒文化却发掘得远远不够,人们经常喝白酒,但大都是简单 的 喝,没有 更深刻的理解和总结 。许多人喝了一辈子酒,却不懂得其中的环境、文化和氛围,也没有这样的场所。
白酒品鉴空间的主要功能不是卖酒,而是 体验 ,通过体验,加大对 品牌文化 的传播和推广,从而增强对品牌白酒的营销力度。

“ 知酒堂 ”,一个充满诗意和想象的名称,这个由 DCDSAA 淀川设计 倾力打造的文化和产品展示体验馆,设计精巧、内容丰富。全维度酱酒文化体验中心,回廊 曲径通幽 ,酒文化、酒历史、酒器具,如 曲水流觞 。

DCDSAA & DCDSTUDIO是一家位于上海的建筑设计和室内设计事务所,成立于2017年,他们对空间的研究,对环境的考察,以及项目的设计和理念,或许能给我们更多的启示和感悟。

茅台酱酒体验馆的女主人是一位热爱生活、自然、萌宠和琴棋书画的爱好者,因此想要在闹市的商业街区内建造一间 安静 , 充满诗意 的展示空间,便于更好的让更多人了解酱酒品牌文化。

这间茅台白酒体验馆位于上海闵行区古美生活购物广场内,附近有 一大片茂密的绿色景观 , DCDSAA建筑设计事务所对当地环境进行了 多翻 的考察和研究,发现周边环境优美,最大的亮点是 闹中取静 ,非常适合酱酒文化传播,这些优势具有天然的空间价值。

茅台酱酒体验馆的入口分别有主东侧、次北侧,优先考虑空间的 层次及私密性 ,同时利用 木质格栅 去最大化吸引光线,设计师说这一切都是为了创造一个“ 放松的体验空间 ”,用 现代东方 的一些表现手法,去营造一个和谐安静的氛围。

暖木色调的空间,注入了 朴质、自然的气息 ,旁边的深蓝色电视背景遥相呼应,营造了现代的 宁静绚丽 氛围,空间挂有少许的装饰物,设计师认为最好的景观就是大自然,因此每一个空间都会留出足够的空间去 吸纳窗外的景色 。




餐厅在空间布局里面积不大不小,敞开的钢琴和餐桌相融合,在餐厅过道地面处设计了一排灯槽,展示酝酿白酒材料,增加了一种生活质朴气氛,整体色系上采用了 温润的木色 禅意的搭配,增加一种高级和艺术的氛围感,在用餐的同时去感受艺术之美,感悟生活之味。



茶室的设计依然延续大板,Y椅这两种元素。在设计处理上多了些宁静与舒适。但不管怎样,还是可以看出体现到空间的每一个细节,对于体验馆无论以哪一种形态呈现,设计的语言都是对产品的一种思考和回归。设计师希望它不只是一件 静止 的作品,而是一种 连接 ,有温度的连接。




▲ 立面图1

▲ 立面图2

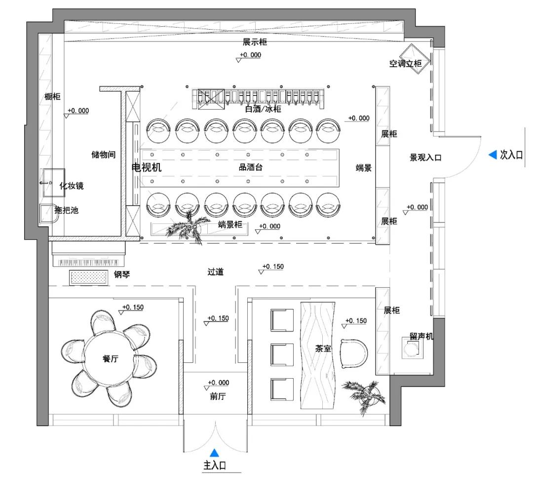
▲ 平面图
项目名称 | 上海城市“茅台知酒堂”
项目地点 | 中国·上海
项目性质 | 展示空间/零售/体验馆 建筑面积:93㎡
设计公司 | DCDSAA淀川建筑事务所
公司网站 | www.dcdstudio.cn
主创建筑师 | 王皓
建成时间 | 2020年10月
灯光顾问 | 驰加照明/孙斌
主要材料 | 不锈钢金属、超白玻、木饰面、实木百叶、稻草料、肌理漆
项目摄影 | 朱恩龙

事务所简介:DCDSAA & DCDSTUDIO 淀川设计咨询(上海)有限公司是专业性的设计机构,致力于建筑设计和室内设计研究及实施。对材料的研究与善用,是建筑、室内及景观设计创新的重要途径,从而平衡建筑、室内与自然的关系,也是对历史、文化、自然和光的尊重,更加现代化、多元化、商业化、对创新更加具有独特性和开放性。我们始终认为研究是设计的一种有力工具,因为每个项目都具备有其特有的背景。对规划运作、地点、功能和历史等进行细致深入的研究是创造严谨作品不可或缺的要素,在研究的基础上,一直致力于设计理论研究与实践,并提供全方位的专业原创设计服务

王皓,创意总监
主创介绍:王皓,创意总监,DCDSAA建筑事务所 / DCDSTUDIO设计事务所创始人兼总设计师,毕业于中国美术学院建筑系,王皓先生以“禅意东方,匠心美学”的设计品牌理念,创作出一套具有东方文化底蕴与现代国际内涵相结合的语境,完成并发表了诸多匠心独运的设计作品。并斩获众多的国际设计大奖,所创作品曾获德国红点REDDOT AWARD空间类红点奖、美国IDA HMENTION CERT全球室内空间类别荣誉大奖、德国 IFDESIGN AWARD 室内、建筑空间类设计奖、意大利 A' DESIGN AWARD 设计大奖、亚太地区设计师大赛最具创意设计奖、TOP100国际影响力华人设计师大奖、中国品牌设计最佳原创设计师等奖项。