号外!号外!你们心心念念的福利来了~
更多室内设计学习文章,资料,教程,软件,插件,方案,施工工艺材料等可以关注私信小编,不懂的地方,欢迎大家留意交流
- 免费分享 -
以下案例为这套素材主要是——2021最新800种平面方案表现,大师设计思维与手法
如果你喜欢请点赞转发让更多想成为室内设计师的新人助理设计师也能看到
谢谢!希望我们能走的更远
【福利在文章最后】 千万不要错过!!!
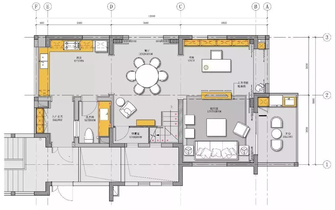
在整套方案图纸中,平面图的重要性,不用我多说,相信每位设计师都知道。
特别是在前期方案汇报的时候,还没涉及到一些技术性落地环节,我们通常会在汇报文本里放置彩色平面图, 一套高逼格的彩平图能够为你的方案加分不少。。




我可以做成这样的基础版彩平图

也可以做成这样的通用的彩平图

还可以做成这样核心的彩平图

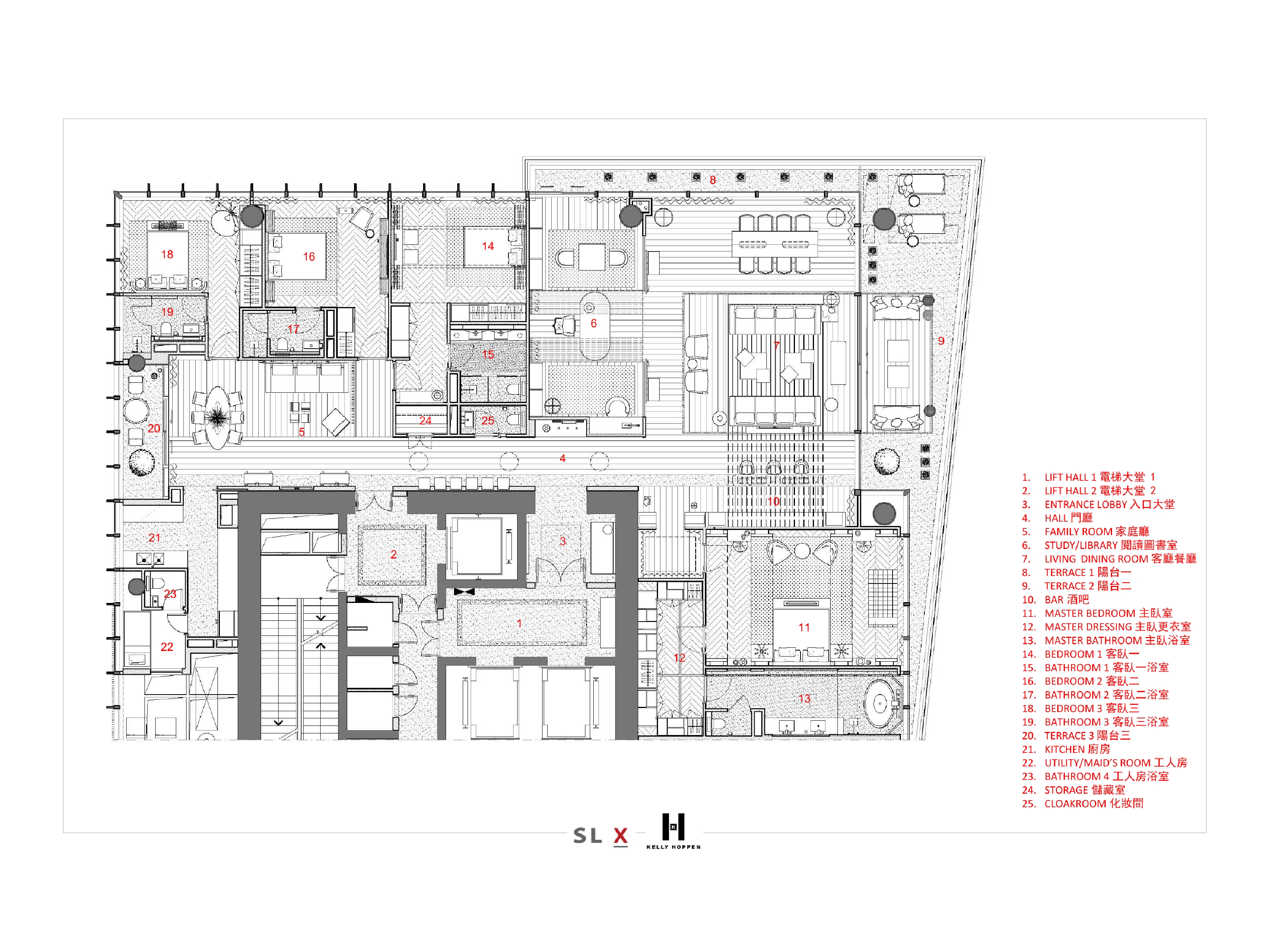
咱们还可以再来点投影效果

当然
掌握了技巧
其他类型平面图
我们也是可以添加阴影的

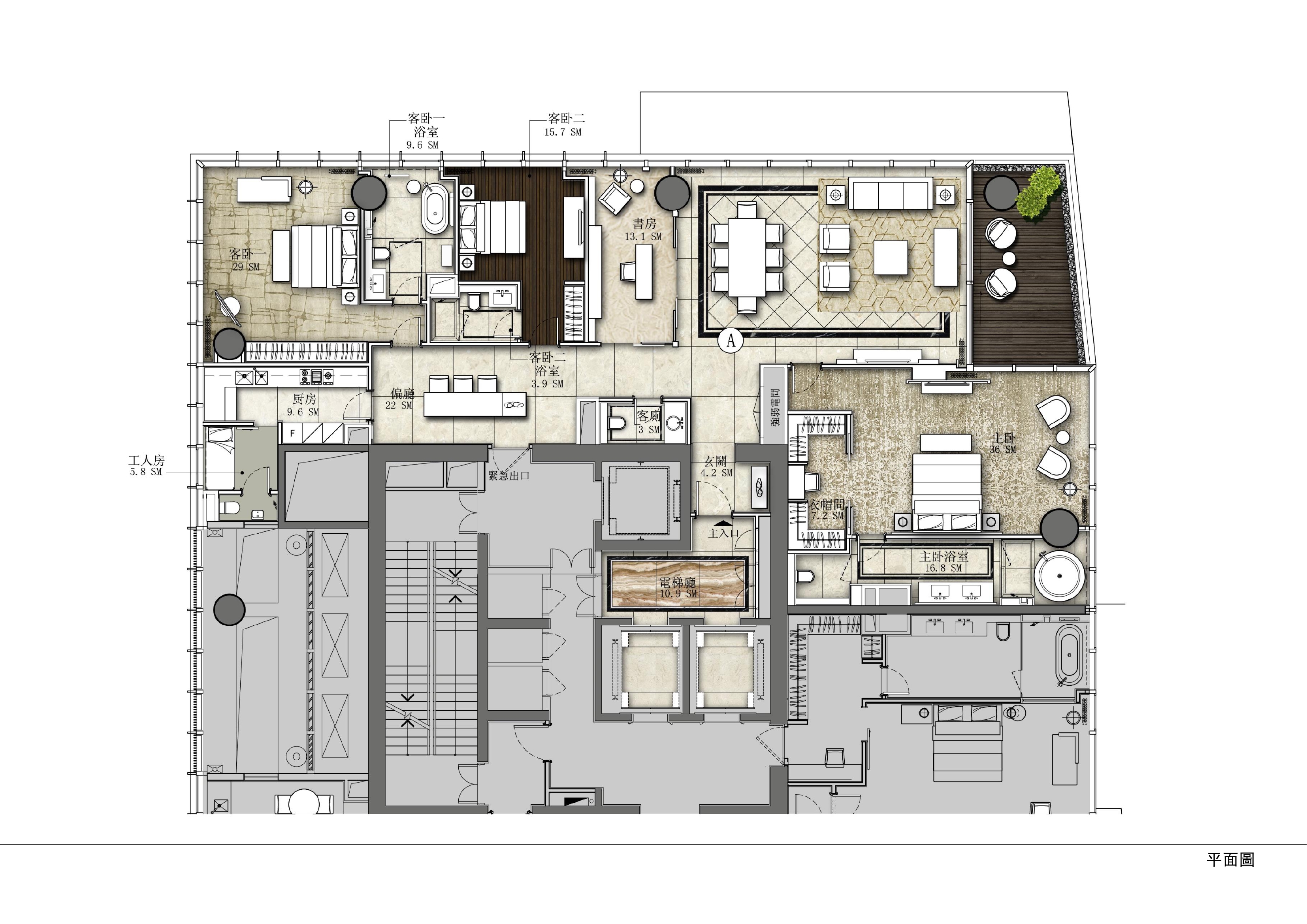
你希望做出你自己的风格
我们还可以做成这种手绘表现风格

800套大师平面方案表现手法套路





















