你能想到的共享经济是什么?
小黄车、充电宝、滴滴、Airbnb……
不管是什么,带给我们便利的同时,问题接踵而来:滴滴安全问题,小黄车押金难退……
就连Airbnb也不可避免。熟悉Airbnb的业主和投资者们也知道,很多国家是不允许个人用住宅进行短租的,中国、日本如此,泰国也是如此。换句话说,个人在泰国经营Airbnb做短租,一直处于法律的灰色地带。
然而在一些租金回报率高、游客人流量大的地方,如泰国、日本,Airbnb是很受欢迎的。
就拿泰国来说,房价不太高,买了一套小公寓之后,装修一番,把房源挂在Airbnb上面,便可以租给世界各地的游客,变身国际房东。
这种方式成本较低、回报率高,我也发现不少客户在泰国经营着Airbnb、Booking,而且说实话,做的风生水起。

Airbnb在泰国落地7年之久。2015年时,曼谷Banglamphu区的民宿在Airbnb网站上的受欢迎程度世界排名第二,从那时起,曼谷的民宿发展迅速,可供出租的公寓、别墅的数量直线上升。
2017年,曼谷 Huai Khwang 区的民宿受欢迎程度排名全球第11位,民宿数量一年中增长了218%。据《曼谷邮报》报道,泰国Airbnb经营者在2017-2018年12个月内为120多万名游客提服务。
目前泰国有430多万家Airbnb民宿。根据今年6月份发布的数据,Airbnb的房东在2018年对泰国产生了超过338亿铢的直接经济影响。
尽管现行的泰国法律是不允许业主在Airbnb日租自己的房子,尽管以前泰国对Airbnb“态度不友好”,但也不能阻碍这个新潮的APP在泰国盛行。
随着Airbnb在泰国迅猛发展,未来这将是旅游的主流方式。泰国政府意识到,不能单纯的禁止,政策法律也需要与时俱进。

7月,泰国新政府组建完毕。前几日,新上任的泰国旅游和体育部长Pipat Ratchakitprakan在上任第一天接受当地媒体采访时承诺,发展旅游业,支持泰国的短期住宿,这两项将是未来的工作重点。
而Airbnb东南亚公共政策主管Mich Goh也表示:“越来越多的泰国和海外游客选择入住Airbnb等短期住宿,Airbnb准备在未来几个月与政府合作,为泰国的短期住宿制定清晰、创新的规则。”
Airbnb在泰国有望合法化!
相比近期泰铢的强势升值,你可能认为错过了投资泰国房产的最好时机,其实并非如此。在如今的趋势下,公寓日租等短租有望合法运营,未来你的公寓将进入一个更加安全、更加规范、更加有价值的投资市场,既能保证你的收入,也能让你的收益更高!
拥有S101,拥有泰国4.0
牵手不曾有过的机遇
与曼谷未来可期的经济飞跃同步
遇见所需与惊喜,与Bangkok一同发展与收获

项目名称:THE PRIVACY S101(普夏S101)
项目区域:素坤逸路 101 巷,距离 BTS Punnawithi 450米
占地面积:3.1莱(4806平方米)
建筑类型:两栋8层
套 数:394套
室内净高:2.5米
层 数:A栋8层;B栋8层
交房时间:2020年第四季度
物 业 费:57泰铢/平/月
维修基金:500泰铢/平
户 型:26-30平米一房
35平米两房
52.5-56.5平米的合并户型
单 价:10.7万泰铢/平米起
总 价:279万泰铢起
公共设施 :大堂休息区、水瀑放松空间、共享创意办公区、泳池、儿童泳池、逆流健身泳池、健身房、瑜伽、空中瑜伽、空中花园、空中休息区、空中慢跑跑道
1.项目区位
素坤逸路又名“泰国三号公路”,它是泰国的四条主要公路之一,由首都曼谷向东南部延伸。毫不夸张这里就像是纽约曼哈 顿、北京长安街、香港的中环。
素坤逸路以第五任公路部长官PhraPisan Sukhumvit来命名。曼谷段拥有着泰国最优质的城市资源和配套,是当今曼谷最为繁华的商业大街,全线贯穿轻轨,连通多个高级办公区及一线商圈。

而普夏 S101 正是处于曼谷东南亚最大数码创新园区核心位置 Punnawithi 区域内。并且是承前启后的重要连接的中断位置PUNNAWITHI站,接-承曼谷的繁华商业前段的扩建发展,接-启泰国4.0新经济时代发展的后段,拥有繁华的现在,也拥有触手可及的未来!
2.项目周边配套
周边交通







周边写字楼

周边商场
◆ 7-11全天候便利店
距离项目80米、100米、150米、250米均有

◆ Lotus莲花超市快捷店
距离项目100米

如此密集的便利店分布,可以看出这块区域内生活非常便利,人流量很大,消费需求非常足
◆ 大型超市Tops Supermarket
距离项目700米

◆ The Third Place商业综合中心
距离项目1公里

占地43公顷,价值300亿泰铢的综合区域,占地40,000平方米的商业区,使年轻人生活有更多抉择。
◆ Jim Thompson直销奥特莱斯店
BTS 1个站到达

◆ 建设中的 Bangkok Mall
BTS 1个站到达

泰国最大的商业集团The Mall开发,泰国最大乃至东南亚最大的商业综合体,位于素坤逸大道, 靠近bangna十字路口,将于2020年落成。
◆ Century Movie Plaza Onnut综合商业体
BTS 2个站到达

Ekmahakij Co.Ltd公司建造的位于ON NUT天铁旁的综合大楼,涵盖了公寓住宅, 商业购物以及电影院等项目。
◆ BigC大型超市
BTS 2个站到达

◆BITEC国际会议展览中心
BTS 2个站到达

◆ he Phyll时尚社区商业中心
BTS 3个站到达

位于Sukhumvit 54的开放式休闲广场, 有开放式区域以及室内区域以及地下 半开放式区域,占地面积5200平米, 聚集了众多不同品牌的商家。
◆ IKEA宜家及Mega Bangna(亚洲最大商场)
车程15分钟到达

周边教育
Anglo Singapore International School
新月新加披国际学校(距离项目500米)

新月新加披国际学校,是英泰中三语学校,课程构架与新加坡课程构架和剑桥(国际普通初级中学毕业证书)高度统一。
学校位于BTS Punawithi站旁边,面对幼儿园到高三学生招生。
【每年学费】幼儿园297,000~389,100泰株;小学:411,900 – 505,200泰株;中学:565,500 – 683,000 泰株
Bangkok Prep International School
(BTS 2个站到达)


遵循英格兰国家课程,学校的考试中心是剑桥大学获得IGCSE和A-levels认证的考试中心,招生幼儿园到高三。
【每年学费】
幼儿园365,000~385,000泰铢
小学400,000~415,000泰铢
St. Andrews International School
(BTS 3个站到达)

是Cognita的一份子,学校标准课程结合了英国国家课程标准和IB课程的标准、框架和实践。
【每年学费】
幼儿园175,000~290,000泰铢
小学450,000泰铢
Berkeley International School
(距离项目3公里)

曼谷伯克利国际学校隶属于美式AP课程体系,纯正的美式课程设置,都真正兑现 了多元化国际名校的资质高度,接收 2-18 岁的学生。
【每年学费】
幼儿园480,000~587,000泰株
小学645,000~705,000泰铢
中学760,000~790,000泰株
Bangkok Patana School
(距离项目6公里)

曼谷最好的英制国际学校,全能型曼谷Patana 学校,在IGCSE和IBDP的学术成就以及体育和艺术成就方面享有盛誉,面向2至18岁的学生招生。
【每年学费】
幼儿园378,000~463,000泰铢
小学540,000~580,000泰铢
周边医院
Samitivej三美泰医院
(BTS 2个站到达)

泰国最好的私立医院,是泰国曼谷的一家屡获殊荣的医院,提供国际标准的医疗保健和JCI认证, 产科、肝脏胃科是卓越科室。
Sukhumvit医院

一家泰国顶级的五星级医院,拥有最完善的医疗设备以及先进的医疗技术和优质的服务,该医院也是一直以来广受海外赴泰国就医的国际医院之一。
Kluaynamthai医院

泰国及东南亚第一家获得国际标准JCI认证的老年专科医疗保健医院。
3.公用配套设施












4.实拍样板间欣赏


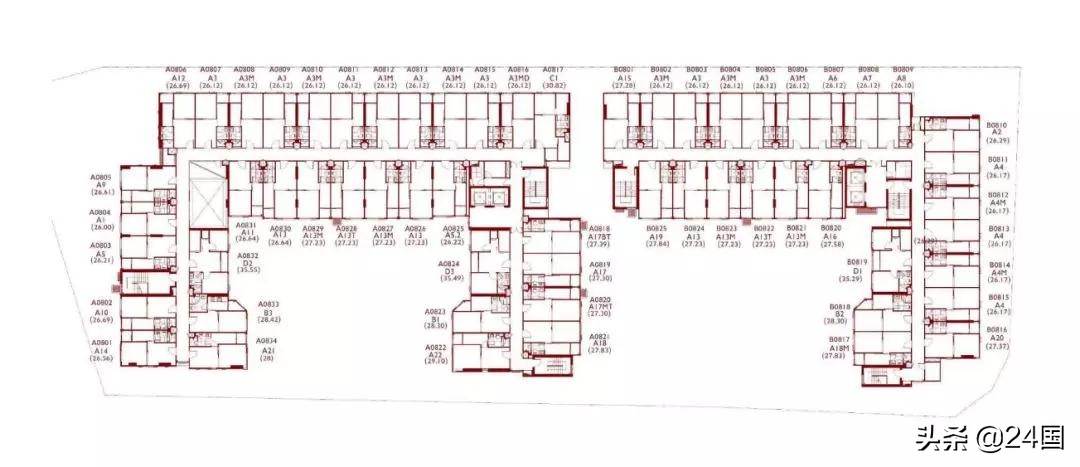
5.项目平面图








6.户型图欣赏




7.项目优势
◆租金回报率高

Punnawithi站沿线公寓偏受年轻人、以及高科技产业的 人群喜爱,出租率高达95%。
一房平均租金为16,494泰 铢/平米,预计年租金回报率可达5.3%以上,明显高于亚 洲普遍租金回报的2~4%。

全球知名房地产咨询公司莱坊(KNIGHT FRANK)总经理表示, 曼谷Bangna区配套升级,潜力升级,公寓市场健康良性发展。
在2009年至2019年的10年间,Bangna地区仅开发了7836套住 宅,销售率94%,中高端公寓均价为150,000泰铢/平。
◆ 24小时公共设施+特别设计


◆ 承前启后的地理位置
承前:BTS浅绿色线的前段Siam Ekkamai站,曼谷最早完善的商业核心区域。特别通罗、蓬蓬、暹罗站等是目前曼谷顶级富人区,距离普夏S101仅4站。
拥有诸如Siam Discovery、Central Embassy、EmQuartier、Emporium贵妇商场等国际购物中心。
通罗区等潮流娱乐区域,这里多是欧美、日韩等外籍群体的选择地,时尚潮流的生活触手可及;游客们青睐的暹罗商圈,顶级世界购物中心鼎盛商业汇聚,医疗教育完美搭配。
经过不断的商业促进发展后,房价地价的增长更是一路飙升, 也引领着曼谷品质生活的最前端。普夏S101项目所在的Punnawithi站正是紧邻此核心站点,皆是一线轻松到达
启后:BTS Udomsuk – Bangna站东曼谷港口,泰国 4.0 黄金发展区域。泰国 4.0 经济战略,泰国曼谷将打造成为东南亚目前最 领先的经济中心。
而 EEC 东部经济走廊则是助力,Bangna 区域即将拥有东南亚最大的购物中心之一 Bangkok Mall,坐拥 泰国 4.0 经济腾飞的第一线,这里就等于是泰国的未来。
普夏S101所在的 Punnawithi 站即是连接上下两个现在繁华与未来 新纪元的重要发展桥梁 EEC 东部经济走廊是政府重点扶持的国家级经济特区,是东西经济走廊和南北经济走廊的联通中心。
特区规划区域包括:泰 国北柳、春武里和罗勇3府,连接印度洋、太平洋、柬埔寨、老挝、缅甸、越南和中国南部。其目标是打造“东盟最佳和最现 代的经济特区”,是推动泰国经济发展的新动能。
普夏 S101 项目所在的Punnawithi数码创新区,紧挨着 EEC 的起始点,政府 将这个区域规划为数字和创新中心也是 EEC 的一个重要组成部分。也是泰国政府积极应对全球竞争力、调整实现泰国 4.0 发 展目标所做的努力。
泰国政府提出的【泰国 4.0】经济战略,十大新引擎产业将落地于此,政府将在政策上大开绿灯,有智慧签证、免税等政 策的支持,将吸引更多的高素质人才来此创造 4.0 时代。
东南亚领先的数字商业中心将从 Punnawith 开始,这里是引领曼谷 乃至泰国的新时代发展重要战地之一。
8.测评打分
开发商 ⭐⭐⭐⭐⭐
泰国排名第一的开发商,实力毋庸置疑,楼盘设计,配套,位置和价格等在泰国都是首屈一指
地段 ⭐⭐⭐⭐
项目位于素坤逸101巷,距离素坤逸轻轨线 Punnawithi 站仅 450 米,位于东南亚最大数码创新园区中心。
Punnawithi属于素坤逸中段,周边配套比不上素坤逸前段的通罗-蓬蓬生活区,不过新盘价格也只有前者的三分之一左右。
素坤逸线,轻轨500米距离内的位置都不会差,更何况Punnawithi站还是东南亚最大的数码创新园的所在地,发展前景看好。
楼盘配套 ⭐⭐⭐
普夏的作品,楼盘的设计和公共配套都是不错的,开发商附送全套家具,户型设计是一大亮点,尤其是35.5平米做的小两房是非常稀缺户型,出租回报会非常好。楼盘密度适中,2.5米的净层高显得有些普通。
升值潜力 ⭐⭐⭐⭐
同区域的数个热销项目市场价格在17-20万泰铢/平米的区间,普夏S101未来的上涨空间看好。
租金回报 ⭐⭐⭐⭐
该区域有大量的居民,再加上数字公园的加持,不少科技企业白领也选择居住在此。
项目的低总价决定了未来出租回报将好于市场平均水平,并且空置率会比较低。
价格水平 ⭐⭐⭐⭐
性价比非常高的一个项目。普夏地产的项目一向溢价很少,这也是为什么泰国本地人喜欢普夏的原因,除了楼盘品质,当然是因为有竞争力的价格。
享受更多海外精品房源、资讯热闻以及投资分析:https://www.24country.com/ 或直接联系B24country