购物狂论坛ID:阿童木1105
喜欢文字、热爱生活的HR,
美丽的背影下,掩饰不住那颗澎湃的少女心。
喜欢吴彦祖,也聊八卦,尤其爱分享。
各大板块都能看见她的身影,
关注过民生、育儿,也吐槽过直男的蜜汁自信。
而印象最深的莫过于她的装修大贴
▼
《因为懒,省钱省心地装出一套耐看的自然风》

撰文 阿童木1105
整理 余智勇
买房那些事
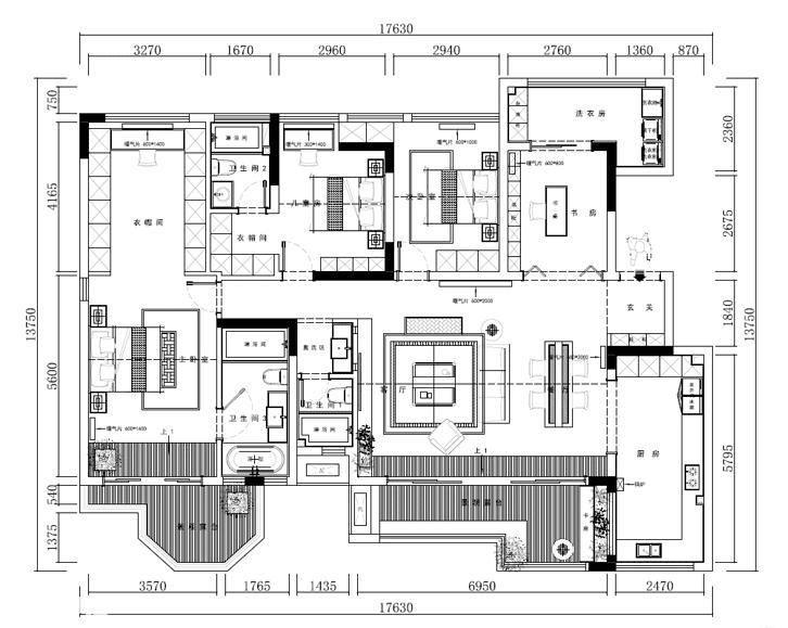
16年上的车,改善性住房,想买一个稍微宽敞点的。纠结星人(阿童木1105)对比了几十个盘,选择了某湖的大平层,实测200平左右,进深12.5m,面宽17.4m,7.2m的横厅。难能可贵的是4个阳台,其中2个露台可以种菜养花……

开发商户型图
一蔬一饭 一春一秋,家很温暖 有人情味。
阿童木1105说:“令人满意的设计不是阳春白雪,富有情感的设计才打动人”
开始以为喜欢的是极简冷淡风,后来设计师纠正为自然主义。也有网友看后表示,这活脱六七十年代的老干部风。重要吗?心安处即吾家。

装修前意向图 (侵权即删)
装修选择
“装修选择都是在重庆购物狂家居参考的,各种日记、秀家特别有借鉴意义,看过不少大神的技术贴,懒人只有膜拜。”
阿童木1105在帖子中写道:“上班族时间有限,术业有专攻,认准了品牌和人,就放心交给他们”
需求:一家三口,没有二胎打算,儿童房想要衣帽间和卫生间套一起,主卧想要一个大的衣帽间,露台想种菜养花。

平面定稿图
设计和施工交给购物狂的邓子设计,设计师文登峰(小文)非常负责。施工负责人韩经理,也是十八般武艺样样精通,后期的施工省心不少,当然过程中也会出现波折,好在大家目标一致,群策群力。

进场开工
材料选择
因为懒,装修大多数材料都在购物狂家博会或论坛商家定的。论坛商家最大的优点,敢于接受网友的监督,放心。
“以前装修看品牌,现在大家更愿意相信网友体验后的分享”

购物狂家博会
地暖+瓷砖 or 暖气片+地板?
喜欢木地板的触感,暖气片的生活气,“而真正下决心选择暖气片+地板这对CP是出于成本的考量”。自诩“穷人”的阿童木1105算了一笔账后如释重负。

暖气片实景
水磨石比小白砖更耐看?
理想中的厨房=小白砖+原木色

厨房意向图 (侵权即删)
结果设计师安利了水磨石,一开始内心是拒绝的,直到商家报价后便被征服了,果然是“贫穷限制了想象力”。

水磨石上墙后的效果
花三分之一的钱买心仪的柜子
某天逛MOCO,发现好多物美价美的橱柜,一套算下来50万就没了。后来找了楼上的论坛商家,对比了橱柜,价格是卖场的三分之一。约了设计师 现场沟通,材质预算都符合,下定。

餐厅意向图 (侵权即删)
定制家具是装修的大头,阿童木1105建议:“不要只依赖设计师,硬装和橱柜设计师一起碰撞特别重要。待双方确认后,再去确认,会节约不少时间。”
装修过程
“因为懒,因为信任,因为上班族确实没时间。装修过程就像在看直播,要不是给进度款,真不知道自家还在装修,特别感谢韩经理的耐心”




施工过程图
梦想照进现实
年轻父母和孩子在餐边闲聊,远大于正襟危坐的说教,父母分享的小故事,更有可能影响孩子的三观。
疫情期间,这里又变成了乒乓台。


餐厅实景 > PPG大师漆.必美地板.日立中央空调.八喜暖气片
小家伙喜欢在书店的地台看书,于是决定在家也做一个地台,索性和阳台一起拉通。
约上好友泡一杯茶,聊不着边际的天。



客厅实景 > PPG大师漆.必美地板.日立中央空调
拉开折叠门,冬天在花园里享受暖阳,夏天在星空下露营


晒阳台帖▷别人的阳台花花草草,我的阳台吃吃喝喝
信誓旦旦,坚决不弄饭,遭遇疫情,菜谱做饭,乐此不倦

厨房实景 > 百森卡莎橱柜.水磨石地砖
很素很素的主卧,素到一张画都没有,好在三面采光,阳光才是最好的装饰品。


主卧实景 > 必美地板.PPG大师漆.日立中央空调.八喜暖气片
衣帽间分别赐名为春昭仪,夏贵妃,秋皇后和冬麽麽,四季分明,收纳整理。

衣帽间实景 > 必美地板.百森卡莎定制
买浴缸后悔吗?是,买贵了心疼。
值得吗?值得。
泡澡让我放松,放松是我的终极追求。

卫生间实景 > 百森卡莎定制.TOTO马桶.浴缸是意大利小众品牌
大概率老人房,拼床不成功的单身体验屋


自修室
嵌着白纱的玻璃折叠门很有年代感,推门而入的亲近

好物推荐
01)德国原装进口写字台
超高性价比只要1850,京东搜“KETTLER SMART DESK”学习桌

02)洞洞板
遮挡强弱电箱的神器,挂衣服方便

03)电视收缩支架
让每个角度都能快乐追剧


< 结语 >
不奢望装一套房就迈入新时代,母慈子孝 岁月静好;只是希望在人生的波峰波谷,有一个属于自己的地方;痛快哭、开怀笑、爱自己、爱生活,带给大家美好!
世上珍贵的东西不多,而你才是唯一!
from 阿童木1105