
随着“美丽乡村”建设深入,农村的环境及环保日益重视。进年,农业农村部门重磅出击,推行“厕所革命”。因此,小编推荐一篇《化粪池的概述、原理及分类》的概述类文章供大家参考,助力“美丽乡村”建设!

化粪池
化粪池是处理粪便并加以过滤沉淀的设备。其原理是固化物在池底分解,上层的水化物体,进入管道流走,防止了管道堵塞,给固化物体(粪便等垃圾)有充足的时间水解。化粪池指的是将生活污水分格沉淀,及对污泥进行厌氧消化的小型处理构筑物。
一、化粪池的作用
化粪池是基本的污泥处理设施,同时也是生活污水的预处理设施,它的作用表现在:
1、 保障生活社区的环境卫生,避免生活污水及污染物在居住环境的扩散。
2、 在化粪池厌氧腐化的工作环境中,杀灭蚊蝇虫卵。
3、 临时性储存污泥,有机污泥进行厌氧腐化,熟化的有机污泥可作为农用肥料。
4、 生活污水的预处理(一级处理),沉淀杂质,并使大分子有机物水解,成为酸、醇等小分子有机物,改善后续的污水处理。
二、工艺原理
化粪池是一种利用沉淀和厌氧发酵的原理,去除生活污水中悬浮性有机物的处理设施, 属于初级的过渡*生活性**处理构筑物。
生活污水中含有大量粪便、纸屑、病原虫、悬浮物固体浓度为 100~350mg/L,有机物浓度CODCr 在100~400mg/L之间,其中悬浮性的有机物浓度BOD5为50~200mg/L。污水进入化粪池经过12~24h的沉淀,可去除50%~60%的悬浮物。沉淀下来的污泥经过3个月以上的厌氧发酵分解,使污泥中的有机物分解成稳定的无机物,易腐败的生污泥转化为稳定的熟污泥,改变了污泥的结构,降低了污泥的含水率。定期将污泥清掏外运,填埋或用作肥料。
要求:化粪池的沉淀部分和腐化部分的计算容积,应按《建筑给水排水设计规范》(GB50015-2003)确定。污水在化粪池中停留时间宜采用12h~36h。对于无污泥处置的污水处理系统,化粪池容积还应包括贮存污泥的容积。
扩展阅读:化粪池有效容积相关资料
三、常见化粪池分类
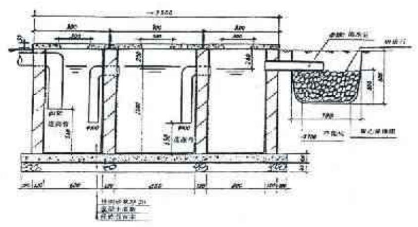
1、三格式混凝土化粪池

三格式混凝土化粪池结构
三格式化粪池是由三个相互连通的密封粪池组成,粪便由进粪管进入第一池依次顺流到第三池。三格化粪池由进粪管、分格池、过粪管、盖板等部分组成,根据三个池的主要功能依次可命名为截留沉淀与发酵池(第一池)、再次发酵池(第二池)和贮粪池(第三池)。
三格化粪池池形设计。确定池的深度以后,三格化粪池的池形便可根据建池周围的地形、建筑情况以及池的使用要求等条件决定。具体池形设计,只要符合设计原理,可以不拘一格,如长方形、椭圆形等。如土地允许,以长宽比为2:1的长方形较为理想(可延长粪便在池内的沉积时间,有利于无害化处理)。
第一池的结构与作用。作用:每天接纳新鲜粪便,厌氧发酵分解分层:上层粪皮中间粪液和底层粪渣,阻留沉淀寄生虫卵。条件:密封严密,池内相对静止或流动缓慢,适当长的水力停留时间。
第二池的结构与作用。作用:延续第一池的阻留沉淀寄生虫卵,深度厌氧发酵,游离氨浓度上升,杀菌杀卵。条件:密封严密,防止第一池粪块、粪皮、粪渣流入第二池。
第三池的结构与作用。流入第三池的粪液一般已经腐熟,其中的病菌和虫卵已基本杀灭和除去,可作施肥之用。第三池功能主要起储粪作用。

三格式混凝土化粪池施工照片
扩展阅读:(1)三格化粪池的原理及设计
(2)三格式化粪池大样图CAD图集 (容积1-40m3)
2、复合材料一体式化粪池

一体式化粪池结构图
复合材料一体式化粪池是选用高分子复合资料,顺应材料发展趋势,不易老化、不变形、抗酸碱、耐腐蚀、正常运用与修建物同寿数。消除传统化粪池不适应酸性污水的状况。
复合材料一体式化粪池有如下优点:
(1)永不渗漏 产品桶身选用玻璃纤维、有机树脂等高强度耐酸碱性资料一次成形,密封性好,绝不会发生因地基沉降而引起的断裂破损和池内板结浮渣层现象,彻底解决了砖砌化粪池污染地下水的问题,确保了化粪池可靠性运行和厌氧化粪的功用;
(2)抗压强度高 产品结构规划合理,受压均匀,经200多次循环测验,卡车在上部辗压不沉降,不变形;
(3)占地面积小 本产品占用面积为传统化粪池的45%左右,节约了土地资源,具有场所挑选灵活的特点;
(4)装置施工便利 可依据场所需求自由组合装置,装置后两小时即可投入运用;
(5)处理作用好 本产品隔舱板上下错层规划,由原来的直流式泛水改为环流式泛水,基质传递流通,厌氧生物滤池(AF)填料体系的应用,截留了更多的生物量,污水处理能力比同等容积的传统化粪池进步了一倍以上;
(6)运用寿数长 本产品耐潮湿、耐酸碱、耐氧化、高低温无变形,正常运用达50年以上;
(7)经济目标低 整体造价是钢筋混凝土结构的80%,是城建部分极力推行的环保产品。

一体式化粪池照片
扩展阅读:玻璃钢化粪池选用及安装图集