装修之前,肯定有不少人憧憬过未来家的样子。我也不例外,时常会在脑海里规划一下未来自己家的样子,希望它简约清爽、舒适实用、精致高级。虽然看了不少案例,但今天分享的这套,才是我理想中的家。套内120㎡装修以简胜繁,大面积留白设计,巧妙的色彩搭配,空间高级感已经藏不住了!(设计:战库空间设计)

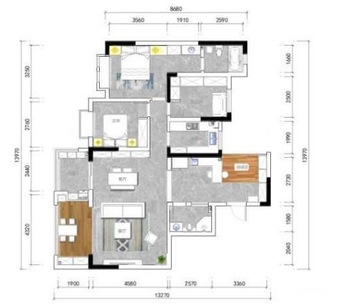
平面布置图,套内120㎡的三房,简洁的空间设计,流畅的居家动线,宽敞又舒适!


入户是家的第一印象,简洁的设计手法,利用地砖与木地板拼接,很好的调整了入户氛围,增加空间层次感,灰白原木色搭配,简洁敞亮又不失温馨。无主灯设计,高度统一视觉效果美观照明也更均匀。西厨和鞋柜中间,预留了居家健身空间,在家也可以锻炼。

厨房分中西厨设计,利用空间结构将西厨房布置在过道,进门就能感受到家的味道。简易吧台设计,既增添居家情调,又让狭长的空间变得整齐有序。

中厨采用U型布局,有效的提高空间利用率,拓宽厨房操作台面和收纳空间。简洁有序的布置,让厨房更加整齐划一,让日常烹饪更加得心应手。


入户、西厨、餐厅和生活阳台形成串联,动线流畅空间更加宽敞通透。简易造型的桌椅,占用面积少空间更通透,木质与金属质感的结合,稳重又大气。餐边柜封闭式与开放式结合,增加了空间趣味性,避免设计呆板。


客餐厅处于同一空间,舍弃硬体隔断利用沙发划分功能区,低矮尺寸的家具让空间更加通透流畅。湖水蓝的大沙发赋予了空间活泼感,搭配上超大尺寸的电视,带来绝佳的观影体验。多种照明方式结合,可变多样营造不同的住家氛围。

光洁的墙面利用大尺寸的人物头像画装饰,简单的黑白色调与整体格调相呼应。过道拉平吊顶,利用筒灯辅助照明,等距离设计效果非常不错。

阳台纳入客厅,抬高设计了地台,当作休闲区和茶室。阳台左右两侧均设计了收纳空间,保持空间干净整洁。百叶窗灵活实用给空间增加亮度,同时避免了布艺窗帘带来的视觉臃肿。局部木色的点缀,自然而清爽。周末邀请三五好友,喝喝茶聊聊天也是一种享受。

衣帽间延续了简洁设计,搭配跳色的软装让空间更显活泼不沉闷。地板取代了瓷砖,给衣帽间平添了些许温度感。白色的衣柜搭配上黑色的门把手,两种色彩形成鲜明的对比,简约耐看不易过时。窗帘依旧选择百叶帘,良好的透光效果让室内更敞亮。


次卧一切从简,没有多余的装饰和造型设计,满足最基本的睡眠和收纳功能。壁灯颜色与背景墙保持相近,整体感更好不显突兀。衣柜设计也颇为不错,摒弃单一的白色,中间一抹木色点缀,与胡桃木家具彼此呼应,让次卧多了几分自在与舒适。


主卧装修设计很简约,墨绿色的床头背景搭配白色的收纳柜,空间简洁清新。床头照明采用不对称设计,将趣味渗透空间,视觉更活泼灵动。黑胡桃木的床头柜,增添了些许复古韵味。百叶窗极大的改善了卧室采光效果。

主卧卫生间,木地板过渡到瓷砖,利用黑色过门石划分区域。浴室柜外移提高日常使用舒适,木质收纳搭配金属色水龙头,多了些许精致。为了更好的享受生活,浴缸取代了淋浴房。
整套案例看完,体验感非常不错。简洁的空间设计,巧妙的软装色彩搭配,高级感已经藏不住了。轻盈自在的住家氛围,等换了大房子就照着装。