
电缆桥架在我国的应用只有十多年,在欧美发达国家也不过是几十年。在一个机房项目中,比起造价昂贵、高科技的硬件和软件,桥架比较很不起眼,也很少为人关注,但它却也是整个布线工程中不可缺少的部分。那么在施工中电缆桥架安装施工要求及规范怎么样?
01一般规定
1.1、本章适用于电压为10KV及以下新建扩建的一般工业与民用建筑电缆、桥架安装和桥架内电缆敷设
电缆桥架作为布线工程的一个配套项目,目前尚无专门的规范指导,各生产厂家的规格程式缺乏通用性,因此,设计选型过程应根据弱电各个系统电缆的类型、数量,合理选定适用的桥架。(1)、确定方向:根据建筑平面布置图,结合空调管线和电气管线等设置情况、方便维修,以及电缆路由的疏密来确定电缆桥架的最佳路由。在室内,尽可能沿建筑物的墙、柱、梁及楼板架设,例如在利用综合管廊架设时,则应在管道一侧或上方平行架设,并考虑引下线和分支线尽量避免交叉,如无其它管架借用,则需自设立(支)柱。
(2)、荷载计算:计算电缆桥架主干线纵断面上单位长度的电缆重量。
(3)、确定桥架的宽度:根据布放电缆条数、电缆直径及电缆的间距来确定电缆桥架的型号、规格, 托臂的长度,支柱的长度、间距、桥架的宽度和层数。
(4)、确定安装方式:根据场所的设置条件确定桥架的固定方式,选择悬吊式、直立式、侧壁式或是混合式,连接件和紧固件一般是配套供应的,此外,根据桥架结构选择相应的盖板。
(5)、绘出电缆桥架平、剖面图,局部部位还应绘出空间图,开列材料表。
2、如与电力电缆桥架合用时,应将电力电缆和弱电电缆各放置一侧,中间采用隔板分隔。
3、弱电电缆与其它低电压电缆合用桥架时,应严格执行选择具有外屏蔽层的弱电系统的弱电电缆,避免相互间的干扰。
1.2、电缆桥架安装和桥架内电缆敷设,应按已批准的设计文件施工。
1.3、由支、吊、托架支撑的托盘(槽)或梯架直线段、弯通非直线段组合而成,敷设电缆具有连续性的刚性结构系统,为电缆桥架。见图下图

1.4、金属电缆桥架及其支架和引入或引出的金属电缆导管必须接地(PE)或接零(PEN)可靠,且必须符合下列规定:
1.4.1、金属电缆桥架及支架全长应不少于2处与接地(PE)或接零(PEN)干线相连接;
1.4.2、非镀锌电缆桥架间连接板的两端跨接线铜芯接地线,接地线最小允许截面积不小于4mm2;
1.4.3、镀锌电缆桥架间连接板的两端不跨接接地线,但连接板两端不少于2个有防松螺帽或防松垫圈的连接固定螺栓。
1.4.5、电缆敷设严禁有绞拧、铠装压扁、护层断裂和表面严重划伤等缺陷。
1.4.6、电缆桥架处如有防火要求的场所,应采取防火隔离措施。
02施工准备
2.1、技术准备:
2.1.1、按照已批准的施工组织设计(施工方案)进行技术、安全交底。
2.1.2、施工执行工艺标准、图集、规范齐全。
2.1.3、电缆桥架敷设前,应检查桥架敷设有无与其他设备、管线交叉或重叠无法施工的地方,施工前应与各工种、监理或建设单位及设计单位协商好,并作好记录,以保证施工顺利进行。
2.1.4、根据施工图或施工所用电缆应作好电缆牵引力的计算。
1、电缆桥架规格及型号必须符合设计要求,附件齐全;桥架与配件、附件和紧固件各种型钢均应采用镀锌标准件。
2、各种规格电缆桥架的直线段、弯通、桥架附件及支、吊架立柱及型钢等有产品合格证,桥架内外应光滑平整,无棱刺,不应有扭曲翘边等变形现象。
3、桥架订货或制作应按设计要求进行,不应有误,应反复校核以免造成浪费。
4、桥架安装选择需屏蔽电气干扰的电缆回路,有腐蚀的场所、易燃粉尘场所,应选用无盖无孔封闭型托盘,当需要因地制宜的场所,宜选用组装式托盘或有孔托盘及梯架;在容易积灰和其它需遮盖的环境或户外场所,宜带有盖板。低压电力电缆与控制电缆共用同一托盘或梯架时,应选用中间有隔板的托盘或梯架;在托盘、梯架分支、引上、引下处应设适当的弯通;因受空间条件限制不便装设弯通或有特殊要求时,可选用软连接板,铰接板;伸缩缝应设置伸缩板;连接两段不同宽度或高度的托盘、梯架可配置变宽或变高板。但在施工中,支、吊架和桥架的选择应依设计或工程布置条件选择。
5、托盘、梯架的宽和高度,应按下列要求选择:
(1)、电缆在桥架内的填充率,电力电缆不应大于40%;控制电缆不应大于50%。并应留有一定的备用空位,以便今后为增添电缆用;
(2)、所选托盘、桥架规格的承载能力应满足规定。其工作均布荷载不应大于所选托盘、梯架荷载等级的额定均布荷载;
(3)、工作均布荷载下的相对挠度不宜大于1/200。
托盘、梯架直线段,可按单件标准长度选择。单件标准长度一般规定为2、3、4、6m。托盘、梯架的宽度与高度常用规格尺寸系列如表2.4-1

注:符号△表示常用规格
各类弯通及附件规格,应适合工程布置条件,并与托盘、梯架配套。
支、吊架规格选择,应按托盘、梯架规格层数、跨距等条件配置,并应满足荷载的要求。
钢制桥架的表面处理方式,应按工程环境条件、重要性、耐久性和技术经济性等因素进行选择。一般情况宜按表2.4-2选择适用工程环境条件的防腐处理方式。当采用表中“T”类防腐方式为镀锌镍合金、高纯化等其它防腐处理的桥架,应按规定试验验证,并应具有明确的技术质量指标及检测方式。

注:符号“○”表示推荐防腐类别
6、桥架的外观检查
桥架产品包装箱内应有装箱清单、产品合格证及出厂检验报告。托盘、梯架板材厚度应满足表2.6的规定。表面防腐层材料应符合国家现行有关标准的规定。

热浸镀锌的托盘、桥架镀层表面应均匀,无毛刺、过烧、挂灰、伤痕、局部未镀锌(直径2mm以上)等缺陷,不得有影响安装的锌瘤。螺纹的镀层应光滑,螺栓连接件应能拧入。
电镀锌的锌层表面应光滑均匀,致密。不得有起皮、气泡、花斑、局部未镀、划伤等缺陷。
喷涂应平整、光滑、均匀、不起皮、无气泡水泡。
桥架焊缝表面均匀,不得有漏焊、裂纹、夹渣、烧穿、弧坑等缺陷。
桥架螺栓孔径,在螺杆直径不大于M16时,可比螺杆直径大2mm。
螺栓连接孔的孔距允许偏差:同一组内相邻两孔间距±0.7mm,同一组内任意两孔间距±1mm;相邻两组的端孔间距±1.2mm。
7、膨胀螺栓:应根据允许拉力和剪力进行选择;可按计划验收,丝扣应完好无损。
8、电缆应有合格证和“CCC”认证标志,并应有“CCC”认证复印件;每盘电缆上应标明规格、型号、电压等级、长度及出厂日期电缆相应完好无损。
9、电缆外观完好无损,铠装无锈蚀、无机械操作,无皱折和扭曲现象。油浸电缆应密封良好,无漏油及渗油现象。橡套及塑料电缆外皮及绝缘层无老化及裂纹。电缆端头密封良好。
10、其它附属材料;电缆标示牌、油漆、汽油、封铅、硬脂酸白布带、橡皮包布、黑包布、塑料绝缘带等均应符合要求
03施工工艺
3.1、电缆桥架安装施工工艺
3.1.1、电缆桥架安装工艺流程:
定位放线→预埋铁件或膨胀螺栓→支、吊、托架安装→桥架安装→保护接地安装
3.1.2、根据施工图确定始端到终端位置,沿图纸标定走向,找好水平、垂直、弯通,用粉线袋或画线沿桥架走向在墙壁、顶棚、地面、梁、板、柱等处弹线或画线,并均匀档距画出支、吊、托架位置。
3.1.3、预埋铁件或膨胀螺栓
(1)、预埋铁件的自制加工不应小于120mm×80mm×6mm,其锚固圆钢的直径不小于10mm。
(2)、紧密配合土建结构的施工,将预埋铁件平面紧贴模板,将锚固圆钢用绑扎或焊接的方法固定在结构内的钢筋上;待混凝土模板拆除后,预埋铁件平面外露,将支架、吊架或托架焊接在上面进行固定。
(3)、根据支架承受的荷重,选择相应的膨胀螺栓及钻头;埋好螺栓后,可用螺母配上相应的垫圈将支架或吊架直接固定在金属膨胀螺栓上。
3.2、桥架安装
1、直线段钢制电缆桥架长度超过30m,铝合金或玻璃钢制电缆桥架长度超过15m应设有伸缩节,跨越伸缩缝处设置补偿装置,可用带伸缩节的桥架。
2、桥架与支架间螺栓、桥架连接板螺栓紧固无遗漏,螺母位于桥架外侧,当铝合金桥架与钢支架固定时,有相互间绝缘防电化措施腐蚀措施,一般可垫石棉垫。
3、敷设在竖井内和穿越不同防火区的桥架,应按设计要求位置,有防火隔离措施,电缆桥架在电气竖井内敷设可采用角钢固定,见图3.1.8。

4、电缆桥架在穿过防火墙及防火楼板时,应采取防火隔离措施,防止火灾沿线路延燃;防火隔离墙、板,应配合土建施工预留洞口,在洞口处预埋好护边角钢,施工时根据电缆敷设的层数和根数用L50×50×5角钢作固定框,同时将固定柜焊在护边角钢上;也可以先作好框在土建施工中砌体或浇灌混凝土时安装在墙、板中。
3.3 桥架的接地
当设计允许利用桥架系统构成接地干线回路时,应符合下列要求:
1. 金属电缆桥架及其支架引入或引出的金属电缆导管必须接地(PE)或接零(PEN)可靠,且必须符合下列规范:
(1)、金属电缆桥架及其支架全长,与接地(PE)或接零(PEN)干线相连接不小于2处,使整个桥架为一个电气通路。
(2)、非镀锌电缆桥架间连接的两端跨接铜芯接地线,接地线最小允许截面积不小于4mm2。
(3)、镀锌电缆桥架间连接板的两端可不跨接接地线,但连接板两端不少于2个有防松螺帽或防松垫圈的连接固定螺栓。
2、盘、梯架端部之间连接电阻不应大于0.00033Ω并应用等电位联结测试仪(导通仪)或微Ω表测试,测试应在连接点的两侧进行,对整个桥架全长的两端连接电阻不应大于0.5Ω或由设计决定,否则应增加接地点,以满足要求。接地孔应消除涂层,与涂层接触的螺栓有一侧的平垫应使用带爪的专用接地垫圈。
3、伸缩缝或软连接处需采用编织铜线连接。沿桥架全长另敷设接地干线时,每段(包括非直线段)托盘、梯架应至小有一点与接地干线可靠连接;在接地部位的连接处应装置弹簧垫圈,以免松动。
04支吊架安装
(1)、支架与吊架所用钢材应平直,无显著扭曲。下料后长短偏差应在3mm范围内,切口处应无卷边、毛刺;
(2)、钢支架与吊架应焊接牢固,无显著变形,焊接前厚度超过4mm的支架、铁件应打坡口,焊缝均匀平整,焊缝长度应符合要求,不得出现裂纹、咬边、气孔、凹陷、漏焊等缺陷;
(3)、支架与吊架应安装牢固,保证横平竖直,在有坡度的建筑物上安装支架与吊架应与建筑物的坡度、角度一致;
(4)、支架与吊架的规格一般不应小于扁钢30mm×3mm;角钢25mm×25mm×3mm;
(5)、严禁用电气焊切割钢结构或轻钢龙骨任何部位;
(6)、万能吊具应采用定型产品,并应有各自独立的吊装卡具或支撑系统。
(7)、固定支点间距一般不应大于1.5~2m。在进出接线盒、箱、柜、转角、转弯和变形缝两端及丁字接头的三端500mm以内应设固定支持点。
(8)、严禁用木砖固定支架与吊架。
05桥架安装
(1)、电缆桥架水平敷设时,支撑跨距一般为1.5~3m,电缆桥架垂直敷设时固定点间距不宜大于2m。桥架弯通弯曲半径不大于300mm时,应在距弯曲段与直线段结合处300~600mm的直线段侧设置一个支、吊架。当弯曲半径大于300mm时,还应在弯通中部增设一个支、吊架。支、吊架和桥架安装必须考虑电缆敷设弯曲半径满足规范最小弯曲半径。见表3.1.5。

注:为电缆外径
(2)、门型角钢支架的安装:梯型桥架沿墙垂直敷设,可使用门型角钢支架,支架的固定应尽可能配合土建施工预埋。如图3.1.5(2-1),也可在土建施工中预埋开角螺栓,用开角螺栓固定支架如图3.1.5(2-1),也可以采用膨胀螺栓固定。
图3.1.5.(2-1) 角钢支架预埋安装



图3.1.5.(2-2) 钢支架预埋地脚螺栓安装
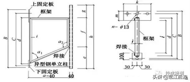
(3)、梯型角钢支架的安装:桥架沿墙、柱水平安装时,托壁需安装在异型钢立柱上,而立柱要安装在梯型角钢支架上,使柱和墙上的桥架固定支架(或托臂)在同一条直线上。制作见图和表3.1.5(3)底架与门型架焊接时,焊角高度5mm。

表 3.1.5(3)梯型角钢支架制作尺寸表(mm)

(4)、电缆桥架立柱侧壁式安装:立柱是直接支承托臂的部件,分工字钢槽钢、角钢、异型钢立柱;立柱可以在墙上、柱上安装、也可悬吊在梁板上安装。做法在混凝土可预埋铁件;砌体可砌筑预制砌块;也可以采用膨胀螺栓但必须在混凝土强度C20或砖强度在MU10以上的砖砌体上,作法可参照3.1.5(4a、b、c、d、e、f)。





(5)、电缆桥架应敷设在易燃易爆气体管和热力管道的下方,当设计无要求时,与管道的最小净距,符合3.1.5(5)的规定。
表示3.1.5(5)与管道的最小净距

06
托臂安装
托臂是直接支承托盘、梯架单独固定的刚性部件,托臂有螺栓固定可预埋螺栓,也可采用膨胀螺栓,也可卡接,如图3.1.6(1)、(2)、(3)、(4)、(5)。





07
电缆桥架安装要求
(1)、槽式大跨距电缆桥架由室外进入建筑物内时,桥架向外的坡度不得小于1/100。
(2)、电缆桥架与用电设备交越时,其间的净距不小于0.5m。
(3)、两组电缆桥架在同一高度平行敷设时,其间净距不小于0.6m。
(4)、在平行图上绘出桥架的路由,要注明桥架起点、终点、拐弯点、分支点及升降点的坐标或定位尺寸、标高,如能绘制桥架敷设轴侧图,则对材料统计将更精确。
直线段:注明全长、桥架层数、标高、型号及规格。拐弯点和分支点:注明所用转弯接板的型号及规格。升降段:注明标高变化,也可用局部大样图或剖面图表示。
(5)、桥架支撑点, 如立柱、托臂或非标准支、构架的间距、安装方式、型号规格、标高,可同意在平面上列表说明,也可分段标出用不同的剖面图、单线图或大样图表示。
(6)、电缆引下点位置及引下方式,一般而言,大批电缆引下可用垂直弯接板和垂直引上架,少量电缆引下可用导板或引管,注明引下方式即可。
(7)、电缆桥架宜高出地面2.2米以上,桥架顶部距顶棚或其它障碍物不应小于0.3米,桥架宽度不宜小于0.1米,桥架内横断面的填充率不应超过50%。
(8)、电缆桥架内缆线垂直敷设时,在缆线的上端和每间隔1.5米处应固定在桥架的支架上,水平敷设时, 在缆线的首、尾、转弯及每间隔3~5米处进行固定。
(9)、在吊顶内设置时,槽盖开启面应保持80毫米的垂直净空,线槽截面利用率不应超过50%。
(10)、布放在线槽的缆线可以不绑扎,槽内缆线应顺直,槽内缆线应顺直,尽量不交叉,缆线不应溢出线槽,在缆线进出线槽部位, 转弯处应绑扎固定。垂直线槽布放缆线应每间隔1.5米固定在缆线支架上。
(11)、在水平、垂直桥架和垂直线槽中敷设线时,应对缆线进行绑扎。4对线电缆以24根为束,25对或以上主干线电缆、光缆及其它信号电缆应根据缆线的类型、缆径、缆线芯数分束绑扎。绑扎间距不宜大于1.5米,扣间距应均匀,松紧适度。
(12)、桥架水平敷设时,支撑间距一般为1.5-3m,垂直敷设时固定在建筑物构体上的间距宜小于2m。
08
电缆桥架型式及品种的选择及铺设规范
电缆桥架型式及品种的选择
1、需屏蔽电气干扰的电缆网路或有防护外部(如:有腐蚀液休,易燃粉尘等环境)影响的要求时,应选用(FB)类槽式复合型防腐屏蔽电缆桥架(带盖)
2、强腐蚀性环境应采用(F)类复合环氧树脂防腐阻燃型电缆桥架。托臂、支架也要选用同样材料,提高桥架及附件的使用寿命,电缆桥架。在容易积灰和其它需遮盖的环境或户外场所宜加盖板。
3、除上述情况外,可根据现场还环境及技术要求选用托盘式、槽式、梯级式、玻璃防腐阻燃电缆桥架或钢质普通型桥架。在容易积灰和其它需遮盖的环境或户外场所宜加盖板。
4、在公共通道或户外跨越道路段,底层梯级的底部宜加垫板或在该段使用托盘 。大跨距跨越公共通道时,可根据用户要求提高桥架的载荷能力或选用行架。
5、大跨距(>3m)要选用复合型桥架(FB)。
6、户外要选用复合环氧树指桥架(F)。
电缆桥架规格选择
1、复合环氧树脂电缆桥架的宽度和高度就按下表选择,并应符合电缆真充率不超过有关标准规范的规定值,动力电缆可取40-50%,控制电缆可取50-70%,另外需予留10-25%的式程发展余量。
2、各种弯通及附件规格应符合工程布置条件并与桥架相配套。
3、支、吊架规格的选择,应按桥架规格、层数、跨距等条件配置。并应满足荷载的要求。
4、桥架横截面积的选择见表桥架上电缆网络中任一线路的最大自动过电流保护的额定电流值或整定值(A) 桥架横截面充许最小值(mm2)0-60 12961-100 258101-200 452201-400 645401-600 968
对于电缆桥架的支、吊架的配置
1、户内支、吊短跨距一般采取1.5-3m。户外立柱中跨距一般采取6m。
2、非直线段的支、吊架配置就遵循以下原则。当桥架宽度<300mm时,应在距非直线段与直线结合处300-600m的直线段侧设置一个支、吊架。当桥架宽度>300mm时,除符合下述条件外,在非直线段中部还应增设一个支、吊架。
3、拉挤玻璃钢电缆桥架多层设置时层间中心距为200,250,300,350mm。
4、桥架直线段每隔50m应予留伸缩缝20-30mm(金属桥架)。
防火:要求桥架防火的区段,必须采用钢制或不燃、阻燃材料。
拉挤玻璃钢电缆桥架的接地
1、桥架系统应具有可靠的电气连接并接地(只对金属桥架)。
2、当允许利用桥架系统构成接地干线回路时应符合下列要求。桥架端部之间连接电阻应不大于0.00033欧姆,接地孔应清除绝缘涂层。在1KV及以下中性点直接接地系统中,受电设备的接地与系统中性线接地相连。装有处动切断供电装轩时,桥架的级长方向金属横截面积应不小于规定值。
3、沿桥架全长另敷设接地干线时,每段(包括非直线段)桥架应至少有一点与接地干线可靠连接。
4、对于振动场所,在接地部位的连接处应装置弹簧圈。
桥架系统设计内容
桥架系统工程设计应与土建、工艺以及有关专业密切相配合以确定最佳布置,其设计内容可含有:
1、桥架系统的有关剖面图。
2、桥架系统的平面布置图。
3、桥架系统所需直线段、弯通、支、吊架规格和数量的明细表以及必要的说明。4、有特殊要求的非标件技术说明或示意图。
安装: 电缆桥架的安半夜请参照中国建筑标准设计研究院所发行的JSJT-121全国通用建筑标准设计-电气装置标准图集《电缆桥架安装》。
设计要求
1、桥架系统的路径平面布置图
2、桥架系统的有关断面图。
3、桥架系统所用防腐材质及所需直通、弯通、支(吊)架等的规格和数量明细表以及必要的说明,连接板及螺丝、防护帽按以上要求由生产厂家配齐。4、有特殊要求的非标准技术说明或示图。
来源:技成培训
如有侵权,请联系删除