这是一个如何把城市建筑的"灰姑娘"转变为当代艺术"公主"的故事。在这个故事里,建筑设计者的角色更像是一名建筑"化妆师"。原本的建筑体由于政策考量不好拆。但是,每个参与的人都希望看到一座被重新赋予生命力的新建筑。"上海当代艺术馆"的设计并不想要一个"宣言式"的建筑,而更多的追求是其建筑语汇的"双重性"(duality)。它是一座介于现有和新造的建筑。
上海当代艺术博物馆(PSA)选址于2010年上海世博会城市未来馆,前身是始建于1897年的南市发电厂,其建筑主体长128米,宽70米,高50米,建筑面积31088平方米。高达165米的钢筋混凝土烟囱笔直高耸,具有极强的标志性,见证了中国近代工业的发展历程,昭示着浦江两岸新一轮的历史机遇和文化创造。改建后,其建筑面积将增加至4万多平方米,展陈面积达到1.5万平方米,拥有12个展厅。

建筑标志——废弃烟囱
作为一个工业厂房的烟囱,在其功能置换上并非将其拆除或弱化,而是将其进行标志性处理,让原有的排烟的功能转化成为现在的巨型温度计与特殊展厅,不仅黄浦江边就能看到它,而且它也是作为上海的一个城市地标,也是这个建筑的一个标志,这个可以从上海当代艺术博物馆的LOGO中看到。


工业机械的残留——建筑展品
在这个工业建筑改造的过程中,建筑师章明显然是尽可能的保留原来所使用的机器并对其进行再设计的,但由于布展等种种原因使得室内的大型机械都被搬走,唯一留下来的也是现在上海当代艺术博物馆屋顶平台上的四个橙色的大型粉尘分离器管道,这几个设备没有拆除是十分明智的,它为它以前的功能留下了可追忆的物件,虽然在听章老师讲为留下这个分离器的曲折故事,承受的巨大心理压力,但是相信现在这一切都是值得的,它作为建筑的一部分给我们展示着它的过去,同时也是一件展品,向我们展示着工业建筑的魅力。

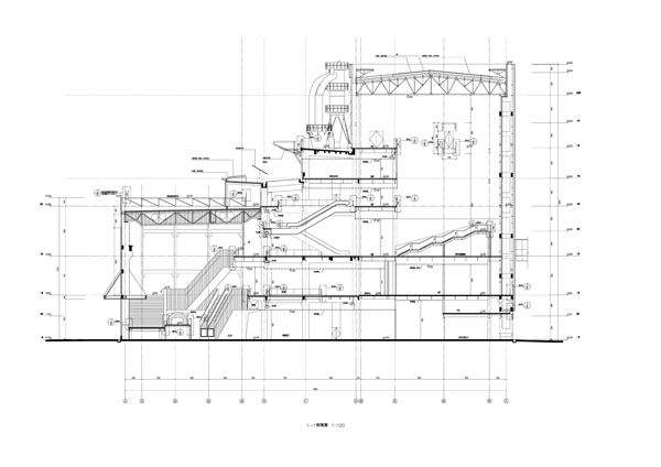
内部空间尺寸
在建筑的空间尺度上,从剖面可以看出,建筑分为"三条",左边一条是最低的那个厂房空间,在建筑中是最大的空间所在的区域,这个空间的尺度在整个建筑中尺度最大,其较适合举办一些有巨型装置或者巨型展品的展览,如九级浪:中间一条是属于小尺度空间,在这个空间中开了一些通高的天井和小型的展览空间:右边的空间是中等尺度的空间,在这个空间中一般举办一些相对大一点的展览。

室外空间
在建筑中,建筑师为了为市民争取到相对较大的室外展场与业主进行的很久的博弈,最后才有了较矮厂房屋顶的室外展场,这个展场是建筑中最大而是最主要的室外空间;餐厅外面也有一小块的室外空间,而这个室外空间相对来说是单独为餐厅服务的,它没有下面大室外展场的开放性;最上面的室外平台则拥有4个"粉尘分离器",这个展场除了能提供室外展场的功能也为室外的这几个工业遗址提供了一个欣赏平台,即它们特有的室外展厅。同时这几个室外空间又形成了一个退台的室外空间,使得建筑在观黄浦江时每个平台都能有一个很好的观景视野。

建筑立面具有的功能性
上海当代艺术博物馆在立面处理上,首先是选择将建筑立面使用铝皮来进行立面替换,并且在设置立面的时候考虑到疏散楼梯的功能性要求,使其更好排烟将疏散做成室外楼梯,因而采用与楼梯流线相同的迂回"之"字型的立面开洞,使立面的机理完全是由功能产生的,建筑的形式与功能能够高度的统一。

艺术与建筑的结合
艺术家有表达艺术诉求的高涨热情,但建筑师更关心的是如何使这些诉求产生更广泛的社会化影响,所以我们对整个展馆的开放性一如既往地坚持。觉得可惜的是,这座展馆内有大量有趣的可变空间、流动空间,馆内的光线、地形、空间张力和弹性的利用还有丰富的文章可做,可是双年展的一些艺术家们还是更愿意将大空间割裂成一个一个小空间,一件件展品也被防护隔离带围上,这对作品的完整性、亲民性的障蔽是明显的。