看腻了新房装修,给大家换换口味,分享一套旧房改造案例。房屋位于上海,75㎡的老公房,集中且古板的格局,只能满足居住需求,谈不上舒适。加上年久失修,屋内也变得破旧不堪。经过一番改造装修,让房屋从基本的住,迈向一个简约舒适且漂亮的家,前后对比焕然一新,一起看看装修成果。
房屋基础信息
项目面积:75㎡
项目地址:上海市
项目设计:杺舍空间设计

原始结构图
原户型比较鸡肋,三房没厅的格局,空间分隔比较多,整体采光不佳。同时卫生间比较紧凑,收纳也很欠缺。

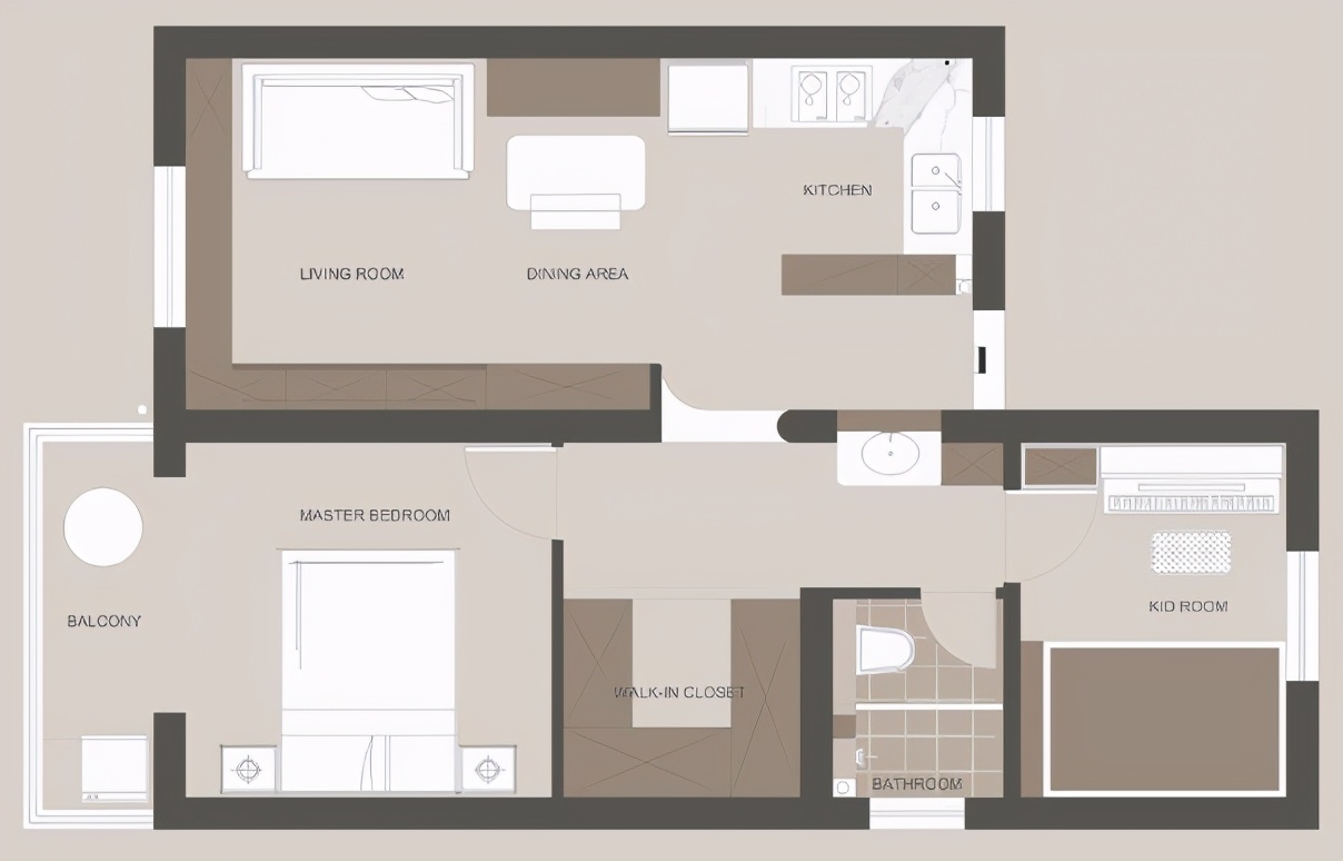
装修布置图
将原有的三房格局,变成两房两厅。拆除厨房与卧室隔墙,将空间打通,布置成厨房、餐厅、客厅。卫生间左侧的卧室,将阳台打通扩大使用面积,增加衣帽间。原有卫生间太小,加上一家三口使用,因此做了分离式设计,将洗脸台外移。

改造前玄关
改造前玄关,空间拥挤狭窄,而且缺乏收纳空间。老旧的瓷砖和墙面,加上采光不佳,整体很阴暗。

改造后玄关
改造后的玄关,拆除了厨房与卧室隔墙,很好地引入自然采光,让室内变得通透开阔,右侧也做了窗户,让采光更胜一筹。鞋柜与厨房吧台结合设计,美观实用。右侧长虹玻璃与磁性黑板墙设计,让空间更有活力。

改造前房间
改造前与厨房紧邻的房间,老式的地板,泛黄脱落的墙皮,以及密封性较差的窗户。

改造后客厅
拆除隔墙,将空间一体化。合理地布置客餐厅,满足日常需求,又保证空间通透。白色和原木色的经典搭配,提亮空间又增添自然舒适。客厅还增添了很多储物空间,以满足屋主一家三口日常收纳。


改造前厨房
厨房改造前,脏乱差、油烟感浓重,加上老气的橱柜色彩,简直让人嗤之以鼻。

改造后厨房
拆除隔墙后,空间一体化整体变得宽敞。开放式厨房设计,以实用性为目的,没有太多的复杂设计,木纹橱柜搭配白色台面,与整体风格相呼应。顶面利用圆弧吊顶设计,界定空间又延伸层次感。

改造前卫生间
卫生间改造前,空间狭小且脏乱差,长年累月的污渍,都显露在前面。没有干湿分离,日常使用也不方便。

改造后卫生间
改造后的卫生间,洗脸台与淋浴马桶做了分离式,确保一家三口高峰期使用不受影响。台下盆设计,让清洁变得更简单。白色的台盆搭配黑色水龙头,经典耐看不过时。

马桶和淋浴区,由于原有格局不理想,装修改造做了马桶位移,让格局变得舒适。灰白黑的色调搭配,让卫浴空间更有质感。壁龛设计美观耐用,空间也不显突兀。为了空间开阔,舍弃硬质隔断,以灵活浴帘取而代之。

改造前主卧
由于隔断墙影响,导致空间拥挤且昏暗,加上老气的装修,整体就更昏暗了。

改造后主卧
改造后的主卧,拆除隔墙将阳台纳入主卧,扩大使用面积,提高采光通透性。灵活的百叶窗设计,给予了更灵活的采光变化。室内白色与木色的结合,营造舒适柔和的睡眠氛围。

由于阳台纳入了主卧,空间得以释放,因此设计了衣帽间,双侧移门敞开,提升步入式体验感。哑光透明玻璃,让衣帽间多了几分高级感。

改造后儿童房
儿童房木工现场制作,更好地将空间利用起来。收纳式榻榻米,加上三角吊柜,提升儿童房储物量。

儿童房安装了全遮光蜂巢帘,具有隔热和隔音的功能。现场定制发挥空间最大价值,剩余空间摆放钢琴后,也不会显得太过于拥挤。

以上就是这套75㎡老公房改造,没有对比就没有伤害,改造装修后焕然一新,由老破房变成了简约漂亮的家。