
舒适轻松、自然优雅,是男装品牌FULL MONTY想要传达的“新西装”理念。改变传统正装刻版、严肃的固有印象, FULL MONTY希望西装能成为表达穿着者个性的日常服饰。Studio Glume近日为这个兼具当代风范、人文气息和匠人精神的男装品牌设计了第一家线下门店。
Comfortably relaxed and naturally elegant are the attributes menswear brand FULL MONTY wants to convey in their fresh take of the suit. FULL MONTY hopes that the suit can become an everyday attire which expresses the personality of its wearer, changing the traditional connotation of formality and seriousness. Studio Glume recently designed the first brick and mortar store for the menswear brand combining a distinctive contemporary style with humanity and craftsmanship.

男士正装表达了一种分寸感,以及对细节、质地的追求。Studio Glume将这种理念融入到空间表达中。疏密有度的空间布局,细腻丰富的材质呈现,理性的整体秩序和感性的微妙细节,交织成展现深度和趣味的空间。
Men’s formalwear expresses a sense of proportion and the pursuit of details and texture. Studio Glume integrates this concept into the space. Density in its layout, a selection of rich and exquisite materials and the overall rational order of the space adorned with subtle details are intertwined to provide the space with depth and an interesting and vital atmosphere.

店铺门头由暖色砂岩打造,传统的材料以简洁利落的造型呈现,体现经典与当代精神的融合。
The door of the store is made of warm sandstone, traditional materials are presented in a simple and neat shape, reflecting the blend of both the spirits of classical and contemporary inspirations.

橱窗中的做旧漆面金属折叠窗,与室内的丝绒沙发、做旧铝板工作台等细节呼应,在次序井然、精致得体的整体氛围中,融于一些情感和温度,打破追求完美的趋向和可能带来的距离感。
The old lacquered metal folding in the window echoes the details of the velvet sofa, the old aluminum workbench and other elements present inside inserting a certain level of emotionality and warmth within the delicate atmosphere, while breaking the tendency to pursuit perfection and its inherent sentiment of alienation.

沙发、试衣间门帘、折叠窗,不同材料与质感的绿,为空间带来层次的变化和丰富性。
The green colors from the different materials of the sofa, fitting room curtains, folding window bring an unexpected twist and a certain level of richness to the space.

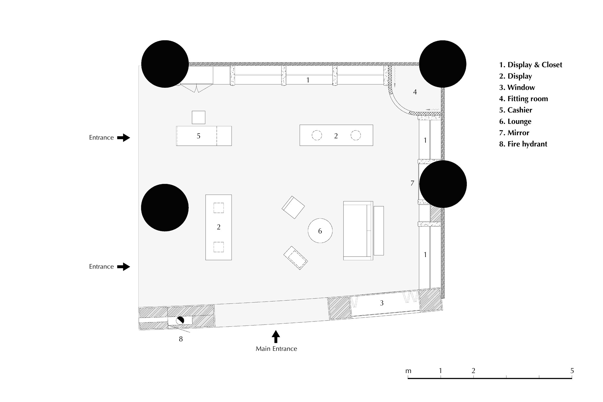
店铺场地是半开放的格局,有两面墙壁和四根巨大的圆柱,其中一侧敞开通往商场其它区域。设计师结合场地现状与功能需求,设计了节奏紧凑的陈列衣柜,利用转角处的圆柱设计了圆弧形试衣区,试衣镜则设计位于其中一根圆柱的前方。这样的处理,既保证了空间的井然有序,也让空间利用率获得了最大化。
The store is a semi-open layout with two walls and four big columns, one of which is open to other areas of the mall. The designer combined the preexisting characteristics of the site with functional requirements of the brand to design a tightly rhythmic display area, using the corner column to design an arc-shaped fitting area placing the fitting mirror front of one of the columns. Such treatment not only ensures the orderly feel of the store but also maximizes the space utilization.

沙发、茶几、陈列台、收银桌,有节奏地疏落布置在店铺中,规划出流畅的动线,与衣柜形成张弛有度的空间关系。
The sofa and coffee tables, display tables and the cashier counter are laid out rhythmically in the space, creating a smooth flow and forming a relaxed spatial relationship with the clothing display area.

店铺陈列与家具都选用了深色木料,营造出沉稳、可靠的空间基调。
Dark wood is used for the store display and furniture, creating a calm and settled space color tone.

产品陈列以特意保留了粗粝边缘的天然石材做为间隔。
The product display is defined by natural stone, and the edges of the stone are deliberately left rough.

陈列桌也保留了木料特别的天然印记,休息区的茶几由黄铜手工打造,方凳则是实木原材切割打磨后简单拼合组成。简洁朴实的材料传递了自然的力量,激发了想象力。
The display table also retains the special natural imprint of the wood. The coffee table in the rest area is hand-made from brass, and the square stools are simply cut and polished from solid wood. Simple materials convey the power of nature and stimulate imagination.

经典的扶手椅,精心打造的家具和整齐陈列的服装一同展现人文之美,与自然力量的辉映。
Classic armchairs, well-crafted furniture and neatly displayed clothing show the beauty of humanity and reflect the power of nature.

FULL MONTY的空间设计表达了在理性、严谨的外表之下,细腻丰富的情感。恰如品牌通过服装设计所传达的个性形象,在尊重经典和表达时代之间找到平衡,也是Studio Glume与品牌在不同领域所探索的共同话题。
The space design for FULL MONTY’s store expresses delicate and rich emotions transpiring through a rational and rigorous appearance. Studio Glume finds a balance between respecting classical connotations while expressing modern times in this space design just like FULL MONTY blends the past and the present in its brand aesthetics through clothing design.

平面图
项目信息——
位置:上海浦东
面积:69㎡
主创设计师:王颖
设计团队:何智峰、林程辉、陈宇川、杨捷
陈列道具、部分家具:Studio Glume
摄影:何智峰
Project information——
Location:Shanghai Pudong
Area:69㎡
Completion time:September 2020
Lead designer:Wang Ying
Design team:He Zhifeng, Lin Chenghui, Chen Yuchuan, Yang Jie
Display props and part of the furniture:Studio Glume
Photography:He Zhifeng
Share the post "Studio Glume | 男装品牌FULL MONTY的第一家线下店"