设计师都很清楚,平面布局是室内设计的灵魂,绝大部分设计的核心都是通过平面在串联和思考,因此,设计高手都是通过对平面反复推演,最终实现设计的完美落地。
大部分设计师并不知道平面布局应该如何将设计思维融入,而只是完成了“CAD模块”导入,甚至连基本的比例尺度都不对。怎么君之前写过一篇文章,帮助了很多设计新手,让他们学会平面方案的正确方法。今天我们聊点更专业的平面布局逻辑。
1
功能分区
功能分区是平面布局前期最重要的环节,知晓客户的居住需求之后,马上就应该进行功能区域划分,包括比例,空间衔接与穿插等等。 (常见错误做法:拿到平面和客户居住需求之后,开始从门口往里进行导入模块,填充功能与房间)
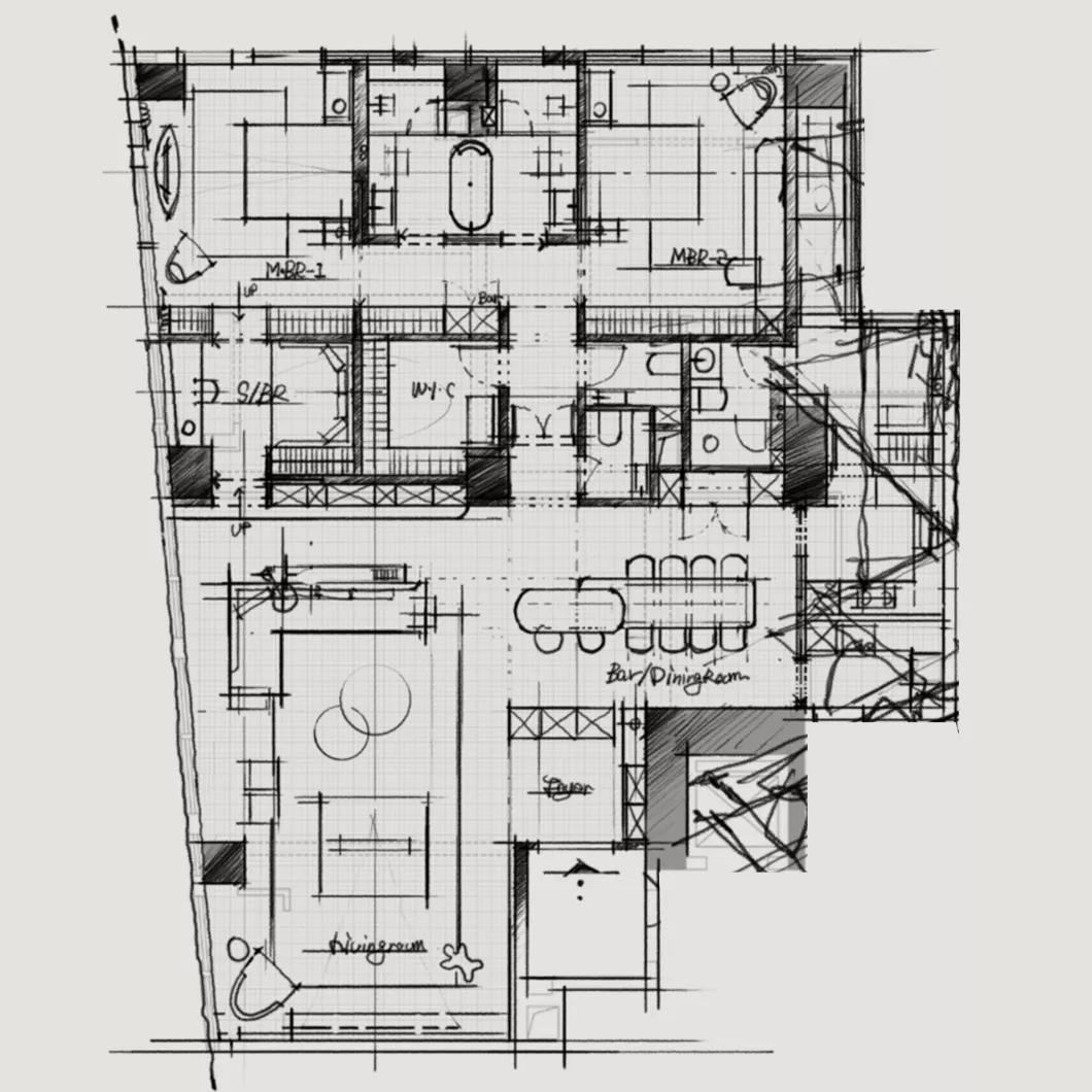
例如下面这个户型,这位设计师很明显就是缺少功能划分思维,而是直接置入CAD模块,最终导致的结果就是,整个平面很琐碎,不紧凑,凌乱。还有一个明显的问题:空间感缺失,房间场域感差。

而老K拿到平面后,第一时间进行轴线定位以及功能分区划分,甚至考虑了空间与空间的互动与联络,有分区之后,进行深化,平面就会规整,利落,不会出现太空旷或太紧张。下面是老K的优化方案。

2
动线合理
动线,在户型中的解释主要就是指人在室内外活动时移动的点,是一种室内设计和建筑用语。动线分为家人动线,家务动线,访客动线,优秀的平面方案是三者兼顾,动线设计最大原则:简洁与高效。 (常见错误:为了强调个性,将动线设计的很长,或者很低效)
动线分析示意图

图源:设计脑
三条动线划分了不同区域,分割了各自的空间。三条线尽量不要交叉,避免导致户型空间功能混乱、造成房屋面积的浪费。


平面方案来源:设计师老K
3
从平面推敲空间关系
做平面方案时,不能孤立的看平面效果,更应该从空间的角度思考,立面甚至三维空间的视觉体验。因为立面造型更多是拿来观赏的。许多设计师会用SKETCHUP来辅助做方案,有一部分因素就是出于对平面的推敲与反推。
平面方案很有个性,也许到三维空间会很凌乱,无法落地,因此,我们需要有立体空间思维,这就是为什么许多方案高手会用手绘推敲平面,构思空间。

关于平面布局的更多专业方法,可以了解下面的专栏!